Don't lose your saved plans! 
Create an account to access your saves whenever you want. See our Terms & Conditions and Privacy Policy.
OR

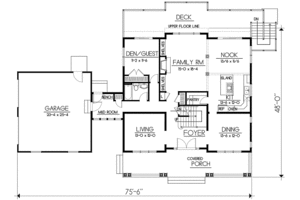
Craftsman House Plan 100-504 2968 Sq Ft, 5 Bed, 3 Bath, 2 Floor, 2 Garage

Key Specs
  • 5
    Beds
  • 3
    Baths
  • 2
    Floors
  • 2
    Garages
  • 2968
    Square Feet
This craftsman design floor plan is 2968 sq ft and has 5 bedrooms and 3 bathrooms.

Questions on this plan?

New to the process and looking for some help to kick things off? Let us know a bit about your plans and we’ll be happy to help.

Budget & Customization Tools

Modify icon
Customize this Plan
Tell us about your desired changes and we can prepare an estimate.
Cost to Build icon
Cost to Build Report
A personalized estimate based on your location, plan, & materials.
Cost to Build icon
Residential Construction Guide
This downloadable, 26-page guide is full of diagrams and details about plumbing, electrical, and more.

Full specs & Features

Basic Features

Bedrooms: 5
Baths: 3
Stories: 2
Garages: 2

Dimension

Depth: 48'
Height: 28'
Width: 76'

Area

Total: 2968 sq/ft
Basement: 1516 sq/ft
Garage: 624 sq/ft
Main Floor: 1635 sq/ft
Porch: 352 sq/ft
Upper Floor: 1333 sq/ft
* Total Square Footage typically only includes conditioned space and does not include garages, porches, bonus rooms, or decks.

Ceiling

Main Ceiling: 9'
Upper Ceiling Ft: 9'

Roof

Primary Pitch: 7:12

Exterior Wall Framing

Framing: 2"x6"

Bedroom Features

Guest Suite
Main Floor Bedrooms
Upstairs Master Bedrooms
Walk In Closet

Kitchen Features

Breakfast Nook
Kitchen Island
Walk In Pantry Cabinet Pantry

Additional Room Features

Den Office Study Computer
Family Room Keeping Room
Loft
Mud Room
Storage Area
Unfinished Future Space
Upstairs Laundry

Garage Features

Side Entry Garage

Entryway

Friend S Entry

Lot Characteristics

Suited For Corner Lot
Suited For Sloping Lot
Suited For View Lot

Outdoor Spaces

Balcony
Covered Front Porch
Covered Rear Porch
Grill Deck Sundeck

What's Included

Plans are typically drawn to ¼” scale and include:
  • Foundation Plan(s): Foundation or Basement Plan drawn at 1/4" = 1'-0" scale, and includes: All post and beam locations, door and window sizes, complete and accurate dimensions, all foundation wall and footing sizes, code-related notes, building section markers, floor and deck joist type, spacing and direction, mechanical equipment location, electrical layouts.
  • Floor Plan(s): Floor Plans drawn at 1/4" = 1'-0" scale, and includes all post and beam locations, door and window sizes, complete and accurate dimensions, room labels and interior room sizes, electrical layouts, code-related notes, building section markers, floor joist type, spacing and direction
  • Exterior Elevations: Elevations drawn at 1/4" = 1'-0" scale, and includes material labels, floor-to-floor heights, roof slope indicators, attic ventilation notes
  • Overhead Roof Plan(s): Roof Plan drawn at 1/4" = 1'-0", and includes all beam and header locations, building section markers, code-related notes, all necessary notes pertaining to the structural system
  • Cross Section(s): A slice of the home from roof to foundation, showing relationships between floors, roof, and foundation.
  • Building Section(s): Building Sections drawn at 1/4" = 1'-0" scale, and includes beam connections and locations, floor joist type and spacing, floor-to-floor heights, non-typical plate heights indicated
  • Construction Notes / Detail(s): Shows basic parts and assemblies recommended for the home so the builder can see how things come together.
  • Other Note(s): Including miscellaneous framing details, stairway details and general notes covering code requirements for residential construction

FAQs

Are designs on Houseplans ready to submit to my building department for permitting?

It depends on where you're building. Our plans contain enough information for a professional builder to construct your home, but your local government may require additional information before permitting. We strongly advise that you talk with your builder before you get started. If you are building for yourself, we recommend visiting your local building department to start your diligence. Read more here.

Can I make changes to a plan?

Absolutely! Our modification service allows you to customize almost anything - whether it's adding an extra garage bay, adjusting square footage, changing the roof pitch, or more, the plan modification service is a great value and can be completed quickly. Additionally, if you purchase an electronic plan set (PDF or CAD), you may have the option to make changes locally. CAD files offer the most flexibility for custom edits. Just let us know what you're thinking, and we’ll provide an estimate and timeframe to get started. Learn more here.

How much does a house cost to build?

Find out! Build costs vary based on the size of the home, materials used, and local rates for goods and labor. Our Cost to Build report is a great way to get some basic costs dialed in before you order your plans. Just plug in your postal code, select your desired construction quality, and we'll calculate for you.

Learn more about Cost to Build reports here.

Can I trust Houseplans?

Founded in 2004, Houseplans works with hundreds of architects and designers to offer their plans at a fraction of the price of custom design. Houseplans has an "Excellent" rating on TrustPilot.

Read more about us here.

Does Houseplans offer live support?

Yes, Houseplans has a dedicated team of house plan advisors with decades of experience between them. You can reach them by calling, emailing, filling out a form on the page of a plan that you like, or going to the Contact Us page. We're available to talk every day, even on weekends.

Builder Advantage Home

Builder Advantage Program

Are you a Pro Builder? Join the club, save 5% on your first order, get exclusive discounts, and more.

Learn More

You may also like

Save Plan
Craftsman

Plan 1064-302

$1250.00

beds3

bd

baths2.5

ba

stories1

story

square feet2489

sq ft

Save Plan
Farmhouse

Plan 430-422

$1445.00

beds3

bd

baths2.5

ba

stories1

story

square feet2494

sq ft

Save Plan
Country

Plan 427-1

$897.60

beds3

bd

baths2.5

ba

stories2

stories

square feet1908

sq ft

Recently viewed plans

Exterior - Front Elevation for Craftsman House Plan #100-504 - 5 bed, 3 bath
Save Plan

Plan 100-504

$1145.00

beds5

bd

baths3

ba

stories2

stories

square feet2968

sq ft

Exterior - Front Elevation for Mediterranean House Plan #420-103 - 3 bed, 2 bath
Save Plan

Plan 420-103

$800.00

beds3

bd

baths2

ba

stories1

story

square feet1250

sq ft

Signature
Exterior - Front Elevation for Cottage House Plan #928-354 - 4 bed, 3.5 bath
Save Plan

Plan 928-354

$1495.00

beds4

bd

baths3.5

ba

stories3

stories

square feet3577

sq ft

Exterior - Front Elevation for Mediterranean House Plan #420-242 - 6 bed, 7.5 bath
Save Plan

Plan 420-242

$1300.00

beds6

bd

baths7.5

ba

stories2

stories

square feet4994

sq ft

Exterior - Front Elevation for Traditional House Plan #453-41 - 3 bed, 2 bath
Save Plan

Plan 453-41

$1150.00

beds3

bd

baths2

ba

stories1

story

square feet1383

sq ft

Exterior - Front Elevation for Barndominium House Plan #1064-207 - 3 bed, 3.5 bath
Save Plan

Plan 1064-207

$1250.00

beds3

bd

baths3.5

ba

stories2

stories

square feet2311

sq ft

Exterior - Front Elevation for Traditional House Plan #126-131 - 3 bed, 1 bath
Save Plan

Plan 126-131

$1295.00

beds3

bd

baths1

ba

stories2

stories

square feet1011

sq ft

Signature
Exterior - Front Elevation for Country House Plan #928-177 - 5 bed, 4 bath
Save Plan

Plan 928-177

$1495.00

beds5

bd

baths4

ba

stories2

stories

square feet2757

sq ft

Exterior - Front Elevation for Craftsman House Plan #63-380 - 3 bed, 3 bath
Save Plan

Plan 63-380

$1804.00

beds3

bd

baths3

ba

stories2

stories

square feet2296

sq ft

Exterior - Front Elevation for Mediterranean House Plan #420-114 - 4 bed, 2.5 bath
Save Plan

Plan 420-114

$850.00

beds4

bd

baths2.5

ba

stories1

story

square feet1769

sq ft

Exterior - Front Elevation for Mediterranean House Plan #420-190 - 7 bed, 8.5 bath
Save Plan

Plan 420-190

$1600.00

beds7

bd

baths8.5

ba

stories2

stories

square feet6412

sq ft