Country Style House Plan - 3 Beds 2.5 Baths 2986 Sq/Ft Plan #901-112 - Houseplans.com
Search
REGISTER LOGIN SAVED No Saved Plans CART  Cart Empty
Don't lose your saved plans! Create an account to access your saves whenever you want. See our Terms & Conditions and Privacy Policy.
OR
20% OFF TODAY: CYBER DEALS EXTENDED!
Plan 901-112
Photographs may show modified designs.
Home  >  Style  >  Country

Country House Plan 901-112

Key Specs


Plan Sq Ft

2986
sq ft

Plan Bedrooms

3
Beds

Plan Bathrooms

2.5
Baths

Plan Floors

2
Floors

Plan Garages

3
Garages

Questions? Get Personalized Help
Select Plan Set Options
What's included?
$132.00
$31.20
$132.00
Mirror Reversed Sets$120.00

Printed sets showing plan in reverse, text and dimensions will be backwards.

Subtotal
NOW $2080.00
You save $520.00
(20% savings)
Sale ends soon!
Best Price Guaranteed

Or order by phone: 1-800-913-2350
Questions? Get Personalized Help
 

 
Hours:
Ready for Your Call 7 Days a Week
Every Day 7 am - 8:30 pm Eastern

See Terms & Conditions and Privacy Policy.

Thanks for your question.

We will be in touch shortly.

Wow!
Cost to Build Reports
$1.99 with Code
CTB2026 (Limit 1)
Our Cost to Build Report gives you a personalized estimate for building your home, based on your location, plan, and materials.

Residential Construction Guide

Learn Building Basics

This downloadable, 26-page guide is full of diagrams and details about plumbing, electrical, and more.

Key Specs


Plan Sq Ft

2986
sq ft

Plan Bedrooms

3
Beds

Plan Bathrooms

2.5
Baths

Plan Floors

2
Floors

Plan Garages

3
Garages

Plan Description


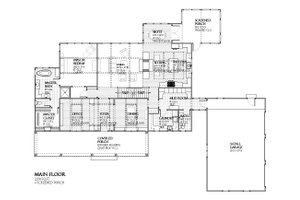
This simple linear home plan has all the space necessary for comfortable daily living, without costly wasted areas. From the covered expansive front porch you are welcomed into the foyer, which offers views directly into the core of the home ahead and flanks the dining room and office. The kitchen and sitting area are separated from the living room by a two way fireplace. Off the kitchen is a breakfast nook and screen porch for enjoying the outdoors. A master suite is privately tucked off to one site of the home and offers his and her vanities and walk in closet. Located on the upper level you find two additional bedrooms sharing a bath, as well as a small counter for homework or reading a book. The optional lower level finishes the home off with a family room, billiards, wet bar, and guest suite.

This plan can be customized!

Tell us about your desired changes so we can prepare an estimate for the design service. Click the button to submit your request for pricing, or call 1-800-913-2350.

Floor Plans


Floor Plan - Main Floor

Reverse
houseplans LOGO

BUILDER Advantage Program

PRO BUILDERS

Join the club and save 5% on your first order.
PLUS download exclusive discounts and more.

LEARN MORE

Floor Plan - Upper Floor

Reverse

Full Specs & Features


Basic Features

Bedrooms : 3
Baths : 2.5
Stories: 2
Garages: 3

Dimension

Depth : 74' 2"
Height : 0"
Width : 94'

Area

Total : 2986 sq/ft
Main Floor : 2331 sq/ft
Upper Floor : 655 sq/ft
* Total Square Footage typically only includes conditioned space and does not include garages, porches, bonus rooms, or decks.

Ceiling

Main Ceiling : 9'
Upper Ceiling Ft : 8'

Roof

Roof Framing : truss

Exterior Wall Framing

Framing : 2x4

Kitchen Features

Breakfast Nook
Eating Bar
Kitchen Island

Additional Room Features

Den Office Study Computer
Great Room Living Room
Main Floor Laundry
Master Sitting Area
Mud Room
Storage Area
Sunroom

Garage Features

Oversized Garage
Side Entry Garage

Lot Characteristics

Suited For Corner Lot
Suited For Sloping Lot
Suited For View Lot

Outdoor Spaces

Covered Front Porch
Screened Porch
Wrap Around Porch

More

Economical To Build
Empty Nester
Jack & Jill Bath

Energy Efficient Features

Energy Efficient Design

What's included in this plan set


See a sample plan set
Plans are typically drawn to ¼” scale and include:
  • Cover Sheet: This page includes a color rendering of your home and an overview of the floor plan.
  • Foundation Plan(s): This page shows all necessary notations and dimensions including footings, support columns, walls, and excavated/unexcavated areas.
  • Floor Plan(s): Detailed plans for each level showing room dimensions, wall partitions, windows and doors, fixture locations, and ceiling treatments.
  • Exterior Elevations: Front, rear and side elevation views, illustrating exterior materials, details, wall heights, roof pitches, window location and sizes.
  • Overhead Roof Plan(s): A view of the home from above showing roof pitch, peaks, valleys, and other details.
  • Cross Section(s): A slice of the home from roof to foundation, showing relationships between floors, roof, and foundation.
  • Construction Notes / Detail(s): This section gives your builder ceiling heights, a sense of overall home construction and wall sections, including material callouts, eave detail, roof pitch and foundation construction.
  • Specification(s): Every home was specifically designed to achieve a highly livable and comfortably beautiful, proportioned space. For that reason, each blueprint comes with recommended styles for your interior and exterior doors, window trim, baseboards, garage doors and, if applicable to your house style, columns and brackets.
* See important information before purchasing

Pricing


Plan Options

5 Copy Set

$2080.00
5 printed plan sets mailed to you.

PDF Set

Best Value!
$2080.00
PDF plan sets are best for fast electronic delivery and inexpensive local printing.

8 Copy Set

$2160.00
8 printed plan sets mailed to you.

CAD Set

$2808.00
For use by design professionals to make substantial changes to your house plan and inexpensive local printing.

Foundation Options

Basement

$0.00
Ideal for level lot, lower level of home partially or fully underground.

*Options with a fee may take time to prepare. Please call to confirm.

Additional Options

Audio Video Design

$132.00
Receive an overlay sheet with suggested placement of audio and video components.

Construction Guide

$31.20
Educate yourself about basic building ideas with these four detailed diagrams that discuss electrical, plumbing, mechanical, and structural topics.

Lighting Design

$132.00
Receive an overlay sheet with suggested placement of lighting fixtures.

Mirror Reversed Sets

$120.00
A mirror-reversed set is a printed copy of your house, resulting in the same image you would see if you held the drawing up to a mirror. Everything, including the text, is backward in relation to the original design. These kinds of drawing are typically used to reorient an original plan more advantageously on a site, either because the homeowner prefers it that way or because of limitations of the site itself. Note: Mirror reverse sets are only available with a 5 copy or 8 copy set. With a Reproducible, PDF, or CAD set, you can print mirrored copies locally. In addition: 5 Copy set selected, should only allow 4 mirrored sets to be selected. 8 Copy set selected, should only allow 7 mirrored sets to be selected.

*Options with a fee may take time to prepare. Please call to confirm.

Unless you buy an “unlimited” plan set or a multi-use license you may only build one home from a set of plans. Please call to verify if you intend to build more than once. Plan licenses are non-transferable and cannot be resold.

Other Plans By This Designer

See all plans by
this designer

Need help? Let our friendly experts help you find the perfect plan!

Contact us now for a free consultation.