Colonial Style House Plan - 4 Beds 3.5 Baths 3000 Sq/Ft Plan #329-128 - Houseplans.com
Search
REGISTER LOGIN SAVED No Saved Plans CART  Cart Empty
Don't lose your saved plans! Create an account to access your saves whenever you want. See our Terms & Conditions and Privacy Policy.
OR
FINAL HOURS: 15% OFF ENDS TONIGHT
Plan 329-128
Photographs may show modified designs.
Home  >  Style  >  Colonial

Colonial House Plan 329-128

Key Specs


Plan Sq Ft

3000
sq ft

Plan Bedrooms

4
Beds

Plan Bathrooms

3.5
Baths

Plan Floors

2
Floors

Plan Garages

2
Garages

Questions? Get Personalized Help
Select Plan Set Options
What's included?
$170.00
Additional Construction Sets$37.40/each

Additional hard copies of the plan (can be ordered at the time of purchase and within 90 days of the purchase date).

$814.30
$140.25
$33.15
$140.25
$250.75
Mirror Reversed Sets$42.50

Printed sets showing plan in reverse, text and dimensions will be backwards.

$255.00
$212.50
Subtotal
NOW $1859.80
You save $328.20
(15% savings)
Sale ends soon!
Best Price Guaranteed

Or order by phone: 1-800-913-2350
Questions? Get Personalized Help
 

 
Hours:
Ready for Your Call 7 Days a Week
Every Day 7 am - 8:30 pm Eastern

See Terms & Conditions and Privacy Policy.

Thanks for your question.

We will be in touch shortly.

Wow!
Cost to Build Reports
$1.99 with Code
CTBFALL (Limit 1)
Our Cost to Build Report gives you a personalized estimate for building your home, based on your location, plan, and materials.

Residential Construction Guide

Learn Building Basics

This downloadable, 26-page guide is full of diagrams and details about plumbing, electrical, and more.

Key Specs


Plan Sq Ft

3000
sq ft

Plan Bedrooms

4
Beds

Plan Bathrooms

3.5
Baths

Plan Floors

2
Floors

Plan Garages

2
Garages

Plan Description


This colonial design floor plan is 3000 sq ft and has 4 bedrooms and 3.5 bathrooms.

This plan can be customized!

Tell us about your desired changes so we can prepare an estimate for the design service. Click the button to submit your request for pricing, or call 1-800-913-2350.

Floor Plans


Floor Plan - Main Floor

Reverse
houseplans LOGO

BUILDER Advantage Program

PRO BUILDERS

Join the club and save 5% on your first order.
PLUS download exclusive discounts and more.

LEARN MORE

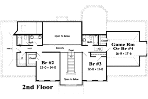
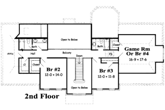
Floor Plan - Upper Floor

Reverse

Full Specs & Features


Basic Features

Bedrooms : 4
Baths : 3.5
Stories: 2
Garages: 2

Dimension

Depth : 46'
Height : 33'
Width : 75'

Area

Total : 3000 sq/ft
Garage : 489 sq/ft
Main Floor : 1889 sq/ft
Porch : 58 sq/ft
Upper Floor : 1111 sq/ft
* Total Square Footage typically only includes conditioned space and does not include garages, porches, bonus rooms, or decks.

Exterior Wall Framing

Framing : 2"x4"

Bedroom Features

Main Floor Master Bedroom
Walk In Closet

Kitchen Features

Breakfast Nook
Eating Bar

Additional Room Features

Family Room Keeping Room
Hobby Rec Room Game Room
Loft
Storage Area

Garage Features

Side Entry Garage

Lot Characteristics

Suited For Corner Lot

Outdoor Spaces

Balcony

What's included in this plan set


See a sample plan set
Plans are typically drawn to ¼” scale and include:
  • Foundation Plan(s): This page shows all necessary notations and dimensions including support columns, walls, and excavated/unexcavated areas.
  • Floor Plan(s): Detailed plans for each level showing room dimensions, wall partitions, windows and doors sizes, joist directions and beam locations.
  • Exterior Elevations: Views of the home from all four sides showing exterior materials, roof slope, ridge heights, siding and trim notes.
  • Overhead Roof Plan(s): A view of the home from above showing roof pitch, peaks, valleys, and other details.
  • Cross Section(s): A slice of the home from roof to foundation, showing relationships between floors, roof, and foundation.
  • Construction Notes / Detail(s): Shows basic parts and assemblies recommended for the home so the builder can see how things come together.
* See important information before purchasing

Pricing


Plan Options

PDF Set

Best Value!
$1859.80
PDF plan sets are best for fast electronic delivery and inexpensive local printing.

5 Copy Set

$2034.90
5 printed plan sets mailed to you.

5 Copy and PDF Set

$2111.40
5 printed plan sets mailed to you plus PDF plan sets are best for fast electronic delivery and inexpensive local printing.

CAD and PDF Set

$2443.75
For use by design professionals to make substantial changes to your house plan and inexpensive local printing plus PDF plan sets are best for fast electronic delivery and inexpensive local printing.

Study Set

$1397.40
One electronic set for bidding purposes only. Not a legal building set for construction.

Foundation Options

Slab

$0.00
Ideal for level lot, single layer concrete poured directly on grade.

Crawlspace

$255.00
Ideal for semi-sloped or level lot, home can be built off of grade, typically 18” - 48”.

Basement

$382.50
Ideal for level lot, lower level of home partially or fully underground.

Walk Out Basement

$467.50
Ideal for a sloping lot, lower level with outdoor access.

*Options with a fee may take time to prepare. Please call to confirm.

Framing Options

Wood 2x4

$0.00
Wood 2x4 Exterior Walls

Wood 2x6

$170.00
Wood 2x6 Exterior Walls

*Options with a fee may take time to prepare. Please call to confirm.

Additional Options

Right-Reading Reverse

$170.00
Choose this option to reverse your plans and to have the text and dimensions readable.

Additional Construction Sets

$37.40
Additional hard copies of the plan (can be ordered at the time of purchase and within 90 days of the purchase date).

Additional Use License

$814.30
Allows you to build one more home for each additional license purchased.

Audio Video Design

$140.25
Receive an overlay sheet with suggested placement of audio and video components.

Construction Guide

$33.15
Educate yourself about basic building ideas with these four detailed diagrams that discuss electrical, plumbing, mechanical, and structural topics.

Lighting Design

$140.25
Receive an overlay sheet with suggested placement of lighting fixtures.

Material List

$250.75
A spreadsheet of building supplies needed to construct the infrastructure of your new house. Please note materials lists will not reflect add-ons such as alternate foundation and framing options.

Mirror Reversed Sets

$42.50
A mirror-reversed set is a printed copy of your house, resulting in the same image you would see if you held the drawing up to a mirror. Everything, including the text, is backward in relation to the original design. These kinds of drawing are typically used to reorient an original plan more advantageously on a site, either because the homeowner prefers it that way or because of limitations of the site itself. Note: Mirror reverse sets are only available with a 5 copy or 8 copy set. With a Reproducible, PDF, or CAD set, you can print mirrored copies locally. In addition: 5 Copy set selected, should only allow 4 mirrored sets to be selected. 8 Copy set selected, should only allow 7 mirrored sets to be selected.

3rd Car Bay

$255.00
Adds a garage bay to accommodate a third car

Change Garage Entrance

$212.50
Convert a front-loading garage to a side-loading garage, or vice versa.

*Options with a fee may take time to prepare. Please call to confirm.

Unless you buy an “unlimited” plan set or a multi-use license you may only build one home from a set of plans. Please call to verify if you intend to build more than once. Plan licenses are non-transferable and cannot be resold.

We offer a 90% credit when you upgrade from a set, that is not for construction, to a 5-Copy set (or greater).

Other Plans By This Designer

See all plans by
this designer

Need help? Let our friendly experts help you find the perfect plan!

Contact us now for a free consultation.