Farmhouse Style House Plan - 5 Beds 3 Baths 3081 Sq/Ft Plan #1109-19 - Houseplans.com
Search
REGISTER LOGIN SAVED No Saved Plans CART  Cart Empty
Don't lose your saved plans! Create an account to access your saves whenever you want. See our Terms & Conditions and Privacy Policy.
OR
Plan 1109-19
Photographs may show modified designs.
Home  >  Style  >  Farmhouse

Farmhouse House Plan 1109-19

Key Specs


Plan Sq Ft

3081
sq ft

Plan Bedrooms

5
Beds

Plan Bathrooms

3
Baths

Plan Floors

2
Floors

Plan Garages

2
Garages

Questions? Get Personalized Help
Select Plan Set Options
What's included?
$465.00
$165.00
$395.00
$39.00
$165.00
Subtotal
$1520.00
Best Price Guaranteed

Or order by phone: 1-800-913-2350
Questions? Get Personalized Help
 

 
Hours:
Ready for Your Call 7 Days a Week
Every Day 7 am - 8:30 pm Eastern

See Terms & Conditions and Privacy Policy.

Thanks for your question.

We will be in touch shortly.

Wow!
Cost to Build Reports
$1.99 with Code
CTB2026 (Limit 1)
Our Cost to Build Report gives you a personalized estimate for building your home, based on your location, plan, and materials.

Residential Construction Guide

Learn Building Basics

This downloadable, 26-page guide is full of diagrams and details about plumbing, electrical, and more.

Key Specs


Plan Sq Ft

3081
sq ft

Plan Bedrooms

5
Beds

Plan Bathrooms

3
Baths

Plan Floors

2
Floors

Plan Garages

2
Garages

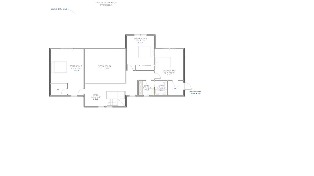
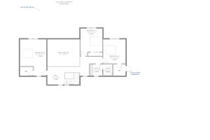
Plan Description


This gorgeous plan offers 3,081 square feet of beautifully designed living space across two levels. With five bedrooms and three bathrooms, this home is perfect for families who value both comfort and flexibility. The open, intuitive layout creates natural flow between gathering spaces, while private areas provide room for relaxation and retreat. A two-car garage adds convenience, and the thoughtful design ensures every square foot is maximized for style and functionality.

This plan can be customized!

Tell us about your desired changes so we can prepare an estimate for the design service. Click the button to submit your request for pricing, or call 1-800-913-2350.
houseplans LOGO

BUILDER Advantage Program

PRO BUILDERS

Join the club and save 5% on your first order.
PLUS download exclusive discounts and more.

LEARN MORE

Full Specs & Features


Basic Features

Bedrooms : 5
Baths : 3
Stories: 2
Garages: 2

Dimension

Depth : 72' 7"
Height : 27' 7"
Width : 97' 10"

Area

Total : 3081 sq/ft
Decks : 766 sq/ft
Garage : 1039 sq/ft
Main Floor : 1972 sq/ft
Patios : 256 sq/ft
Porch : 130 sq/ft
Upper Floor : 1109 sq/ft
* Total Square Footage typically only includes conditioned space and does not include garages, porches, bonus rooms, or decks.

Ceiling

Main Ceiling : 9'
Upper Ceiling Ft : 8'

Roof

Primary Pitch : 10/12
Roof Framing : Truss

Bedroom Features

Main Floor Master Bedroom
Walk In Closet

Kitchen Features

Breakfast Nook
Eating Bar
Kitchen Island
Walk In Pantry Cabinet Pantry

Additional Room Features

Den Office Study Computer
Family Room Keeping Room
Great Room Living Room
Mud Room
Wet Bar

Garage Features

Front Entry Garage

Outdoor Spaces

Covered Front Porch
Covered Rear Porch

What's included in this plan set


See a sample plan set
Plans will print to scale and include:
  • Foundation Plan(s): Plan representation indicating the general design intent of the foundation. The foundation plan will show a slab, crawl space, or basement. Typically, this includes the footing layout, dimensioned lines to exterior and interior footers, depending on what type of foundation is purchased. All structural and load bearing components will be provided by local engineering as required based on specific site and earth composition.
  • Floor Plan(s): Dimensioned plans indicating the layout of rooms, walls, doors, and windows. These plans are an overhead view of the house. Callouts for doors, cabinets, windows including. Exterior dimensioned to stud, interior dimensioned to stud. Also shows general fixture layout such as bathroom plumbing, kitchen features.
  • Exterior Elevations: Elevations are a 2d representation of each side of the house. They typically indicate the materials for the walls, roof, and other elements that are part of the home. Labels for Doors and Windows, as well as key height markers are included.
  • Overhead Roof Plan(s): This plan describes the elements that make up the roof. The roof plan typically illustrates ridges, valleys, and hips. It also may indicate the roofing material and slopes of roof surfaces, as well as chimneys and decorative elements. The Roof Plan is ready for Truss manufactures to design local load calculations.
  • Cross Section(s): A slice of the home from roof to foundation, showing relationships between floors, roof, and foundation.
  • Building Section(s): This is a cut-away view through the house that show adjacencies of spaces. It shows the relationship the ground to the house and the roof.
  • Electrical Plan(s): This drawing indicates the location of lighting fixtures, switches and outlets, showing lighting design intent and layout.
  • Construction Notes / Detail(s): These details may include the foundation, interior walls, exterior walls, floors, stairways, and / or roof details. Typical construction notes are provided. Local engineering may override supplied typical construction notes.
Plans will print to scale and include:
* See important information before purchasing

Pricing


Plan Options

PDF Print Set

$1520.00
A non-modifiable, print only PDF file

5 Copy and PDF Set

$2160.00
5 printed plan sets mailed to you plus PDF plan sets are best for fast electronic delivery and inexpensive local printing.

CAD Set

$3310.00
For use by design professionals to make substantial changes to your house plan and inexpensive local printing.

Foundation Options

Slab

$0.00
Ideal for level lot, single layer concrete poured directly on grade.

*Options with a fee may take time to prepare. Please call to confirm.

Framing Options

Wood 2x6

$0.00
Wood 2x6 Exterior Walls

Wood 2x4

$350.00
Wood 2x4 Exterior Walls

*Options with a fee may take time to prepare. Please call to confirm.

Additional Options

Right-Reading Reverse

$465.00
Choose this option to reverse your plans and to have the text and dimensions readable.

Audio Video Design

$165.00
Receive an overlay sheet with suggested placement of audio and video components.

Comprehensive Material List

$395.00
A complete list of building supplies needed to construct the infrastructure of your new house, plus an overlay of materials shown directly on your PDF (foundation to rooftop with interior and exterior materials), and a detailed, itemized door and window schedule showing all sizes and types. Please allow 5-7 Business Days for completion. Note, the Comprehensive list is only available with a PDF purchase. The Comprehensive list can be ordered no matter what additional plan options you have selected.

Construction Guide

$39.00
Educate yourself about basic building ideas with these four detailed diagrams that discuss electrical, plumbing, mechanical, and structural topics.

Lighting Design

$165.00
Receive an overlay sheet with suggested placement of lighting fixtures.

*Options with a fee may take time to prepare. Please call to confirm.

Unless you buy an “unlimited” plan set or a multi-use license you may only build one home from a set of plans. Please call to verify if you intend to build more than once. Plan licenses are non-transferable and cannot be resold.

Other Plans By This Designer

See all plans by
this designer

Need help? Let our friendly experts help you find the perfect plan!

Contact us now for a free consultation.

Today's Deals