Don't lose your saved plans! 
Create an account to access your saves whenever you want. See our Terms & Conditions and Privacy Policy.
OR

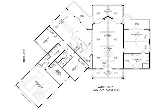
Country House Plan 932-1275 3198 Sq Ft, 3 Bed, 2 Bath, 1 Floor, 2 Garage

Key Specs
  • 3
    Beds
  • 2
    Baths
  • 1
    Floors
  • 2
    Garages
  • 3198
    Square Feet
This country design floor plan is 3198 sq ft and has 3 bedrooms and 2 bathrooms.

Questions on this plan?

New to the process and looking for some help to kick things off? Let us know a bit about your plans and we’ll be happy to help.

Budget & Customization Tools

Modify icon
Customize this Plan
Tell us about your desired changes and we can prepare an estimate.
Cost to Build icon
Cost to Build Report
A personalized estimate based on your location, plan, & materials.
Cost to Build icon
Residential Construction Guide
This downloadable, 26-page guide is full of diagrams and details about plumbing, electrical, and more.

Full specs & Features

Basic Features

Bedrooms: 3
Baths: 2
Stories: 1
Garages: 2

Dimension

Depth: 79' 6"
Height: 23' 4"
Width: 103' 5"

Area

Total: 3198 sq/ft
Decks: 348 sq/ft
Garage: 604 sq/ft
Main Floor: 3198 sq/ft
Porch: 484 sq/ft
* Total Square Footage typically only includes conditioned space and does not include garages, porches, bonus rooms, or decks.

Ceiling

Main Ceiling: 10'

Roof

Primary Pitch: 7:12
Roof Framing: Truss Roof
Roof Load: 120
Roof Type: Gable
Secondary Pitch: 12:12

Exterior Wall Framing

Exterior Wall Finish: siding/stone
Framing: 2x4

Bedroom Features

Main Floor Bedrooms
Main Floor Master Bedroom
Split Bedrooms
Walk In Closet

Additional Room Features

Den Office Study Computer
Great Room Living Room
Hobby Rec Room Game Room
Main Floor Laundry
Mud Room
Storage Area
Workshop

Garage Features

Front Entry Garage
Side Entry Garage

Lot Characteristics

Suited For View Lot

Outdoor Spaces

Covered Front Porch
Covered Rear Porch
Wrap Around Porch

What's Included

Plans are typically drawn to ¼” scale and include:
  • Foundation Plan(s): This page shows all necessary notations and dimensions including support columns, walls, and excavated/unexcavated areas.
  • Floor Plan(s): Detailed plans for each level showing room dimensions, wall partitions, windows and doors sizes, joist directions and beam locations.
  • Exterior Elevations: Views of the home from all four sides showing exterior materials, roof slope, ridge heights, siding and trim notes.
  • Overhead Roof Plan(s): A view of the home from above showing roof pitch, peaks, valleys, and other details.
  • Cross Section(s): A slice of the home from roof to foundation, showing relationships between floors, roof, and foundation.
  • Construction Notes / Detail(s): Shows basic parts and assemblies recommended for the home so the builder can see how things come together.

FAQs

Are designs on Houseplans ready to submit to my building department for permitting?

It depends on where you're building. Our plans contain enough information for a professional builder to construct your home, but your local government may require additional information before permitting. We strongly advise that you talk with your builder before you get started. If you are building for yourself, we recommend visiting your local building department to start your diligence. Read more here.

Can I make changes to a plan?

Absolutely! Our modification service allows you to customize almost anything - whether it's adding an extra garage bay, adjusting square footage, changing the roof pitch, or more, the plan modification service is a great value and can be completed quickly. Additionally, if you purchase an electronic plan set (PDF or CAD), you may have the option to make changes locally. CAD files offer the most flexibility for custom edits. Just let us know what you're thinking, and we’ll provide an estimate and timeframe to get started. Learn more here.

How much does a house cost to build?

Find out! Build costs vary based on the size of the home, materials used, and local rates for goods and labor. Our Cost to Build report is a great way to get some basic costs dialed in before you order your plans. Just plug in your postal code, select your desired construction quality, and we'll calculate for you.

Learn more about Cost to Build reports here.

Can I trust Houseplans?

Founded in 2004, Houseplans works with hundreds of architects and designers to offer their plans at a fraction of the price of custom design. Houseplans has an "Excellent" rating on TrustPilot.

Read more about us here.

Does Houseplans offer live support?

Yes, Houseplans has a dedicated team of house plan advisors with decades of experience between them. You can reach them by calling, emailing, filling out a form on the page of a plan that you like, or going to the Contact Us page. We're available to talk every day, even on weekends.

Builder Advantage Home

Builder Advantage Program

Are you a Pro Builder? Join the club, save 5% on your first order, get exclusive discounts, and more.

Learn More

You may also like

Save Plan
Country

Plan 427-1

$897.60

beds3

bd

baths2.5

ba

stories2

stories

square feet1908

sq ft

Save Plan
Cabin

Plan 1108-9

$1300.00

beds3

bd

baths2.5

ba

stories3

stories

square feet1815

sq ft

Save Plan
Southern

Plan 44-222

$935.00

beds2

bd

baths1

ba

stories1

story

square feet890

sq ft

Recently viewed plans

Exterior - Front Elevation for Craftsman House Plan #930-522 - 3 bed, 3.5 bath
Save Plan

Plan 930-522

$1647.00

beds3

bd

baths3.5

ba

stories1

story

square feet3108

sq ft

Exterior - Front Elevation for Country House Plan #430-135 - 4 bed, 3.5 bath
Save Plan

Plan 430-135

$1645.00

beds4

bd

baths3.5

ba

stories1

story

square feet3194

sq ft

Exterior - Front Elevation for Craftsman House Plan #119-426 - 3 bed, 3.5 bath
Save Plan

Plan 119-426

$1695.00

beds3

bd

baths3.5

ba

stories1

story

square feet2531

sq ft

Signature
Exterior - Front Elevation for Country House Plan #929-522 - 3 bed, 2.5 bath
Save Plan

Plan 929-522

$1625.00

beds3

bd

baths2.5

ba

stories2

stories

square feet2037

sq ft

Exterior - Front Elevation for Craftsman House Plan #23-2667 - 3 bed, 2 bath
Save Plan

Plan 23-2667

$1680.00

beds3

bd

baths2

ba

stories1

story

square feet1631

sq ft

Exterior - Other Elevation for Country House Plan #932-33 - 3 bed, 2.5 bath
Save Plan

Plan 932-33

$1688.00

beds3

bd

baths2.5

ba

stories2

stories

square feet2095

sq ft

Exterior - Front Elevation for Colonial House Plan #124-1230 - 5 bed, 5.5 bath
Save Plan

Plan 124-1230

$2435.00

beds5

bd

baths5.5

ba

stories2

stories

square feet4448

sq ft

Signature
Exterior - Front Elevation for Traditional House Plan #928-300 - 3 bed, 2.5 bath
Save Plan

Plan 928-300

$1495.00

beds3

bd

baths2.5

ba

stories2

stories

square feet3761

sq ft

Exterior - Rear Elevation for Beach House Plan #1064-26 - 1 bed, 1.5 bath
Save Plan

Plan 1064-26

$1050.00

beds1

bd

baths1.5

ba

stories2

stories

square feet1343

sq ft

Signature
Exterior - Front Elevation for Southern House Plan #928-316 - 3 bed, 4 bath
Save Plan

Plan 928-316

$1495.00

beds3

bd

baths4

ba

stories2

stories

square feet3360

sq ft

Exterior - Front Elevation for European House Plan #923-293 - 5 bed, 4 bath
Save Plan

Plan 923-293

$1850.00

beds5

bd

baths4

ba

stories2

stories

square feet4521

sq ft