Don't lose your saved plans! 
Create an account to access your saves whenever you want. See our Terms & Conditions and Privacy Policy.
OR

Victorian House Plan 72-679 3565 Sq Ft, 5 Bed, 2 Bath, 3 Floor, 2 Garage

Key Specs
  • 5
    Beds
  • 2
    Baths
  • 3
    Floors
  • 2
    Garages
  • 3565
    Square Feet
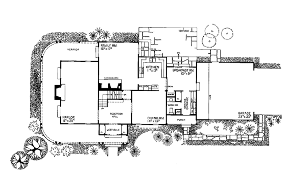
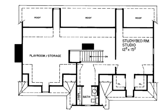
Reminiscent of the Gothic Victorian style of the mid-19th Century, this delightfully detailed, three-story house has a wraparound veranda for summertime relaxing. A grand reception hall welcomes visitors and displays an elegant staircase. The parlor and family room, each with a fireplace, provide excellent formal and informal living facilities. The well-planned kitchen is only a couple of steps from the dining and breakfast rooms. Access to the rear terrace is provided through the family room or the breakfast room. The second floor has four bedrooms and two baths plus a sewing room or a study. The third floor houses an additional bedroom or a studio with a half bath, as well as a playroom--a real bonus of livability. What a great house for the large, active family to enjoy its many interests.



Questions on this plan?

New to the process and looking for some help to kick things off? Let us know a bit about your plans and we’ll be happy to help.

Budget & Customization Tools

Modify icon
Customize this Plan
Tell us about your desired changes and we can prepare an estimate.
Cost to Build icon
Cost to Build Report
A personalized estimate based on your location, plan, & materials.
Cost to Build icon
Residential Construction Guide
This downloadable, 26-page guide is full of diagrams and details about plumbing, electrical, and more.

Full specs & Features

Basic Features

Bedrooms: 5
Baths: 2
Stories: 3
Garages: 2

Dimension

Depth: 42'
Height: 34'
Width: 88'

Area

Total: 3565 sq/ft
First Floor: 1599 sq/ft height 9'
Second Floor: 1055 sq/ft
Third Floor: 911 sq/ft
* Total Square Footage typically only includes conditioned space and does not include garages, porches, bonus rooms, or decks.

Roof

Primary Pitch: 10:12
Roof Framing: Conventional
Roof Type: Shingle

Exterior Wall Framing

Exterior Wall Finish: Siding
Framing: Wood - 2x4

Bedroom Features

Fireplace
Formal Dining Room
Formal Living Room / Parlor
Guest Suite

Kitchen Features

Breakfast Nook

Additional Room Features

Den Office Study Computer
Family Room Keeping Room
Hobby Rec Room Game Room
Main Floor Laundry

Garage Features

Side Entry Garage

Outdoor Spaces

Courtyard
Covered Front Porch
Covered Rear Porch
Wrap Around Porch

Rooms

3rd BR Closet:

24 sq/ft width 4' x depth 6'

Basement Foundation:

1092 sq/ft width 26' x depth 42'

Bathroom 2:

64 sq/ft width 12' 8" x depth 5' 1"

Bathroom 3:

42 sq/ft width 6' x depth 7'

Bedroom 2:

113 sq/ft width 10' 4" x depth 11'

Bedroom 2 Closet:

9 sq/ft width 4' 3" x depth 2' 2"

Bedroom 3:

139 sq/ft width 12' 8" x depth 11'

Bedroom 3 Closet:

9 sq/ft width 4' 3" x depth 2' 2"

Bedroom 4:

145 sq/ft width 12' 8" x depth 11' 6"

Bedroom 4 Closet:

15 sq/ft width 2' 8" x depth 5' 8"

Breakfast Room:

108 sq/ft width 12' x depth 9'

Crawlspace Foundation:

224 sq/ft width 12' x depth 18' 8"

Dining Room:

182 sq/ft width 14' x depth 13'

Foyer:

133 sq/ft width 13' 4" x depth 10'

Game Room:

232 sq/ft width 15' 4" x depth 15' 2"

Garage:

544 sq/ft width 23' 4" x depth 23' 4"

Gathering Room:

312 sq/ft width 16' x depth 19' 6"

Hall Bathroom:

42 sq/ft width 7' x depth 6' 1"

Hall Closet:

5 sq/ft width 4' 1" x depth 1' 3"

Kitchen:

152 sq/ft width 11' 4" x depth 13' 6"

Laundry Room:

57 sq/ft width 6' x depth 9' 6"

Master Bathroom:

39 sq/ft width 7' 9" x depth 5' 1"

Master Bedroom:

250 sq/ft width 15' 4" x depth 16' 4"

Master Closet:

15 sq/ft width 7' 4" x depth 2' 1"

Parlor:

388 sq/ft width 15' 4" x depth 25' 4"

Porch - Front:

48 sq/ft width 12' x depth 4'

Slab Foundation:

513 sq/ft width 22' 8" x depth 22' 8"

Study:

200 sq/ft width 13' 3" x depth 15' 2"

Walk-In Closet:

37 sq/ft width 7' 4" x depth 5' 1"

What's Included

All plans are drawn at ¼” scale or larger and include :

  • Foundation Plan: This page shows all necessary notations and dimensions including support columns, walls, and excavated/unexcavated areas.
  • Exterior Elevations: Views of the home from all four sides showing exterior materials and measurements.
  • Floor Plan(s): Detailed plans for each level showing room dimensions, wall partitions, windows and doors, etc.
  • Cross Section: A slice of the home from roof to foundation, showing important details like stairs and wall construction.
  • Overhead Roof Plan(s): A view of the home from above showing roof pitch, peaks, valleys, and other details.
  • Construction Notes and Details: Shows the builder how things come together, like walls, the chimney, insulation, and more.

FAQs

Are designs on Houseplans ready to submit to my building department for permitting?

It depends on where you're building. Our plans contain enough information for a professional builder to construct your home, but your local government may require additional information before permitting. We strongly advise that you talk with your builder before you get started. If you are building for yourself, we recommend visiting your local building department to start your diligence. Read more here.

Can I make changes to a plan?

Absolutely! Our modification service allows you to customize almost anything - whether it's adding an extra garage bay, adjusting square footage, changing the roof pitch, or more, the plan modification service is a great value and can be completed quickly. Additionally, if you purchase an electronic plan set (PDF or CAD), you may have the option to make changes locally. CAD files offer the most flexibility for custom edits. Just let us know what you're thinking, and we’ll provide an estimate and timeframe to get started. Learn more here.

How much does a house cost to build?

Find out! Build costs vary based on the size of the home, materials used, and local rates for goods and labor. Our Cost to Build report is a great way to get some basic costs dialed in before you order your plans. Just plug in your postal code, select your desired construction quality, and we'll calculate for you.

Learn more about Cost to Build reports here.

Can I trust Houseplans?

Founded in 2004, Houseplans works with hundreds of architects and designers to offer their plans at a fraction of the price of custom design. Houseplans has an "Excellent" rating on TrustPilot.

Read more about us here.

Does Houseplans offer live support?

Yes, Houseplans has a dedicated team of house plan advisors with decades of experience between them. You can reach them by calling, emailing, filling out a form on the page of a plan that you like, or going to the Contact Us page. We're available to talk every day, even on weekends.

Builder Advantage Home

Builder Advantage Program

Are you a Pro Builder? Join the club, save 5% on your first order, get exclusive discounts, and more.

Learn More

You may also like

Save Plan
Victorian

Plan 410-3612

$1166.00

beds4

bd

baths4.5

ba

stories2

stories

square feet3574

sq ft

Save Plan
Country

Plan 427-1

$897.60

beds3

bd

baths2.5

ba

stories2

stories

square feet1908

sq ft

Save Plan
Farmhouse

Plan 430-422

$1445.00

beds3

bd

baths2.5

ba

stories1

story

square feet2494

sq ft

Recently viewed plans

Signature
Exterior - Front Elevation for Victorian House Plan #72-679 - 5 bed, 2 bath
Save Plan

Plan 72-679

$1399.20

beds5

bd

baths2

ba

stories3

stories

square feet3565

sq ft

Exterior - Front Elevation for Ranch House Plan #303-191 - 3 bed, 1 bath
Save Plan

Plan 303-191

$950.00

beds3

bd

baths1

ba

stories1

story

square feet2000

sq ft

Exterior - Front Elevation for Traditional House Plan #1054-22 - 6 bed, 6.5 bath
Save Plan

Plan 1054-22

$1290.00

beds6

bd

baths6.5

ba

stories2

stories

square feet6303

sq ft