Don't lose your saved plans! 
Create an account to access your saves whenever you want. See our Terms & Conditions and Privacy Policy.
OR

European House Plan 81-1254 3684 Sq Ft, 4 Bed, 3 Bath, 2 Floor, 3 Garage

Key Specs
  • 4
    Beds
  • 3
    Baths
  • 2
    Floors
  • 3
    Garages
  • 3684
    Square Feet
This european design floor plan is 3684 sq ft and has 4 bedrooms and 3 bathrooms.

Questions on this plan?

New to the process and looking for some help to kick things off? Let us know a bit about your plans and we’ll be happy to help.

Budget & Customization Tools

Modify icon
Customize this Plan
Tell us about your desired changes and we can prepare an estimate.
Cost to Build icon
Cost to Build Report
A personalized estimate based on your location, plan, & materials.
Cost to Build icon
Residential Construction Guide
This downloadable, 26-page guide is full of diagrams and details about plumbing, electrical, and more.

Full specs & Features

Basic Features

Bedrooms: 4
Baths: 3
Stories: 2
Garages: 3

Dimension

Depth: 86'
Height: 31'
Width: 47'

Area

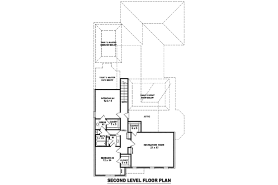
Total: 3684 sq/ft
Garage: 709 sq/ft
Main Floor: 2510 sq/ft
Porch: 155 sq/ft
Upper Floor: 1174 sq/ft
* Total Square Footage typically only includes conditioned space and does not include garages, porches, bonus rooms, or decks.

Ceiling

Main Ceiling: 9'
Upper Ceiling Ft: 9'

Roof

Primary Pitch: 12:12

Exterior Wall Framing

Framing: 2"x4"

Bedroom Features

Walk In Closet

Kitchen Features

Breakfast Nook
Eating Bar
Kitchen Island

Additional Room Features

Den Office Study Computer
Great Room Living Room
Hobby Rec Room Game Room
Storage Area

Garage Features

Oversized Garage
Rear Entry Garage
Rear Garage

Lot Characteristics

Suited For Narrow Lot
Suited For View Lot

More

Jack & Jill Bath

What's Included

Plans are typically drawn to ¼” scale and include:
  • Foundation Plan(s): Foundation plan, fully dimensioned.
  • Floor Plan(s): Floor plans w/ electrical, detailed framing information, window, and door sizes, Plumbing fixture locations, and dimensions.
  • Exterior Elevations: Views of the home from all four sides showing exterior materials, roof slope, ridge heights, siding and trim notes.
  • Overhead Roof Plan(s): Included with most plans. A view of the home from above showing roof pitch, peaks, valleys, and other details.
  • Cross Section(s): A slice of the home from roof to foundation, showing relationships between floors, roof, and foundation.
  • Kitchen Cabinet Elevation(s): Included with most plans. Detailed drawings of kitchen and bath cabinet elevations.
  • Detail Sheet(s): Details sheets for items like walls, chimneys, and fireplaces, including abbreviations, span tables.
  • Construction Notes / Detail(s): Shows basic parts and assemblies recommended for the home so the builder can see how things come together.
  • Stair Detail(s): Included with most plans. Drawings showing stair details.

FAQs

Are designs on Houseplans ready to submit to my building department for permitting?

It depends on where you're building. Our plans contain enough information for a professional builder to construct your home, but your local government may require additional information before permitting. We strongly advise that you talk with your builder before you get started. If you are building for yourself, we recommend visiting your local building department to start your diligence. Read more here.

Can I make changes to a plan?

Absolutely! Our modification service allows you to customize almost anything - whether it's adding an extra garage bay, adjusting square footage, changing the roof pitch, or more, the plan modification service is a great value and can be completed quickly. Additionally, if you purchase an electronic plan set (PDF or CAD), you may have the option to make changes locally. CAD files offer the most flexibility for custom edits. Just let us know what you're thinking, and we’ll provide an estimate and timeframe to get started. Learn more here.

How much does a house cost to build?

Find out! Build costs vary based on the size of the home, materials used, and local rates for goods and labor. Our Cost to Build report is a great way to get some basic costs dialed in before you order your plans. Just plug in your postal code, select your desired construction quality, and we'll calculate for you.

Learn more about Cost to Build reports here.

Can I trust Houseplans?

Founded in 2004, Houseplans works with hundreds of architects and designers to offer their plans at a fraction of the price of custom design. Houseplans has an "Excellent" rating on TrustPilot.

Read more about us here.

Does Houseplans offer live support?

Yes, Houseplans has a dedicated team of house plan advisors with decades of experience between them. You can reach them by calling, emailing, filling out a form on the page of a plan that you like, or going to the Contact Us page. We're available to talk every day, even on weekends.

Builder Advantage Home

Builder Advantage Program

Are you a Pro Builder? Join the club, save 5% on your first order, get exclusive discounts, and more.

Learn More

You may also like

Save Plan
European

Plan 453-56

$1550.00

beds3

bd

baths4

ba

stories2

stories

square feet3359

sq ft

Save Plan
Southern

Plan 44-222

$935.00

beds2

bd

baths1

ba

stories1

story

square feet890

sq ft

Recently viewed plans

Exterior - Front Elevation for European House Plan #81-1254 - 4 bed, 3 bath
Save Plan

Plan 81-1254

$1603.00

beds4

bd

baths3

ba

stories2

stories

square feet3684

sq ft