Don't lose your saved plans! 
Create an account to access your saves whenever you want. See our Terms & Conditions and Privacy Policy.
OR

Craftsman House Plan 928-71 4060 Sq Ft, 3 Bed, 4.5 Bath, 2 Floor, 4 Garage

Key Specs
  • 3
    Beds
  • 4.5
    Baths
  • 2
    Floors
  • 4
    Garages
  • 4060
    Square Feet
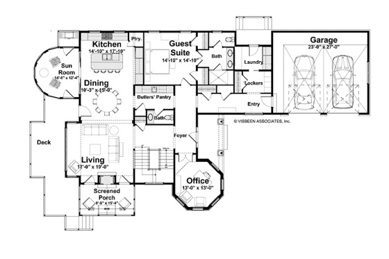
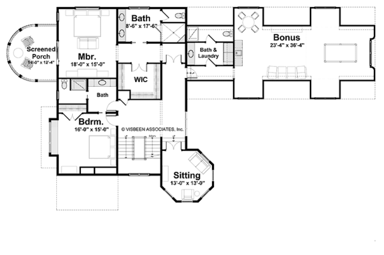
Echoes of the 19th-Century Queen Anne style give this spacious Visbeen Architects home its nostalgic charm. The inside, however, is all about contemporary design, with a modern open floor plan that leads from a main-floor foyer and screen porch into the living room, dining area, and family kitchen. Utilitarian areas – laundry, garage and home office – are concentrated on the home’s right side. Other highlights include a second-level master suite with a private screened porch, an octagonal sitting area, and an optional lower level with a guest bedroom and family room. The optional third floor includes two additional bedrooms and a spacious lounge.

Questions on this plan?

New to the process and looking for some help to kick things off? Let us know a bit about your plans and we’ll be happy to help.

Budget & Customization Tools

Modify icon
Customize this Plan
Tell us about your desired changes and we can prepare an estimate.
Cost to Build icon
Cost to Build Report
A personalized estimate based on your location, plan, & materials.
Cost to Build icon
Residential Construction Guide
This downloadable, 26-page guide is full of diagrams and details about plumbing, electrical, and more.

Full specs & Features

Basic Features

Bedrooms: 3
Baths: 4.5
Stories: 2
Garages: 4

Dimension

Depth: 53'
Height: 41' 5"
Width: 96'

Area

Total: 4060 sq/ft
Attic: 1010 sq/ft
Basement Unfinished: 827 sq/ft height 9'
Bonus: 861 sq/ft height 10'
First Floor: 2455 sq/ft height 10'
Second Floor: 1605 sq/ft height 11'
* Total Square Footage typically only includes conditioned space and does not include garages, porches, bonus rooms, or decks.

Roof

Primary Pitch: 12:12
Roof Framing: Truss
Roof Type: Asphalt

Exterior Wall Framing

Exterior Wall Finish: Siding/Stone
Framing: Wood - 2x6

Bedroom Features

Fireplace
Formal Dining Room
Formal Living Room / Parlor
Guest Suite
Split Bedrooms
Upstairs Master Bedrooms
Walk In Closet

Kitchen Features

Breakfast Nook
Kitchen Island
Kitchenette Wet Bar

Additional Room Features

Den Office Study Computer
Family Room Keeping Room
Great Room Living Room
Main Floor Laundry
Mud Room
Open Floor Plan
Storage Area
Sunroom
Unfinished Future Space
Vaulted / Cathedral Ceilings

Garage Features

Side Entry Garage

Outdoor Spaces

Courtyard
Covered Rear Porch
Deck
Screened Porch

Rooms

Bedroom 2:

240 sq/ft width 15' x depth 16'

Bedroom 3:

188 sq/ft width 13' x depth 14' 6"

Bedroom 4:

100 sq/ft width 10' 1" x depth 10'

Bedroom 5:

159 sq/ft width 14' 2" x depth 11' 3"

Dining Room:

153 sq/ft width 15' x depth 10' 3"

Family Room:

357 sq/ft width 19' x depth 18' 10"

Family Room:

423 sq/ft width 20' x depth 21' 2"

Garage:

621 sq/ft width 27' x depth 23'

Kitchen:

222 sq/ft width 15' x depth 14' 10"

Living Room:

285 sq/ft width 19' x depth 15'

Master Bedroom:

270 sq/ft width 15' x depth 18'

Master Bedroom:

220 sq/ft width 14' 10" x depth 14' 10"

Office:

169 sq/ft width 13' x depth 13'

Porch - Screened:

132 sq/ft width 15' 4" x depth 8' 8"

Sitting Area:

169 sq/ft width 13' x depth 13'

Sun Room:

175 sq/ft width 12' 6" x depth 14'

What's Included

Please note: If you are building this plan in the state of Michigan, please give us a call to confirm availability. The designer has some geographic restrictions in Michigan.

All plans are drawn at ¼” scale or larger and include :Plans are typically drawn to ¼” scale and include:

  • Foundation Plan(s): Drawn to 1/4" scale, this page shows all necessary notations and dimensions including support columns, walls and excavated and unexcavated areas.
  • Floor Plan(s): Detailed plans, drawn to 1/4" scale for each level showing room dimensions, wall partitions, windows, etc.
  • Exterior Elevations: A blueprint picture of all four sides showing exterior materials and measurements.
  • Overhead Roof Plan(s): A view of the home from above showing roof pitch, peaks, valleys, and other details.
  • Cross Section(s): A vertical cutaway view of the house from roof to foundation showing details of framing, construction, flooring and roofing. Important: If you are ordering a CAD set, or Right-Reading Reverse on this plan, please allow two weeks for delivery based on the current design schedule.
  • Construction Notes and Detail(s): Shows basic parts and assemblies recommended for the home so the builder can see how things come together.

FAQs

Are designs on Houseplans ready to submit to my building department for permitting?

It depends on where you're building. Our plans contain enough information for a professional builder to construct your home, but your local government may require additional information before permitting. We strongly advise that you talk with your builder before you get started. If you are building for yourself, we recommend visiting your local building department to start your diligence. Read more here.

Can I make changes to a plan?

Absolutely! Our modification service allows you to customize almost anything - whether it's adding an extra garage bay, adjusting square footage, changing the roof pitch, or more, the plan modification service is a great value and can be completed quickly. Additionally, if you purchase an electronic plan set (PDF or CAD), you may have the option to make changes locally. CAD files offer the most flexibility for custom edits. Just let us know what you're thinking, and we’ll provide an estimate and timeframe to get started. Learn more here.

How much does a house cost to build?

Find out! Build costs vary based on the size of the home, materials used, and local rates for goods and labor. Our Cost to Build report is a great way to get some basic costs dialed in before you order your plans. Just plug in your postal code, select your desired construction quality, and we'll calculate for you.

Learn more about Cost to Build reports here.

Can I trust Houseplans?

Founded in 2004, Houseplans works with hundreds of architects and designers to offer their plans at a fraction of the price of custom design. Houseplans has an "Excellent" rating on TrustPilot.

Read more about us here.

Does Houseplans offer live support?

Yes, Houseplans has a dedicated team of house plan advisors with decades of experience between them. You can reach them by calling, emailing, filling out a form on the page of a plan that you like, or going to the Contact Us page. We're available to talk every day, even on weekends.

Builder Advantage Home

Builder Advantage Program

Are you a Pro Builder? Join the club, save 5% on your first order, get exclusive discounts, and more.

Learn More

You may also like

Save Plan
Craftsman

Plan 126-236

$1195.00

beds2

bd

baths2

ba

stories1

story

square feet988

sq ft

Save Plan
Victorian

Plan 410-3612

$1166.00

beds4

bd

baths4.5

ba

stories2

stories

square feet3574

sq ft

Recently viewed plans

Signature
Craftsman Exterior - Front Elevation Plan #928-71
Save Plan

Plan 928-71

$1495.00

beds3

bd

baths4.5

ba

stories2

stories

square feet4060

sq ft

Craftsman Exterior - Front Elevation Plan #120-187
Save Plan

Plan 120-187

$1295.00

beds3

bd

baths2

ba

stories1

story

square feet1879

sq ft