European Style House Plan - 4 Beds 3 Baths 4291 Sq/Ft Plan #310-1260 - Houseplans.com
Search
REGISTER LOGIN SAVED No Saved Plans CART  Cart Empty
Don't lose your saved plans! Create an account to access your saves whenever you want. See our Terms & Conditions and Privacy Policy.
OR
15% OFF: SALE ENDS SOON!
Plan 310-1260
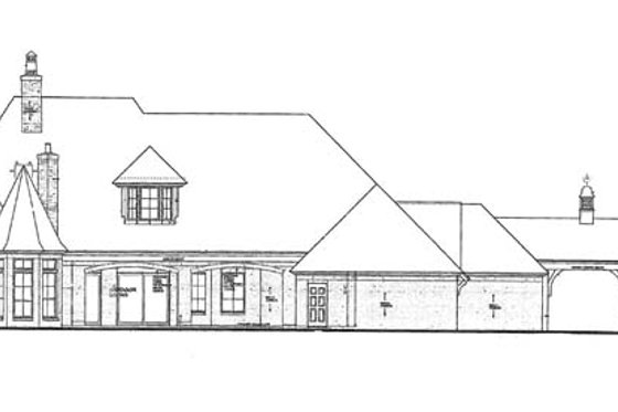
Photographs may show modified designs.
Home  >  Style  >  European

European House Plan 310-1260

Key Specs


Plan Sq Ft

4291
sq ft

Plan Bedrooms

4
Beds

Plan Bathrooms

3
Baths

Plan Floors

1
Floors

Plan Garages

4
Garages

Questions? Get Personalized Help
Select Plan Set Options
What's included?
Additional Construction Sets$42.50/each

Additional hard copies of the plan (can be ordered at the time of purchase and within 90 days of the purchase date).

$85.00
$33.15
Mirror Reversed Sets$55.25

Printed sets showing plan in reverse, text and dimensions will be backwards.

Subtotal
NOW $1525.75
You save $269.25
(15% savings)
Sale ends soon!
Best Price Guaranteed

Or order by phone: 1-800-913-2350
Questions? Get Personalized Help
 

 
Hours:
Ready for Your Call 7 Days a Week
Every Day 7 am - 8:30 pm Eastern

See Terms & Conditions and Privacy Policy.

Thanks for your question.

We will be in touch shortly.

Wow!
Cost to Build Reports
$1.99 with Code
CTB2026 (Limit 1)
Our Cost to Build Report gives you a personalized estimate for building your home, based on your location, plan, and materials.

Residential Construction Guide

Learn Building Basics

This downloadable, 26-page guide is full of diagrams and details about plumbing, electrical, and more.

Key Specs


Plan Sq Ft

4291
sq ft

Plan Bedrooms

4
Beds

Plan Bathrooms

3
Baths

Plan Floors

1
Floors

Plan Garages

4
Garages

Plan Description


This european design floor plan is 4291 sq ft and has 4 bedrooms and 3 bathrooms.

This plan can be customized!

Tell us about your desired changes so we can prepare an estimate for the design service. Click the button to submit your request for pricing, or call 1-800-913-2350.

Floor Plans


Floor Plan - Main Floor

Reverse
houseplans LOGO

BUILDER Advantage Program

PRO BUILDERS

Join the club and save 5% on your first order.
PLUS download exclusive discounts and more.

LEARN MORE

Floor Plan - Other Floor

Reverse

Full Specs & Features


Basic Features

Bedrooms : 4
Baths : 3
Stories: 1
Garages: 4

Dimension

Depth : 87'
Height : 36'
Width : 137' 5"

Area

Total : 4291 sq/ft
Bonus: 641 sq/ft height 9'
First Floor: 4291 sq/ft
Garage: 907 sq/ft
* Total Square Footage typically only includes conditioned space and does not include garages, porches, bonus rooms, or decks.

Roof

Primary Pitch : 12:12
Roof Framing : Conventional
Roof Type : Shingle

Exterior Wall Framing

Exterior Wall Finish : Brick/Stone/Stucco
Framing : Wood - 2x4

Bedroom Features

Fireplace
Formal Dining Room
Main Floor Master Bedroom
Split Bedrooms
Walk In Closet

Kitchen Features

Breakfast Nook
Kitchen Island
Kitchenette Wet Bar
Walk In Pantry Cabinet Pantry

Additional Room Features

Den Office Study Computer
Great Room Living Room
Hobby Rec Room Game Room
Main Floor Laundry
Master Sitting Area
Media Room
Mud Room
Open Floor Plan
Unfinished Future Space
Vaulted / Cathedral Ceilings
Workshop

Garage Features

Carport Porte Cochere
Rear Entry Garage
Side Entry Garage

Outdoor Spaces

Courtyard
Covered Rear Porch
Grill Deck Sundeck
Outdoor Fireplace

More

Jack & Jill Bath

Rooms

Bedroom 2:

width 13' 7" x depth 11' 3"

Bedroom 2 closet:

27 sq/ft width 6' x depth 4' 6"

Bedroom 2 closet:

width 6' x depth 5'

Bedroom 3:

width 13' x depth 13'

Bedroom 3 closet:

27 sq/ft width 6' x depth 4' 6"

Bedroom 3 closet:

width 6' 6" x depth 5'

Bedroom 4:

width 13' 5" x depth 14'

Bedroom 4 closet:

width 4' 6" x depth 6' 6"

Bonus:

641 sq/ft width 26' x depth 19'

Breakfast:

width 15' 5" x depth 13'

Covered Rear Porch:

width 36' 5" x depth 17' 6"

Dining Room:

width 18' x depth 12' 10"

Game/Media Room:

width 18' 3" x depth 18' 4"

Garage:

907 sq/ft width 24' x depth 36' 6"

Garage 4 / Carriage House:

403 sq/ft width 14' x depth 22'

Great Room:

width 26' x depth 17' 6"

Kitchen:

width 16' 3" x depth 16'

Master Bedroom:

width 16' x depth 21' 3"

Master shower:

width 4' 3" x depth 4' 9"

Master Sitting:

width 11' x depth 11'

master utility:

48 sq/ft width 8' x depth 6'

Master WIC (see com):

85 sq/ft width 11' 4" x depth 7' 6"

Master WIC #1:

59 sq/ft width 8' x depth 7' 4"

Pantry:

28 sq/ft width 5' x depth 5' 8"

Patio bath:

width 5' 6" x depth 6' 6"

Powder room:

width 4' 6" x depth 8'

Study:

width 16' x depth 13'

Utility:

74 sq/ft width 8' 9" x depth 8' 6"

What's included in this plan set


See a sample plan set
Plans are typically drawn to ¼” scale and include:
  • Cover Sheet: Showing architectural rendering of residence
  • Foundation Plan(s): This page shows all necessary notations and dimensions including footings, support columns, walls, and excavated/unexcavated areas.
  • Floor Plan(s): In general, each house plan set includes floor plans at 1/4" scale with a door and window schedule. Floor plans are typically drawn with 4" exterior walls. However, some plans may have details/sections for both 2"x4" and 2"x6" wall framing. Please see "Exterior Wall Framing" specification above for availability.
  • Exterior Elevations: In general, each house plan set includes all applicable front, sides and rear elevations, as well as any special exterior details.
  • Interior Elevations: Where applicable, each house plan set includes relevant interior elevations, including cabinets, cabinet details, columns and walls with unique conditions.
  • Overhead Roof Plan(s): A view of the home from above showing roof pitch, peaks, valleys, and other details.
  • Cross Section(s): A slice of the home from roof to foundation, showing relationships between floors, roof, and foundation.
  • Electrical Plan(s): In general, each house plan set includes an electrical plan which will show the locations of lights, receptacles, switches, etc.
  • Construction Notes / Detail(s): Shows basic parts and assemblies recommended for the home so the builder can see how things come together.
* See important information before purchasing

Pricing


Plan Options

5 Copy Set

$1525.75
5 printed plan sets mailed to you.

8 Copy Set

$1644.75
8 printed plan sets mailed to you.

PDF Set

Best Value!
$1772.25
PDF plan sets are best for fast electronic delivery and inexpensive local printing.

Reproducible Set

$1772.25
For inexpensive local printing / making minor adjustments by hand. 1 printed set, typically on Bond paper.

CAD Set

$2796.50
For use by design professionals to make substantial changes to your house plan and inexpensive local printing.

Single Set

$1479.00
One printed set for bidding purposes only. Not a legal building set for construction.

Foundation Options

Slab

$0.00
Ideal for level lot, single layer concrete poured directly on grade.

*Options with a fee may take time to prepare. Please call to confirm.

Framing Options

Wood 2x4

$0.00
Wood 2x4 Exterior Walls

*Options with a fee may take time to prepare. Please call to confirm.

Additional Options

Additional Construction Sets

$42.50
Additional hard copies of the plan (can be ordered at the time of purchase and within 90 days of the purchase date).

Audio Video Design

$85.00
Receive an overlay sheet with suggested placement of audio and video components.

Construction Guide

$33.15
Educate yourself about basic building ideas with these four detailed diagrams that discuss electrical, plumbing, mechanical, and structural topics.

Mirror Reversed Sets

$55.25
A mirror-reversed set is a printed copy of your house, resulting in the same image you would see if you held the drawing up to a mirror. Everything, including the text, is backward in relation to the original design. These kinds of drawing are typically used to reorient an original plan more advantageously on a site, either because the homeowner prefers it that way or because of limitations of the site itself. Note: Mirror reverse sets are only available with a 5 copy or 8 copy set. With a Reproducible, PDF, or CAD set, you can print mirrored copies locally. In addition: 5 Copy set selected, should only allow 4 mirrored sets to be selected. 8 Copy set selected, should only allow 7 mirrored sets to be selected.

*Options with a fee may take time to prepare. Please call to confirm.

Unless you buy an “unlimited” plan set or a multi-use license you may only build one home from a set of plans. Please call to verify if you intend to build more than once. Plan licenses are non-transferable and cannot be resold.

We offer a 90% credit when you upgrade from a set, that is not for construction, to a 5-Copy set (or greater).

Other Plans By This Designer

See all plans by
this designer

Need help? Let our friendly experts help you find the perfect plan!

Contact us now for a free consultation.