Don't lose your saved plans! 
Create an account to access your saves whenever you want. See our Terms & Conditions and Privacy Policy.
OR

Country House Plan 124-967 4568 Sq Ft, 3 Bed, 3.5 Bath, 2 Floor, 3 Garage

Key Specs
  • 3
    Beds
  • 3.5
    Baths
  • 2
    Floors
  • 3
    Garages
  • 4568
    Square Feet
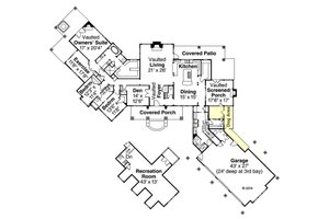
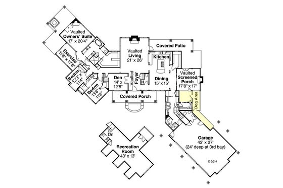
Stone veneer wainscoting and column supports give a relaxed look to this plan, an estate home designed for construction on country acreage with a view. Craftsman-style windows, along with multiple gables and two chimneys, add to the home’s traditional flavor. A gently arched transom crowns the arched entry opening, which is centered between front porch columns. This combination imparts a nostalgic genteel ambiance. Inside, natural light washes into the vaulted foyer through the transom. Double doors on the left open into a room that could be a den or home office. Walking directly ahead brings you to a breath-taking vaulted living room, windowed on three sides. The upper set of stacked windows flanking the fireplace curve up to parallel the vaulted ceiling, emphasizing its loftiness. Kitchen and dining room are off to the right. A long conversation bar, ideal for entertaining, rims the counter that bounds the kitchen. Counters and cupboards line two walls. Six burners are built into the exceptionally large work island that anchors the kitchen. A deep pantry is just around the corner, next to a vaulted screened porch with access to the partially covered patio. This plan was designed with dog owners in mind. Linked to the screened porch and laundry room, the dog area comes complete with a fully enclosed indoor room and run, plus an outdoor run (see highlighted area on floor plan). Bedrooms fill the left wing, along with an exercise room and two covered patios. One has a vaulted roof and hot tub. Owners’ suite amenities include a fireplace, spacious walk-in closet, and luxurious bathroom. Two more bedrooms share a two-section bathroom. Three gabled dormers add charm and bring light into the bonus room over the garage.

Questions on this plan?

New to the process and looking for some help to kick things off? Let us know a bit about your plans and we’ll be happy to help.

Budget & Customization Tools

Modify icon
Customize this Plan
Tell us about your desired changes and we can prepare an estimate.
Cost to Build icon
Cost to Build Report
A personalized estimate based on your location, plan, & materials.
Cost to Build icon
Residential Construction Guide
This downloadable, 26-page guide is full of diagrams and details about plumbing, electrical, and more.

Full specs & Features

Basic Features

Bedrooms: 3
Baths: 3.5
Stories: 2
Garages: 3

Dimension

Depth: 131' 8"
Height: 25' 9"
Width: 145' 1"

Area

Total: 4568 sq/ft
First Floor: 3758 sq/ft height 9'
Garage: 1207 sq/ft
Second Floor: 810 sq/ft height 9'
* Total Square Footage typically only includes conditioned space and does not include garages, porches, bonus rooms, or decks.

Ceiling

Main Ceiling: 9'

Roof

Primary Pitch: 10/12
Roof Framing: Truss/Stick
Roof Load: 20
Roof Type: Shingle

Exterior Wall Framing

Exterior Wall Finish: Siding/Stone
Framing: 2x6

Bedroom Features

Main Floor Bedrooms
Main Floor Master Bedroom
Walk In Closet

Kitchen Features

Breakfast Nook
Eating Bar
Kitchen Island
Walk In Pantry Cabinet Pantry

Additional Room Features

Den Office Study Computer
Hobby Rec Room Game Room
Main Floor Laundry
Mud Room
Sunroom

Garage Features

Front Entry Garage

Lot Characteristics

Suited For View Lot

Outdoor Spaces

Covered Front Porch
Covered Rear Porch
Screened Porch

More

Jack & Jill Bath

Rooms

Bedroom 2:

158 sq/ft width 13' 6" x depth 11' 8"

Bedroom 3:

216 sq/ft width 12' 3" x depth 17' 8"

Den:

177 sq/ft width 14' x depth 12' 8"

Dining Area:

225 sq/ft width 15' x depth 15'

Garage:

1207 sq/ft width 43' x depth 27'

Living Room:

546 sq/ft width 21' x depth 26'

Owner's Bedroom:

346 sq/ft width 17' x depth 20' 4"

Recreation Room:

559 sq/ft width 43' x depth 13'

Screened Porch:

386 sq/ft width 17' 8" x depth 17'

What's Included

Please note, if ordering a PDF Print Set, it is not-modifiable. The CAD set is best for making local modifications. The "5 set + PDF" combo contains a non-modifiable PDF Print Set.

Each plan set is drawn at 1/4"=1' scale and includes the following drawings:
  • Artist's Rendering: An artist's drawing of the home, usually viewed from the front, and general construction notes.
  • Elevations: Shows the front, sides, and rear, including exterior materials, trim sizes, roof pitches, etc.
  • Main Floor Plan: Shows placement and dimensions of walls, doors, & windows. Includes the location of appliances, plumbing fixtures, beams, ceiling heights, etc.
  • Second Floor Plan (if any): Shows the second floor in the same detail as the main floor. Includes second floor framing and details.
  • Foundation Plan: Shows the location of all concrete footings, floor beams, first floor framing, and foundation details. If there is a basement, a basement plan is included which shows all basement details. Foundation types vary; please call to confirm the foundation type of the plan you are interested in.
  • Floor Framing Plan (if any): Shows location and spacing of floor joists and supporting walls or beams.
  • Roof Framing Plan: Shows roof outlines, conventional framing/trusses, beams, roof framing details, etc. Specific details such as fireplaces, stairways, decks, etc. Details are drawn at 1/2" = 1' scale, and appear as needed throughout the prints.
  • Section: Shows a cross-section of the home. Shows support members, exterior and interior materials, insulation, and foundation.
  • Electrical Plan: A schematic layout of all lighting, switches and electrical outlets.

FAQs

Are designs on Houseplans ready to submit to my building department for permitting?

It depends on where you're building. Our plans contain enough information for a professional builder to construct your home, but your local government may require additional information before permitting. We strongly advise that you talk with your builder before you get started. If you are building for yourself, we recommend visiting your local building department to start your diligence. Read more here.

Can I make changes to a plan?

Absolutely! Our modification service allows you to customize almost anything - whether it's adding an extra garage bay, adjusting square footage, changing the roof pitch, or more, the plan modification service is a great value and can be completed quickly. Additionally, if you purchase an electronic plan set (PDF or CAD), you may have the option to make changes locally. CAD files offer the most flexibility for custom edits. Just let us know what you're thinking, and we’ll provide an estimate and timeframe to get started. Learn more here.

How much does a house cost to build?

Find out! Build costs vary based on the size of the home, materials used, and local rates for goods and labor. Our Cost to Build report is a great way to get some basic costs dialed in before you order your plans. Just plug in your postal code, select your desired construction quality, and we'll calculate for you.

Learn more about Cost to Build reports here.

Can I trust Houseplans?

Founded in 2004, Houseplans works with hundreds of architects and designers to offer their plans at a fraction of the price of custom design. Houseplans has an "Excellent" rating on TrustPilot.

Read more about us here.

Does Houseplans offer live support?

Yes, Houseplans has a dedicated team of house plan advisors with decades of experience between them. You can reach them by calling, emailing, filling out a form on the page of a plan that you like, or going to the Contact Us page. We're available to talk every day, even on weekends.

Builder Advantage Home

Builder Advantage Program

Are you a Pro Builder? Join the club, save 5% on your first order, get exclusive discounts, and more.

Learn More

You may also like

Save Plan
Country

Plan 427-1

$897.60

beds3

bd

baths2.5

ba

stories2

stories

square feet1908

sq ft

Save Plan
Traditional

Plan 20-2346

$1305.00

beds4

bd

baths2.5

ba

stories2

stories

square feet2257

sq ft

Recently viewed plans

Country Exterior - Front Elevation Plan #124-967
Save Plan

Plan 124-967

$2715.00

beds3

bd

baths3.5

ba

stories2

stories

square feet4568

sq ft

Country style home, elevation
Save Plan

Plan 21-368

$1300.00

beds3

bd

baths2.5

ba

stories1

story

square feet1888

sq ft

Modern Exterior - Front Elevation Plan #48-468
Save Plan

Plan 48-468

$2854.00

beds4

bd

baths5.5

ba

stories2

stories

square feet4887

sq ft