European Style House Plan - 5 Beds 4 Baths 4662 Sq/Ft Plan #411-199 - Houseplans.com
Search
REGISTER LOGIN SAVED No Saved Plans CART  Cart Empty
Don't lose your saved plans! Create an account to access your saves whenever you want. See our Terms & Conditions and Privacy Policy.
OR
Plan 411-199
Photographs may show modified designs.
Home  >  Style  >  European

European House Plan 411-199

Key Specs


Plan Sq Ft

4662
sq ft

Plan Bedrooms

5
Beds

Plan Bathrooms

4
Baths

Plan Floors

2
Floors

Plan Garages

3
Garages

Questions? Get Personalized Help
Select Plan Set Options
What's included?
$250.00
Additional Construction Sets$50.00/each

Additional hard copies of the plan (can be ordered at the time of purchase and within 90 days of the purchase date).

$100.00
$39.00
$200.00
Mirror Reversed Sets$0.00

Printed sets showing plan in reverse, text and dimensions will be backwards.

Subtotal
$1260.00
Best Price Guaranteed

Or order by phone: 1-800-913-2350
Questions? Get Personalized Help
 

 
Hours:
Ready for Your Call 7 Days a Week
Every Day 7 am - 8:30 pm Eastern

See Terms & Conditions and Privacy Policy.

Thanks for your question.

We will be in touch shortly.

Wow!
Cost to Build Reports
$1.99 with Code
CTB2026 (Limit 1)
Our Cost to Build Report gives you a personalized estimate for building your home, based on your location, plan, and materials.

Residential Construction Guide

Learn Building Basics

This downloadable, 26-page guide is full of diagrams and details about plumbing, electrical, and more.

Key Specs


Plan Sq Ft

4662
sq ft

Plan Bedrooms

5
Beds

Plan Bathrooms

4
Baths

Plan Floors

2
Floors

Plan Garages

3
Garages

Plan Description


This european design floor plan is 4662 sq ft and has 5 bedrooms and 4 bathrooms.

This plan can be customized!

Tell us about your desired changes so we can prepare an estimate for the design service. Click the button to submit your request for pricing, or call 1-800-913-2350.

Floor Plans


Floor Plan - Main Floor

Reverse
houseplans LOGO

BUILDER Advantage Program

PRO BUILDERS

Join the club and save 5% on your first order.
PLUS download exclusive discounts and more.

LEARN MORE

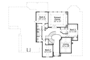
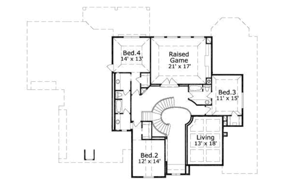
Floor Plan - Upper Floor

Reverse

Full Specs & Features


Basic Features

Bedrooms : 5
Baths : 4
Stories: 2
Garages: 3

Dimension

Depth : 65'
Height : 36'
Width : 87'

Area

Total : 4662 sq/ft
Main Floor : 3157 sq/ft
Upper Floor : 1505 sq/ft
* Total Square Footage typically only includes conditioned space and does not include garages, porches, bonus rooms, or decks.

Ceiling

Main Ceiling : 10'
Upper Ceiling Ft : 9'

Bedroom Features

Guest Suite
Main Floor Master Bedroom
Split Bedrooms
Walk In Closet

Kitchen Features

Breakfast Nook
Butler's Pantry
Eating Bar

Additional Room Features

Den Office Study Computer
Family Room Keeping Room
Loft
Master Sitting Area
Play Flex Room
Workshop

Garage Features

Oversized Garage
Side Entry Garage

Outdoor Spaces

Balcony
Covered Front Porch

What's included in this plan set


See a sample plan set
Plans are typically drawn to ¼” scale and include:
  • Foundation Plan(s): A slab interface diagram is provided showing the footprint of the home but does not include structural details for constructing the foundation.
  • Floor Plan(s): Includes: Complete & accurate dimensions, floor & ceiling heights, general architectural features, cabinet, appliance & plumbing layouts, windows, door & openings labeled, room titles, code related & general notes, building section markets, electrical layouts (may be separate plan).
  • Exterior Elevations: Includes: Rendered front elevation, Floor to floor & plate heights, Roof pitches, Exterior materials labeled, Window & door shapes & design.
  • Interior Elevations: Includes: Cabinet elevations, locations of drawers, doors, shelves, etc., locations of appliances, plumbing & related items, dimensions of heights. Specification of door designs & molding will not necessarily be indicated.
  • Overhead Roof Plan(s): Includes: Roof design, Hips, ridges, valleys, etc. labeled, Plate heights labeled, Notes related to residential construction, Code related notes.
  • Cross Section(s): A slice of the home from roof to foundation, showing relationships between floors, roof, and foundation.
  • Building Section(s): Includes: Floor to floor dimensions, Floor & ceiling changes, Floor system dimensions, Plate heights labeled, Roof pitches indicated, Stair section & related notes, Misc. framing detail, General code related notes for residential construction.
  • Detail Sheet(s): Includes: Typical building section, Wall sections indicating method of construction & material make-up, Misc. framing details, Typical lintel & header span tables, Fastening & nailing schedules, Typical 2 & 3 car detached garage plans, General & misc. code related notes.
  • Construction Notes / Detail(s): Shows basic parts and assemblies recommended for the home so the builder can see how things come together.
DRAWINGS NOT PROVIDED: Foundation plans - A slab interface diagram is provided showing the footprint of the home but does not include structural details for constructing the foundation, structural engineering, HVAC layouts (heating & air conditioning), detailed specifications, electrical wiring diagrams & load analysis, plumbing diagrams.
* See important information before purchasing

Pricing


Plan Options

PDF Set

Best Value!
$1260.00
PDF plan sets are best for fast electronic delivery and inexpensive local printing.

CAD Set

$2310.00
For use by design professionals to make substantial changes to your house plan and inexpensive local printing.

Single Set

$924.00
One printed set for bidding purposes only. Not a legal building set for construction.

Foundation Options

Slab

$0.00
Ideal for level lot, single layer concrete poured directly on grade.

*Options with a fee may take time to prepare. Please call to confirm.

Additional Options

Right-Reading Reverse

$250.00
Choose this option to reverse your plans and to have the text and dimensions readable.

Additional Construction Sets

$50.00
Additional hard copies of the plan (can be ordered at the time of purchase and within 90 days of the purchase date).

Audio Video Design

$100.00
Receive an overlay sheet with suggested placement of audio and video components.

Construction Guide

$39.00
Educate yourself about basic building ideas with these four detailed diagrams that discuss electrical, plumbing, mechanical, and structural topics.

Lighting Design

$200.00
Receive an overlay sheet with suggested placement of lighting fixtures.

Mirror Reversed Sets

$0.00
A mirror-reversed set is a printed copy of your house, resulting in the same image you would see if you held the drawing up to a mirror. Everything, including the text, is backward in relation to the original design. These kinds of drawing are typically used to reorient an original plan more advantageously on a site, either because the homeowner prefers it that way or because of limitations of the site itself. Note: Mirror reverse sets are only available with a 5 copy or 8 copy set. With a Reproducible, PDF, or CAD set, you can print mirrored copies locally. In addition: 5 Copy set selected, should only allow 4 mirrored sets to be selected. 8 Copy set selected, should only allow 7 mirrored sets to be selected.

*Options with a fee may take time to prepare. Please call to confirm.

Unless you buy an “unlimited” plan set or a multi-use license you may only build one home from a set of plans. Please call to verify if you intend to build more than once. Plan licenses are non-transferable and cannot be resold.

We offer a 90% credit when you upgrade from a set, that is not for construction, to a 5-Copy set (or greater).

Browse Similar Plans

Need help? Let our friendly experts help you find the perfect plan!

Contact us now for a free consultation.

Coupon Codes