Traditional Style House Plan - 4 Beds 4.5 Baths 5101 Sq/Ft Plan #97-215 - Houseplans.com
Search
REGISTER LOGIN SAVED No Saved Plans CART  Cart Empty
Don't lose your saved plans! Create an account to access your saves whenever you want. See our Terms & Conditions and Privacy Policy.
OR
Plan 97-215
Photographs may show modified designs.
Home  >  Style  >  Traditional

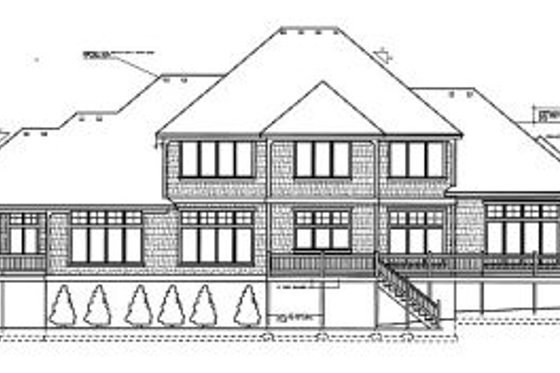
Traditional House Plan 97-215

Key Specs


Plan Sq Ft

5101
sq ft

Plan Bedrooms

4
Beds

Plan Bathrooms

4.5
Baths

Plan Floors

2
Floors

Plan Garages

4
Garages

Questions? Get Personalized Help
Select Plan Set Options
What's included?
$150.00
Additional Construction Sets$50.00/each

Additional hard copies of the plan (can be ordered at the time of purchase and within 90 days of the purchase date).

$165.00
$39.00
$165.00
Subtotal
$2045.00
Best Price Guaranteed

Or order by phone: 1-800-913-2350
Questions? Get Personalized Help
 

 
Hours:
Ready for Your Call 7 Days a Week
Every Day 7 am - 8:30 pm Eastern

See Terms & Conditions and Privacy Policy.

Thanks for your question.

We will be in touch shortly.

Wow!
Cost to Build Reports
$1.99 with Code
CTBFALL (Limit 1)
Our Cost to Build Report gives you a personalized estimate for building your home, based on your location, plan, and materials.

Residential Construction Guide

Learn Building Basics

This downloadable, 26-page guide is full of diagrams and details about plumbing, electrical, and more.

Key Specs


Plan Sq Ft

5101
sq ft

Plan Bedrooms

4
Beds

Plan Bathrooms

4.5
Baths

Plan Floors

2
Floors

Plan Garages

4
Garages

Plan Description


This traditional design floor plan is 5101 sq ft and has 4 bedrooms and 4.5 bathrooms.

This plan can be customized!

Tell us about your desired changes so we can prepare an estimate for the design service. Click the button to submit your request for pricing, or call 1-800-913-2350.

Floor Plans


Floor Plan - Main Floor

Reverse
houseplans LOGO

BUILDER Advantage Program

PRO BUILDERS

Join the club and save 5% on your first order.
PLUS download exclusive discounts and more.

LEARN MORE

Floor Plan - Upper Floor

Reverse

Full Specs & Features


Basic Features

Bedrooms : 4
Baths : 4.5
Stories: 2
Garages: 4

Dimension

Depth : 85' 4"
Height : 35'
Width : 96'

Area

Total : 5101 sq/ft
Bonus: 270 sq/ft
First Floor: 3825 sq/ft
Second Floor: 1276 sq/ft
* Total Square Footage typically only includes conditioned space and does not include garages, porches, bonus rooms, or decks.

Ceiling

Main Ceiling : 10'
Upper Ceiling Ft : 9'

Roof

Primary Pitch : 8:12
Roof Type : Shingle
Secondary Pitch : 10:12

Exterior Wall Framing

Exterior Wall Finish : Shingle/Stone
Framing : 2"x6"

Bedroom Features

Main Floor Master Bedroom
Walk In Closet

Kitchen Features

Breakfast Nook
Kitchen Island
Walk In Pantry Cabinet Pantry

Additional Room Features

Den Office Study Computer
Family Room Keeping Room
Master Sitting Area
Play Flex Room

Garage Features

Side Entry Garage

Lot Characteristics

Suited For Corner Lot
Suited For View Lot

More

Jack & Jill Bath

What's included in this plan set


See a sample plan set
Plans are typically drawn to ¼” scale and include:
  • Foundation Plan(s): Foundation or Basement Plan drawn at 1/4" = 1'-0" scale, and includes: All post and beam locations, door and window sizes, complete and accurate dimensions, all foundation wall and footing sizes, code-related notes, building section markers, floor and deck joist type, spacing and direction, mechanical equipment location, electrical layouts.
  • Floor Plan(s): Floor Plans drawn at 1/4" = 1'-0" scale, and includes all post and beam locations, door and window sizes, complete and accurate dimensions, room labels and interior room sizes, electrical layouts, code-related notes, building section markers, floor joist type, spacing and direction
  • Exterior Elevations: Elevations drawn at 1/4" = 1'-0" scale, and includes material labels, floor-to-floor heights, roof slope indicators, attic ventilation notes
  • Overhead Roof Plan(s): Roof Plan drawn at 1/4" = 1'-0", and includes all beam and header locations, building section markers, code-related notes, all necessary notes pertaining to the structural system
  • Cross Section(s): A slice of the home from roof to foundation, showing relationships between floors, roof, and foundation.
  • Building Section(s): Building Sections drawn at 1/4" = 1'-0" scale, and includes beam connections and locations, floor joist type and spacing, floor-to-floor heights, non-typical plate heights indicated
  • Construction Notes / Detail(s): Shows basic parts and assemblies recommended for the home so the builder can see how things come together.
  • Other Note(s): Including miscellaneous framing details, stairway details and general notes covering code requirements for residential construction
* See important information before purchasing

Pricing


Plan Options

PDF Set

Best Value!
$2045.00
PDF plan sets are best for fast electronic delivery and inexpensive local printing.

5 Copy Set

$2195.00
5 printed plan sets mailed to you.

5 Copy and PDF Set

$2295.00
5 printed plan sets mailed to you plus PDF plan sets are best for fast electronic delivery and inexpensive local printing.

CAD Unlimited Build

$3045.00
For use by design professionals to make substantial changes to your house plan and inexpensive local printing.

Foundation Options

Crawlspace

$0.00
Ideal for semi-sloped or level lot, home can be built off of grade, typically 18” - 48”.

Slab

$150.00
Ideal for level lot, single layer concrete poured directly on grade.

Basement

$350.00
Ideal for level lot, lower level of home partially or fully underground.

Daylight Basement

$450.00
Ideal for sloping lot, lower level of home partially underground.

*Options with a fee may take time to prepare. Please call to confirm.

Additional Options

Right-Reading Reverse

$150.00
Choose this option to reverse your plans and to have the text and dimensions readable.

Additional Construction Sets

$50.00
Additional hard copies of the plan (can be ordered at the time of purchase and within 90 days of the purchase date).

Audio Video Design

$165.00
Receive an overlay sheet with suggested placement of audio and video components.

Construction Guide

$39.00
Educate yourself about basic building ideas with these four detailed diagrams that discuss electrical, plumbing, mechanical, and structural topics.

Lighting Design

$165.00
Receive an overlay sheet with suggested placement of lighting fixtures.

*Options with a fee may take time to prepare. Please call to confirm.

Unless you buy an “unlimited” plan set or a multi-use license you may only build one home from a set of plans. Please call to verify if you intend to build more than once. Plan licenses are non-transferable and cannot be resold.

Browse Similar Plans

Need help? Let our friendly experts help you find the perfect plan!

Contact us now for a free consultation.