Modern Style House Plan - 2 Beds 1.5 Baths 670 Sq/Ft Plan #469-2 - Houseplans.com
Search
REGISTER LOGIN SAVED No Saved Plans CART  Cart Empty
Don't lose your saved plans! Create an account to access your saves whenever you want. See our Terms & Conditions and Privacy Policy.
OR
15% OFF TODAY (SALE EXTENDED!)
Plan 469-2
Photographs may show modified designs.
Home  >  Style  >  Modern

Modern House Plan 469-2

Key Specs


Plan Sq Ft

670
sq ft

Plan Bedrooms

2
Beds

Plan Bathrooms

1.5
Baths

Plan Floors

2
Floors

Plan Garages

0
Garages

Questions? Get Personalized Help
Select Plan Set Options
What's included?
Additional Construction Sets$34.00/each

Additional hard copies of the plan (can be ordered at the time of purchase and within 90 days of the purchase date).

$85.00
$33.15
$85.00
Mirror Reversed Sets$0.00

Printed sets showing plan in reverse, text and dimensions will be backwards.

Subtotal
NOW $680.00
You save $120.00
(15% savings)
Sale ends soon!
Best Price Guaranteed

Or order by phone: 1-800-913-2350
Questions? Get Personalized Help
 

 
Hours:
Ready for Your Call 7 Days a Week
Every Day 7 am - 8:30 pm Eastern

See Terms & Conditions and Privacy Policy.

Thanks for your question.

We will be in touch shortly.

Wow!
Cost to Build Reports
$1.99 with Code
CTB2026 (Limit 1)
Our Cost to Build Report gives you a personalized estimate for building your home, based on your location, plan, and materials.

Residential Construction Guide

Learn Building Basics

This downloadable, 26-page guide is full of diagrams and details about plumbing, electrical, and more.

Key Specs


Plan Sq Ft

670
sq ft

Plan Bedrooms

2
Beds

Plan Bathrooms

1.5
Baths

Plan Floors

2
Floors

Plan Garages

0
Garages

Plan Description


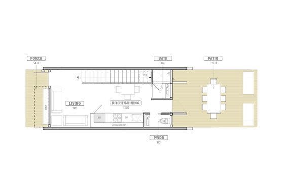
Compact, contemporary 2 bedroom home, ideal for a vacation home with a view. Features a galley kitchen, 1.5 baths, a compact interior dining and living space, gracious outdoor areas for entertaining and relaxing, a flexible bonus-bedroom upstairs, high ceilings, and huge windows for amazing views, with a picture window and window seat at the front. Economical to build with SIP panels, or alternatively out of rammed earth, straw bale, or any other construction technique. Exterior features reclaimed wood cladding and zinc, corrugated metal or earth-stucco for the side walls. Ideal for desert climates and/or remote locations. Optional matching detached garage with rainwater harvesting, see plan 469-3.

This plan can be customized!

Tell us about your desired changes so we can prepare an estimate for the design service. Click the button to submit your request for pricing, or call 1-800-913-2350.

Floor Plans


Floor Plan - Main Floor

Reverse
houseplans LOGO

BUILDER Advantage Program

PRO BUILDERS

Join the club and save 5% on your first order.
PLUS download exclusive discounts and more.

LEARN MORE

Floor Plan - Upper Floor

Reverse

Full Specs & Features


Basic Features

Bedrooms : 2
Baths : 1.5
Stories: 2
Garages: 0

Dimension

Depth : 28'
Height : 27'
Width : 14'

Area

Total : 670 sq/ft
Decks : 240 sq/ft
Main Floor : 335 sq/ft
Porch : 65 sq/ft
Storage : 75 sq/ft
Upper Floor : 335 sq/ft
* Total Square Footage typically only includes conditioned space and does not include garages, porches, bonus rooms, or decks.

Ceiling

Garage Ceiling : 9'
Main Ceiling : 12'
Upper Ceiling Ft : 12'

Roof

Primary Pitch : 1:12
Roof Framing : SIP
Roof Type : ZINC

Exterior Wall Framing

Exterior Wall Finish : Zinc, Rammer Earth or Corrugated Metal
Framing : SIP
Insulation : 25
Sip

Kitchen Features

Breakfast Nook

Additional Room Features

Storage Area

Garage Features

Detached Garage

Lot Characteristics

Suited For Narrow Lot
Suited For View Lot
Zero Lot Lines

Outdoor Spaces

Covered Front Porch
Grill Deck Sundeck

More

Economical To Build
Suited For Vacation Home
Unusual Shape

Energy Efficient Features

Energy Efficient Design
Green Specifications
LEED Specifications
Passive Solar Systems

What's included in this plan set


See a sample plan set

All plans are drawn at ¼” scale or larger and include :

  • Foundation Plan: This page shows all necessary notations and dimensions including support columns, walls, and excavated/unexcavated areas.
  • Exterior Elevations: Views of the home from all four sides showing exterior materials and measurements.
  • Floor Plan(s): Detailed plans for each level showing room dimensions, wall partitions, windows and doors, etc.
  • Cross Section: A slice of the home from roof to foundation, showing important details like stairs and wall construction.
  • Overhead Roof Plan(s): A view of the home from above showing roof pitch, peaks, valleys, and other details.
  • Construction Notes and Details: Shows the builder how things come together, like walls, the chimney, insulation, and more.
* See important information before purchasing

Pricing


Plan Options

5 Copy Set

$680.00
5 printed plan sets mailed to you.

CAD Set

$1275.00
For use by design professionals to make substantial changes to your house plan and inexpensive local printing.

Foundation Options

Slab

$0.00
Ideal for level lot, single layer concrete poured directly on grade.

*Options with a fee may take time to prepare. Please call to confirm.

Additional Options

Additional Construction Sets

$34.00
Additional hard copies of the plan (can be ordered at the time of purchase and within 90 days of the purchase date).

Audio Video Design

$85.00
Receive an overlay sheet with suggested placement of audio and video components.

Construction Guide

$33.15
Educate yourself about basic building ideas with these four detailed diagrams that discuss electrical, plumbing, mechanical, and structural topics.

Lighting Design

$85.00
Receive an overlay sheet with suggested placement of lighting fixtures.

Mirror Reversed Sets

$0.00
A mirror-reversed set is a printed copy of your house, resulting in the same image you would see if you held the drawing up to a mirror. Everything, including the text, is backward in relation to the original design. These kinds of drawing are typically used to reorient an original plan more advantageously on a site, either because the homeowner prefers it that way or because of limitations of the site itself. Note: Mirror reverse sets are only available with a 5 copy or 8 copy set. With a Reproducible, PDF, or CAD set, you can print mirrored copies locally. In addition: 5 Copy set selected, should only allow 4 mirrored sets to be selected. 8 Copy set selected, should only allow 7 mirrored sets to be selected.

*Options with a fee may take time to prepare. Please call to confirm.

Unless you buy an “unlimited” plan set or a multi-use license you may only build one home from a set of plans. Please call to verify if you intend to build more than once. Plan licenses are non-transferable and cannot be resold.

Browse Similar Plans

Need help? Let our friendly experts help you find the perfect plan!

Contact us now for a free consultation.