Craftsman Style House Plan - 2 Beds 2 Baths 1928 Sq/Ft Plan #902-1 - Houseplans.com
Search
REGISTER LOGIN SAVED No Saved Plans CART  Cart Empty
Don't lose your saved plans! Create an account to access your saves whenever you want. See our Terms & Conditions and Privacy Policy.
OR
15% OFF FOR THE FIRST 25 CUSTOMERS
Photographs may show modified designs.
Home  >  Style  >  Craftsman

Craftsman House Plan 902-1

Key Specs


Plan Sq Ft

1928
sq ft

Plan Bedrooms

2
Beds

Plan Bathrooms

2
Baths

Plan Floors

3
Floors

Plan Garages

2
Garages

Questions? Get Personalized Help
Select Plan Set Options
What's included?
$255.00
$85.00
$33.15
$85.00
Subtotal
NOW $1275.00
You save $225.00
(15% savings)
Sale ends soon!
Best Price Guaranteed

Or order by phone: 1-800-913-2350
Questions? Get Personalized Help
 

 
Hours:
Ready for Your Call 7 Days a Week
Every Day 7 am - 8:30 pm Eastern

See Terms & Conditions and Privacy Policy.

Thanks for your question.

We will be in touch shortly.

Wow!
Cost to Build Reports
$1.99 with Code
CTB2026 (Limit 1)
Our Cost to Build Report gives you a personalized estimate for building your home, based on your location, plan, and materials.

Residential Construction Guide

Learn Building Basics

This downloadable, 26-page guide is full of diagrams and details about plumbing, electrical, and more.

Key Specs


Plan Sq Ft

1928
sq ft

Plan Bedrooms

2
Beds

Plan Bathrooms

2
Baths

Plan Floors

3
Floors

Plan Garages

2
Garages

Plan Description


The vernacular of this design references the local agricultural and mining ruins of rural Colorado. The layout of the main living space is modeled after an alpine ski hut. The kitchen, dining and living spaces are completely integrated and focused on the wood stove at the hub; a great place to entertain a small group. This a passive solar home design. This house was designed for colder climates (climate zone 7). The fenestration is designed to capture as much energy from the sun as possible in winter, while preventing overheating in the summer. Roofs are positioned to maximize area for thermal and photovoltaic solar panels. The mechanical room is centrally located for shorter distribution runs and for keeping the waste heat within the house. This design could easily be used for an off-grid application. This design can be built to earn ENERGY STAR V3 or a LEED for Home certification. This house was designed for a lot sloping downhill to the access at approximately 30%. It has been planned to have a walk-out door on all three levels. Ideally the slope would be west facing so the primary glazing is south facing. The stairs are positioned to make a future addition easy and to buffer living spaces from the cold north side. Approximate Room Sizes: Kitchen: 12' x 11' Living: 22' x 17' Bed 2/Office: 18' x 15' Master Bedroom: 18' x 14'

This plan can be customized!

Tell us about your desired changes so we can prepare an estimate for the design service. Click the button to submit your request for pricing, or call 1-800-913-2350.

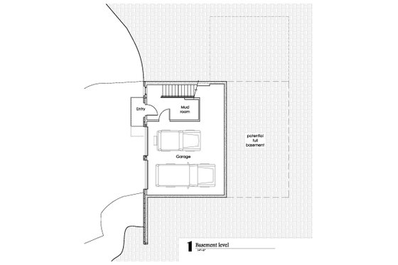
Floor Plans


Floor Plan - Lower Floor

Reverse
houseplans LOGO

BUILDER Advantage Program

PRO BUILDERS

Join the club and save 5% on your first order.
PLUS download exclusive discounts and more.

LEARN MORE

Floor Plan - Main Floor

Reverse

Floor Plan - Upper Floor

Reverse

Full Specs & Features


Basic Features

Bedrooms : 2
Baths : 2
Stories: 3
Garages: 2

Dimension

Depth : 44'
Height : 38'
Width : 32' 6"

Area

Total : 1928 sq/ft
Basement : 733 sq/ft
Main Floor : 1346 sq/ft
Upper Floor : 582 sq/ft
* Total Square Footage typically only includes conditioned space and does not include garages, porches, bonus rooms, or decks.

Ceiling

Ceiling Details : 8' to 14' at ridges

Roof

Primary Pitch : 3:12
Roof Framing : Truss
Secondary Pitch : 10:12

Exterior Wall Framing

Framing : 2x6

Bedroom Features

Main Floor Bedrooms
Upstairs Master Bedrooms
Walk In Closet

Kitchen Features

Breakfast Nook
Eating Bar
Walk In Pantry Cabinet Pantry

Additional Room Features

Den Office Study Computer
Great Room Living Room
Main Floor Laundry
Mud Room
Storage Area

Lot Characteristics

Suited For Sloping Lot

Outdoor Spaces

Grill Deck Sundeck

What's included in this plan set


See a sample plan set

All plans are drawn at ¼” scale or larger and include :

  • Foundation Plan: This page shows all necessary notations and dimensions including support columns, walls, and excavated/unexcavated areas.
  • Exterior Elevations: Views of the home from all four sides showing exterior materials and measurements.
  • Floor Plan(s): Detailed plans for each level showing room dimensions, wall partitions, windows and doors, etc.
  • Cross Section: A slice of the home from roof to foundation, showing important details like stairs and wall construction.
  • Overhead Roof Plan(s): A view of the home from above showing roof pitch, peaks, valleys, and other details.
  • Construction Notes and Details: Shows the builder how things come together, like walls, the chimney, insulation, and more.
* See important information before purchasing

Pricing


Plan Options

PDF Set

Best Value!
$1275.00
PDF plan sets are best for fast electronic delivery and inexpensive local printing.

5 Copy Set

$1700.00
5 printed plan sets mailed to you.

CAD Set

$2125.00
For use by design professionals to make substantial changes to your house plan and inexpensive local printing.

Foundation Options

Daylight Basement

$0.00
Ideal for sloping lot, lower level of home partially underground.

*Options with a fee may take time to prepare. Please call to confirm.

Additional Options

Right-Reading Reverse

$255.00
Choose this option to reverse your plans and to have the text and dimensions readable.

Audio Video Design

$85.00
Receive an overlay sheet with suggested placement of audio and video components.

Construction Guide

$33.15
Educate yourself about basic building ideas with these four detailed diagrams that discuss electrical, plumbing, mechanical, and structural topics.

Lighting Design

$85.00
Receive an overlay sheet with suggested placement of lighting fixtures.

*Options with a fee may take time to prepare. Please call to confirm.

Unless you buy an “unlimited” plan set or a multi-use license you may only build one home from a set of plans. Please call to verify if you intend to build more than once. Plan licenses are non-transferable and cannot be resold.

Meet the Designer

Confluence Architecture

Confluence Architecture - Houseplans.com
“Confluence” is a word that embodies the spirit of our own personal philosophies of architecture. The design process involves the confluence of many skills & disciplines; art & engineering, context & precedence, building & municipal codes, programs & site forces, time & money, etc. all balancing together at one point. That one point is your finished project. It takes planning to be successful, and that’s what we do here. Confluence Architecture is small, multi-discipline firm located in Carbondale, Colorado. We specialize in using the latest techniques to optimize the efficiency, comfort and durability of a building with the greatest economy of means. Indoor air quality, sound control and day-lighting are all intimately connected to the performance of the shell and mechanical systems of a building. Confluence Architecture is uniquely equipped to maximize this balance to favor the highest quality building possible, with the lowest possible operational and maintenance costs, for the lowest possible construction costs.

Browse Similar Plans

Need help? Let our friendly experts help you find the perfect plan!

Contact us now for a free consultation.