Blog Home > 1 Bedroom Barndominium Floor Plans

The Houseplans Blog

1 Bedroom Barndominium Floor Plans

Check out these 1 bedroom barndominium floor plans.

Hero Image

April 23, 2024

Livabl Brand

Can't find what you're looking for?

Give us a call below or reach out and we’ll make sure to be in contact!

Send Us a Message

By Courtney Pittman

Barndominium is one of our most popular house plan styles. 1 bedroom barndominium floor plans are a great way to combine function with style, and these adorable designs do just that. Think modern amenities, open living spaces, and spacious garages/workshops. Here are seven plans with country curb appeal and smart layouts to match.

Want more? Explore our small barndominium floor plans collection here.

Barndominium Plan with Office Barndominium Plan with Office Barndominium Plan with Office - Front Exterior

Barndominium Plan with Office Barndominium Plan with Office - Main Level

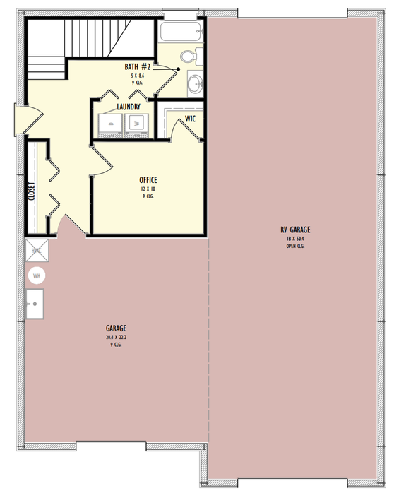
Barndominium Plan with Office Barndominium Plan with Office - Upper Level

Here’s a 1 bedroom barndominium floor plan with lots to offer. For example, an office on the first level gives you space to get work done. The two-car garage features room for an RV. Upstairs, an eating bar in the kitchen overlooks the open living room. Two closets in the bedroom give you plenty of room to keep clothes organized.

One-Story Barndo Plan One-Story Barndo Plan One-Story Barndo Plan - Front Exterior

One-Story Barndo Plan One-Story Barndo Plan - Main Level

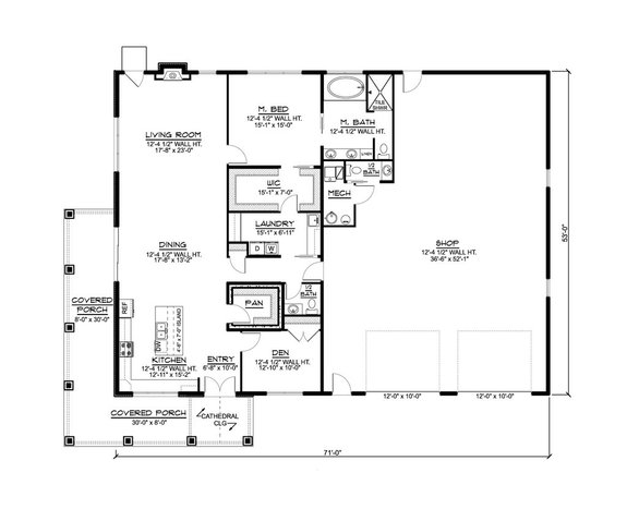
A wide front porch welcomes you to this one-story barndominium floor plan. Inside, the living room opens up to the dining area and the kitchen, where an island is ready for casual meals. Check out the big walk-in pantry.

On the left side of the plan, a super-spacious closet and a large shower complete the bedroom suite. Just off the main living spaces, a small side porch brings the outdoors in via double doors.

Barndominium Curb Appeal Barndominium Curb Appeal Barndominium Curb Appeal - Front Exterior

Barndominium Curb Appeal Barndominium Curb Appeal - Main Level

Barndominium Curb Appeal Barndominium Curb Appeal - Upper Level

This barndominium garage apartment plan would make a great addition to an existing house or as a primary residence. A garage on the main level is ready to hold up to two vehicles. Extra storage space under the stairs is a nice detail.

The second level features an easygoing floor plan that makes everything feel spacious and modern. The living room flows easily into the kitchen, where you’ll also find the laundry closet. A bedroom and a full bath complete this plan.

Barndominium Design with Wraparound Porch Barndominium Design with Wraparound Porch Barndominium Design with Wraparound Porch - Front Exterior

Barndominium Design with Wraparound Porch Barndominium Design with Wraparound Porch - Main Level

Here’s an impressive barndominium plan that uses space well. The open floor plan invites relaxed living. A den near the entry would make a great office. The primary suite gives you a big walk-in closet, dual sinks, a shower, and a separate tub.

Overlooking the dining area and the fireplace-warmed great room, the kitchen boasts a large pantry and an island. Double doors open to the spacious wraparound porch. Check out the generous two-car garage/workshop.

Barn-Style Plan with Workshop Barn-Style Plan with Workshop Barn-Style Plan with Workshop - Front Exterior

Barn-Style Plan with Workshop Barn-Style Plan with Workshop - Main Level

This barn-style house plan would make a great accessory dwelling unit (ADU). The handy two-car garage/workshop is a welcome amenity. Inside, the efficient layout gives you an island kitchen that opens to the living room and a bedroom with a walk-in closet.

Flexible with Smart Amenities Flexible with Smart Amenities Flexible with Smart Amenities - Front Exterior

Flexible with Smart Amenities Flexible with Smart Amenities - Main Level

Here’s a smart barndominium floor plan under 2,000 square feet. Check out the primary suite's large walk-in closet, which gives you direct access to the laundry room. The kitchen shows off a big island and opens to the dining area and the living room. Other highlights include the two-car garage/workshop, the wraparound porch, and the versatile den.

Barndo Plan with Three-Car Garage Barndo Plan with Three-Car Garage Barndo Plan with Three-Car Garage - Exterior

Barndo Plan with Three-Car Garage Barndo Plan with Three-Car Garage - Main Level

Barndo Plan with Three-Car Garage Barndo Plan with Three-Car Garage - Upper Level

Stylish and smart, this barndominium design makes the most of its small footprint. On the first floor, a three-car garage is ready to keep things organized. Upstairs, the open interior spaces create an airy vibe.

Discover more small barndominium floor plans.

Get Our Newsletter

Be the first to see new plans, special offers, and more.

By signing up for our newsletter, you agree to our Terms & Conditions and Privacy Policy, for an account

Blog Subscribe Icon