By Courtney Pittman
Great for smaller lots, bungalow house plans are a more compact version of the popular Craftsman style home. With open floor plans, island kitchens, walk-in closets, and lots of curb appeal (thanks to their classic front porches and cute dormers), these designs stay affordable with their modest footprints. Take a look at these bungalow house plans from Donald A. Gardner Architects we can’t get enough of.
Explore our collection of bungalow house plans
Simple Bungalow House Design
You’ll love the decorative ceiling treatment in the master suite
Plan 929-1011
Simple and elegant, this one-story bungalow house includes generous storage and upscale details. The master suite features a decorative ceiling treatment, French doors to the back porch, and a private bathroom with double sinks. Two more bedrooms (each with a walk-in closet) rest on the opposite side of the home, not far from the well-organized mudroom.
An e-space (perfect for charging your phone) adds tech-friendly storage to the kitchen. The great room flows into the open dining area with ease, creating an open and airy vibe.
Charming Bungalow House
The front porch delivers classic curb appeal
Plan 929-869
Columns accent the front porch of this charming bungalow house design, while a series of windows usher light throughout the interior. The island kitchen, great room, and dining area all open to one another for easy flow. Tray ceilings crown the dining and great rooms, while porch access and a fireplace are additional details in the great room (check out these mantle decor ideas from Apartment Therapy).
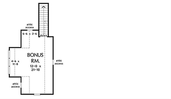
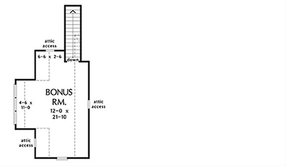
The master suite gives you two walk-in closets and dual vanities, while the cathedral ceiling adds style. Upstairs, a generous bonus room offers lots of flexible living space (and could be used as a home office if needed).
Impressive Ceiling Treatments
Discover thoughtful touches throughout
Plan 929-1094
This 1,578-square-foot bungalow house plan feels surprisingly upscale, from the spacious screen porch in back to the impressive ceiling treatments that draw the eye up throughout the home. Here's a thoughtful touch: the master suite's large walk-in closet opens directly into the laundry room to simplify chores. The third bedroom near the front makes an equally useful study or home office, with doors opening out to the foyer and another to the hallway for greater privacy.
Compact and Modern
Relax next to the warm fireplace in the great room
Plan 929-1095
This stylish 1,678-square-foot bungalow house features a simple, compact footprint to keep costs down. Inside, you'll find a remarkably open layout that feels fresh and modern with lots of special amenities, like ceiling treatments, skylights, and a fireplace.
The master suite stands out with its spacious private bathroom that gives you two sinks, a separate tub, and a large shower. Upstairs, a bonus room offers additional storage or space for relaxation.
Bold Bungalow House
Skylights in the great room deliver plenty of natural light
Plan 929-1093
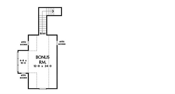
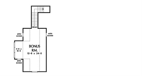
Want bold, bungalow house plan style? This attractive home plan stands out with double dormers and tapered columns. The kitchen steals the show inside and flows to the great room. A bonus room upstairs lets you expand later and can have its own bathroom.
Practical Storage Areas
Everything has a place in the big master closet
Plan 929-1091
Barn doors, skylights, and plenty of storage are welcome touches in this 1,730-square-foot bungalow house plan. The master suite steps out to the large deck to make it easy to greet the day. Keep the clutter at bay with practical storage areas (like the walk-in pantry). Don’t miss the cathedral ceiling in the island kitchen.
Craftsman Style Details
Explore the generous island kitchen
Plan 929-1027
While this bungalow house plan retains traditional curb appeal (with Craftsman style details), the modern layout inside is ready for how we live today (relaxed!). A large island in the kitchen overlooks the spacious great room. A nice touch: the big screened porch just off the great room.
Eye-Catching Bungalow House
A third bedroom could be used as a home office if needed
Plan 929-1048
Modern and elegant, this 1,948-square-foot bungalow house plan displays an open layout with sweet details. For example, the third bedroom sits near the front of the floor plan and includes two points of entry (one to the foyer and the other to the hallway), meaning that it functions equally well as a home office or sleeping zone.
On the left side of the home, the master suite features skylights in the bedroom and a private bathroom with a huge walk-in closet. The center of the home feels open and kitchen-focused, perfect for relaxed family hangs. A bonus room upstairs adds the possibility of future expansion (explore these bonus room design ideas from HGTV).
Craftsman-Inspired Touches
You’ll love the large screened porch
Plan 929-1078
This standout bungalow house plan shows off Craftsman-inspired styling with graceful tapered columns on the porch and eye-catching gables. Inside, you'll find easy flow between the open dining room and at the kitchen's snack bar. Check out the large screened porch (with a fireplace!) out back.















