Blog Home > Cozy Craftsman Bungalow House Plans

The Houseplans Blog

Cozy Craftsman Bungalow House Plans

Our favorite cozy Craftsman bungalow house plans

Hero Image

October 6, 2022

Livabl Brand

Can't find what you're looking for?

Give us a call below or reach out and we’ll make sure to be in contact!

Send Us a Message

By Devin Uriarte

We are loving these tiny and cozy house plans with timeless curb appeal. Under 1,000 sq. ft., these Craftsman bungalow style house plans are a great choice for those looking to build on a narrow lot or interested in downsizing. Wide porches, large garages, and open-concept layouts are just some of the amenities in this collection of cozy house plans.

Explore our collection of Craftsman bungalow house plans.

Craftsman Bungalow Cottage Craftsman Bungalow Cottage Craftsman Bungalow Cottage - Exterior

Craftsman Bungalow Cottage Craftsman Bungalow Cottage - Main Floor Plan

At 624 sq. ft., this tiny house plan includes an open concept living space. A kitchen island creates an easy flow into the living room. There is a mudroom with space for a washer and dryer to minimize clutter and mess. Enjoy your morning cup of coffee on the covered front deck and take in the views of the property.

Craftsman Bungalow with Extra Storage Craftsman Bungalow with Extra Storage Craftsman Bungalow with Extra Storage - Exterior

Craftsman Bungalow with Extra Storage Craftsman Bungalow with Extra Storage - Main Floor Plan

This simple and cozy Craftsman style house plan gives you the additional storage space you’re looking for. A storage loft sits above the second bedroom and a spacious closet for guests. The combined living room and kitchen creates a relaxing ambiance and makes for a great space to entertain. In the primary suite, there is a private bathroom and easy access to the washer and dryer.

Traditional Craftsman with 4-Car Garage Traditional Craftsman with 4-Car Garage Traditional Craftsman with 4-Car Garage - Exterior

Traditional Craftsman with 4-Car Garage Traditional Craftsman with 4-Car Garage - Main Floor Plan

Traditional Craftsman with 4-Car Garage Traditional Craftsman with 4-Car Garage - Upper Floor Plan

Below this one-bedroom Craftsman is an entire floor of garages and space for a workshop. Above the four-car garage is the cozy living space. There is a comfortably sized living room and kitchen with a built-in bar top to enjoy your meals. For additional storage, there is a pantry in the kitchen. Take in all the views from the upstairs balcony.

Classic Craftsman House Plan Classic Craftsman House Plan Classic Craftsman House Plan - Exterior

Classic Craftsman House Plan Classic Craftsman House Plan - Main Floor Plan

This house plan may only be 896 sq. ft. but offers some major curb appeal. Classic columns welcome you into the home and into the foyer. There is an impressive walk-in closet in one of the two bedrooms. The gas fireplace adds an extra touch of coziness to the living room. Entertain guests in the L-shaped kitchen and bring the party outdoors on warm nights. Sliding glass doors in the kitchen open to the side porch.

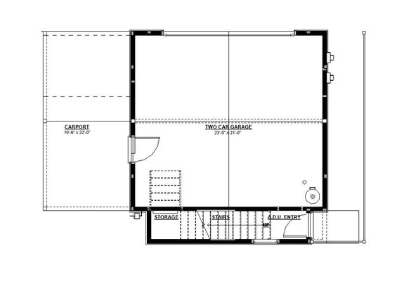
Craftsman Bungalow with Garage Below Craftsman Bungalow with Garage Below Craftsman Bungalow with Garage Below - Exterior

Craftsman Bungalow with Garage Below Craftsman Bungalow with Garage Below - Main Floor Plan

Craftsman Bungalow with Garage Below Craftsman Bungalow with Garage Below - Upper Floor Plan

On the lower level of this tiny home is a two-car garage with an attached carport. Upstairs is a comfortable one-bedroom unit with a spacious living area. The bedroom has a walk-in closet and easy access to the laundry area. There is a U-shaped kitchen to utilize every square foot of this tiny house plan. Step out to the spacious deck to enjoy the outdoors.

Two-Story Craftsman Bungalow House Plan Two-Story Craftsman Bungalow House Plan Two-Story Craftsman Bungalow House Plan - Exterior

Two-Story Craftsman Bungalow House Plan Two-Story Craftsman Bungalow House Plan - Main Floor Plan

Two-Story Craftsman Bungalow House Plan Two-Story Craftsman Bungalow House Plan - Upper Floor Plan

This two-story Craftsman house plan features two reasonably sized bedrooms. The first bedroom is on the main level and includes a walk-in closet. There is flow leading from the kitchen into the living room so you can feel connected even while preparing a meal. On the second level there is a second bedroom, a half bathroom, a loft area, and loads of attic space. The loft area would make a great at-home office for those who work from home.

Hillside Craftsman House Plan Hillside Craftsman House Plan Hillside Craftsman House Plan - Exterior

Hillside Craftsman House Plan Hillside Craftsman House Plan - Main Floor Plan

Nestled into the hillside sits this Craftsman bungalow house plan. On the lower level of this plan is a two-car garage with a utility room. The main level has an impressive kitchen island that flows into the living room. A bathroom with a large shower is shared between the primary suite and the second bedroom. Enjoy warm nights on the covered porch or cuddle up inside in front of the fireplace.

Narrow Craftsman Bungalow Narrow Craftsman Bungalow Narrow Craftsman Bungalow - Exterior

Narrow Craftsman Bungalow Narrow Craftsman Bungalow - Main Floor Plan

Look no further if you’re searching for a cozy house plan that fits on a narrow lot. This Craftsman house plan gives a sense of coziness in the living room area with a fireplace. Prepare meals at the kitchen island while simultaneously entertaining guests both inside and outside. Relax outside on the covered deck or enjoy a meal with a view. There is a full-sized bathroom that is shared between the primary suite and second bedroom.

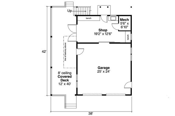
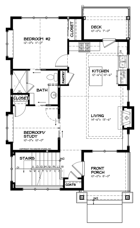
820 Sq. Ft. Craftsman Bungalow House Plan 820 Sq. Ft. Craftsman Bungalow House Plan 820 Sq. Ft. Craftsman Bungalow House Plan - Exterior

820 Sq. Ft. Craftsman Bungalow House Plan 820 Sq. Ft. Craftsman Bungalow House Plan - Main Floor Plan

820 Sq. Ft. Craftsman Bungalow House Plan 820 Sq. Ft. Craftsman Bungalow House Plan - Upper Floor Plan

This charming Craftsman house plan has a large two-car garage with a connected workshop. The workshop includes two work benches, a sink, and a mechanical closet. Walking around the large, covered deck you will find stairs that lead up to the loft.

Eight-foot ceilings help the space feel larger. As you walk inside, there is a cozy kitchenette to the right and a full bathroom to the left. There are two bedrooms, each with its own closet, and a balcony where you can take in the views of your property.

Explore our collection of Craftsman bungalow house plans.

Get Our Newsletter

Be the first to see new plans, special offers, and more.

By signing up for our newsletter, you agree to our Terms & Conditions and Privacy Policy, for an account

Blog Subscribe Icon