By Courtney Pittman
Great for sloping lots, our house plans with basements offer versatility with an extra level of living space. Bonus: these designs give you up-to-date layouts and spot-on style. Other features you’re sure to love include well-equipped island kitchens (with snack bars), smart workshops, and family rooms to name a few. Check the square footage totals carefully, as often basement square footages are not included in the heated totals unless you choose to finish them.
Want more? Explore our collection of house plans with basements here.
Contemporary House Plan with Basement
Contemporary House Plan with Basement - Front Exterior
Contemporary House Plan with Basement - Lower Level
Contemporary House Plan with Basement - Upper Level
We’ll never say no to a contemporary design with this much style. This house plan offers relaxed outdoor living with a spacious balcony/deck. Large windows draw in tons of natural light.
The living room opens to the kitchen, where an island is ready for casual meals. The breakfast nook sits close by. At the back of the plan, a bedroom boasts two walk-in closets. The lower level gives you a two-car garage, a handy workshop, and a bathroom.
Modern Bungalow Design
Modern Bungalow Design - Exterior
Modern Bungalow Design - Main Level
Modern Bungalow Design - Lower Level
Get sleek curb appeal with this modern bungalow plan. In the main living area, two sets of sliding glass doors open to the covered porch. Two bedrooms (one with a walk-in closet) share a hall bath at the back of the plan.
In the walkout basement, a family room gives you versatility and features a wood stove. An additional bedroom, a full bath, and a laundry room complete this level.
Prairie Plan for Narrow Lot
Prairie Plan for Narrow Lot - Front Exterior
Prairie Plan for Narrow Lot - Main Level
Prairie Plan for Narrow Lot - Lower Level
Building on a narrow lot? Take a look at this three-bedroom Prairie-style house plan. Just 39 feet wide, this design shows off an open-concept floor plan and welcome details. For example, an island (with an eating bar) serves the great room. The dining nook sits nearby.
Built-in cubbies in the mudroom offer welcome storage. Take advantage of nice weather on the rear deck. The primary suite rests quietly at the back of the plan and features a shower and a separate bath. Store vehicles in the two-car garage. There’s plenty of room to expand with the unfinished basement on the lower level.
Loving any of the plans you're seeing? Register now to easily save and return to your favorites!
Vaulted Great Room
Vaulted Great Room - Front Exterior
Vaulted Great Room - Main Level
Vaulted Great Room - Lower Level
Here’s a great use of 1,541 square feet. The main level boasts a vaulted great room with a fireplace. Check out the country kitchen, where an island offers relaxed seating.
Note the sizable walk-in closet in the primary suite. Front and rear porches are ready for outdoor hangs. You’ll find a basement, two flex spaces, and a large porch on the lower level.
Tiny Plan with Walkout Basement
Tiny Plan with Walkout Basement - Front Exterior
Tiny Plan with Walkout Basement - Main Level
Tiny Plan with Walkout Basement - Lower Level
This tiny house plan would make a great ADU (accessory dwelling unit). Thanks to its efficient layout, this design lives larger than its small footprint. An eating bar connects the kitchen with the great room, creating effortless flow.
See tons of tiny house plans here.
A covered patio expands the living space by connecting the interior and the exterior. A bedroom suite with a walk-in closet waits on the lower level, along with a covered porch.
Lots of Windows
Lots of Windows - Front Exterior
Ideal for a scenic lot, this bright house plan features a sizable wraparound deck and a large patio. Large windows flood the two-story great room with natural light. Seating at the kitchen island is a nice touch.
Other unexpected amenities include a generous walk-in closet in the primary suite, a vaulted ceiling, and a bunk room. Oh, and don't miss the open family room, the extra bedroom suite, and the bonus room on the basement level.
Future Secondary Suite
Future Secondary Suite - Front Exterior
Future Secondary suite - Main Level
Future Secondary Suite - Lower Level
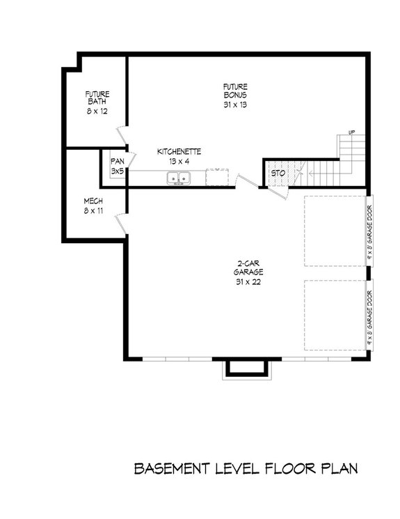
At 1,573 square feet, this modern house plan makes smart use of space with an open layout. A fireplace adds warmth to the great room and the dining area, which opens to the covered deck. The kitchen island does double-duty as a snack counter, adding seating for relaxed meals.
The basement level gives you a two-car garage and space for a rec room, a future bedroom, and a future secondary suite.
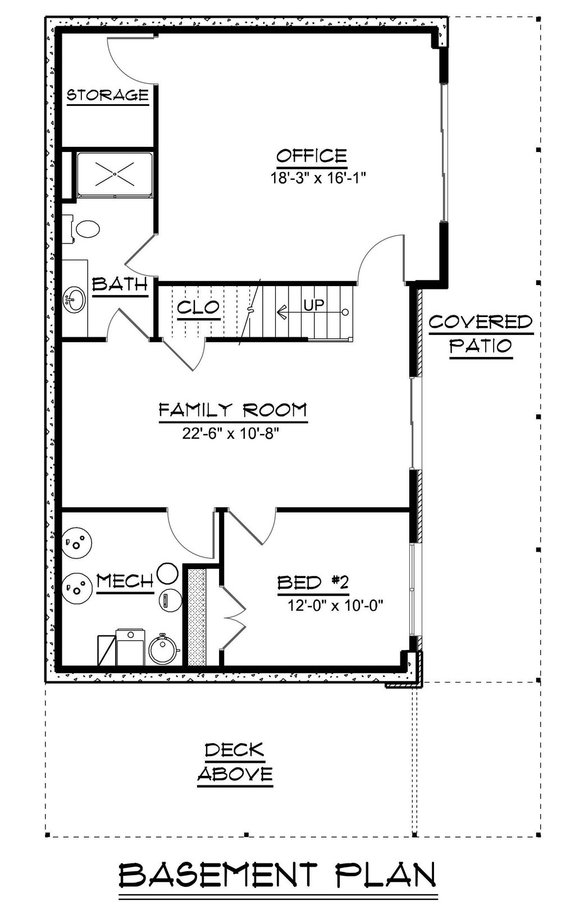
Functional Plan with Office
Functional Plan with Office - Front Exterior
Functional Plan with Office - Main Level
Functional Plan with Office - Lower Level
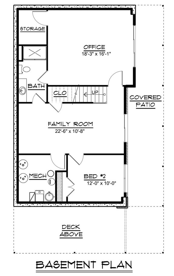
Here’s a great example of a functional design with modern style. An open great room sits next to the dining area and the kitchen, where an island offers prep space. A quiet bedroom rests at the back of the plan.
Two sets of sliding glass doors open to a balcony. The lower level holds two more bedrooms, plus a home office and a game room.
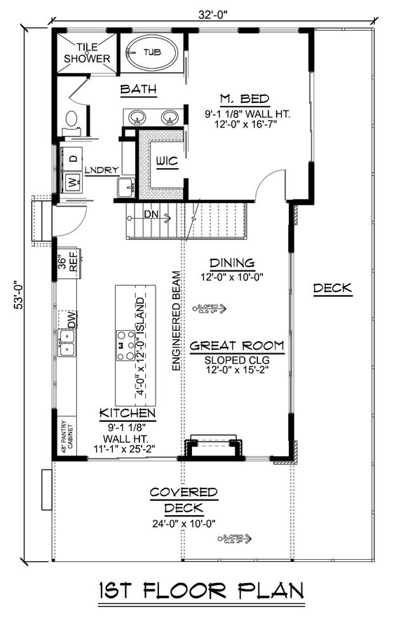
Luxe Primary Suite
Luxe Primary Suite - Front Exterior
Luxe Primary Suite - Main Level
Luxe Primary Suite - Lower Level
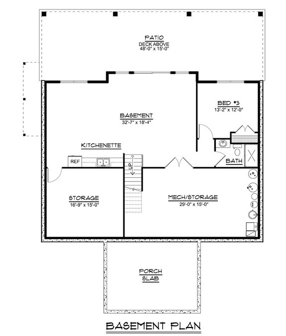
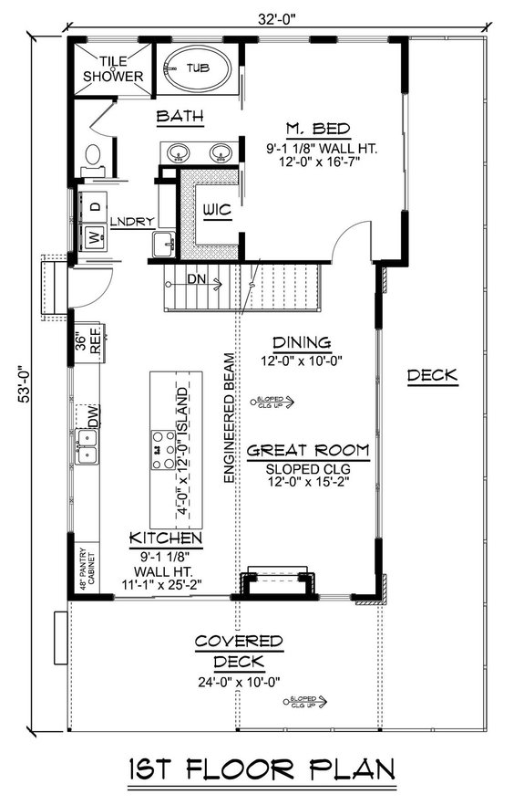
Sleek, stylish, and smart, this modern design features impressive details (like a wall of sliding glass doors). The main living areas are open, with an extra-large kitchen island at center stage. A walk-in closet, a tile shower, and a separate tub highlight the primary suite.
The laundry room makes it easy to throw in a load with direct access to the primary suite. The lower level offers versatility with a family room and an office. There’s ample room for outdoor living on the vast deck and the covered patio.
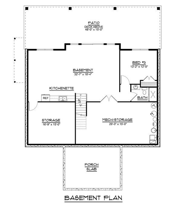
Plan for Sloping Lot
Plan for Sloping Lot - Front Exterior
Plan for Sloping Lot - Main Level
Plan for Sloping Lot - Lower Level
Thoughtful design choices make this contemporary house plan stand out. For example, a wall of sliding glass doors connects the main living areas to the large covered deck for easy indoor/outdoor entertaining. The island kitchen, complete with a snack bar, opens to the dining area and the great room.
In the primary suite, special amenities include two walk-in closets, dual sinks, and a tile shower. The basement level shines with a kitchenette, a bedroom, a bathroom, and plenty of room for storage.
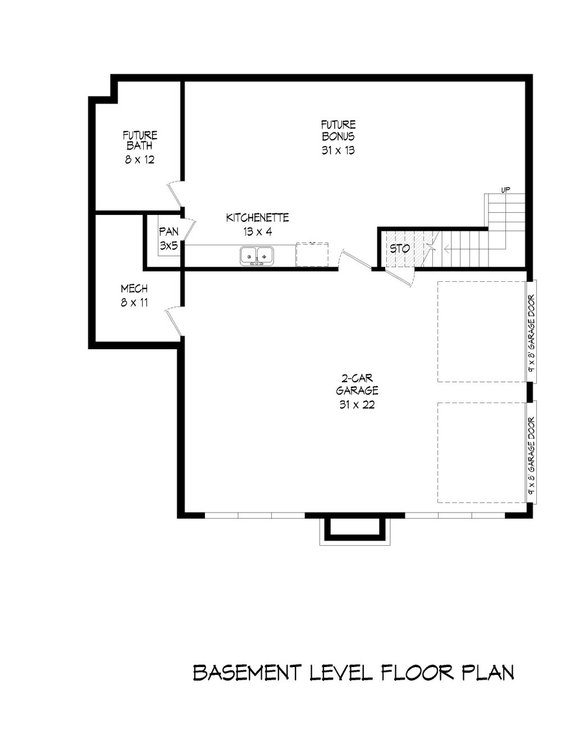
Contemporary Plan with Wraparound Deck
Contemporary Plan with Wraparound Deck - Front Exterior
Contemporary Plan with Wraparound Deck - Main Level
Contemporary Plan with Wraparound Deck - Upper Level
Contemporary Plan with Wraparound Deck - Lower Level
A wide wraparound deck welcomes you to this contemporary two-bedroom plan. Inside, a fireplace highlights the main living area, which includes the vaulted great room, the dining area, and the island kitchen. Don’t miss the impressive primary suite with a wet room and a huge closet.
The bench in the mudroom is a convenient detail. An additional bedroom suite and an office/loft sit upstairs. The walkout basement adds another level with a two-car garage and a future bonus space with a kitchenette.


