Blog Home > Learn to Love a Mid-Century Modern House

The Houseplans Blog

Learn to Love a Mid-Century Modern House

Looking for a mid-century modern house? Check out these plans!

Hero Image

March 8, 2024

Livabl Brand

Can't find what you're looking for?

Give us a call below or reach out and we’ll make sure to be in contact!

Send Us a Message

By Courtney Pittman

Thinking about building a mid-century modern house? Check out these retro-style designs. Showcasing uncomplicated floor plans, modern amenities, and sleek lines, mid-century modern homes feel contemporary and cool. Explore our roundup below.

Discover our collection of mid-century modern house plans

What is a Mid-Century Modern House?

Mid-century modern architecture became popular thanks to architects like Frank Lloyd Wright (check out this article from Architectural Digest). This architecture style features contemporary open layouts, large windows, simple roof lines, and head-turning exteriors.

Outdoor living spaces are another design detail that take center stage in mid-century modern homes. Look for porches, patios, and decks in many of these plans.

Streamlined Mid-Century Modern House Plan Streamlined Mid-Century Modern House Plan Streamlined Mid-Century Modern House Plan - Front Exterior

Streamlined Mid-Century Modern House Plan Streamlined Mid-Century Modern House Plan - Main Level

Here’s a design that gives you mid-century modern curb appeal with clean lines, floor-to-ceiling windows, and simple roof lines. Inside, the floor plan presents a bit of separation between the kitchen and the living spaces. The handy mudroom is ready to hold items. Don’t miss the generous covered porch and the sundeck.

Mid-Century Modern House Plan with Outdoor Living Mid-Century Modern House Plan with Outdoor Living Mid-Century Modern House with Outdoor Living - Front Exterior

Mid-Century Modern House Plan with Outdoor Living Mid-Century Modern House Plan with Outdoor Living - Main Level

This mid-century modern house plan offers streamlined style with bold curb appeal and an airy layout. The well-equipped kitchen features a central island and a spacious pantry. Nearby, the living room and the dining area open directly to the rear patio. Highlights of the primary suite include a big walk-in closet, a private office, and access to its own deck.

Small Mid-Century Modern House Plan Small Mid-Century Modern House Plan Small Mid-Century Modern House Plan - Front Exterior

Small Mid-Century Modern House Plan Small Mid-Century Modern House Plan - Main Level

Stylish and efficient, this three-bedroom house plan is all about modern living. An open floor plan creates easy flow between the main living areas. Check out the pantry and the big island in the kitchen.

A roomy walk-in closet and a luxurious shower highlight the primary suite. Enjoy outdoor living in front and also on the back porch.

Modest Mid-Century House Plan Modest Mid-Century House Plan Modest Mid-Century House Plan - Front Exterior

Modest Mid-Century House Plan Modest Mid-Century House Plan - Main Level

Looking for a budget-friendly design? Here’s a good one. Making the most of its small footprint, this mid-century modern house gives you a smart floor plan. The open layout feels spacious and bright with big windows. The versatile study is a nice detail. Nice weather? A generously-sized porch and deck deliver plenty of outdoor living space.

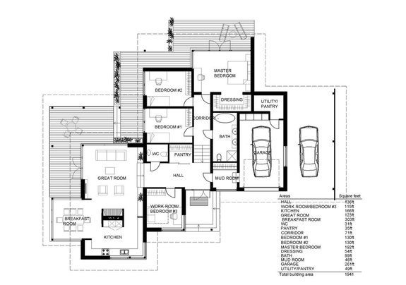
Mid-Century Modern House Plan with Three-Car Garage Mid-Century Modern House Plan with Three-Car Garage Mid-Century Modern House Plan with Three-Car Garage - Front Exterior

Mid-Century Modern House Plan with Three-Car Garage Mid-Century Modern House Plan with Three-Car Garage - Main Level

Need extra room for storage? This handsome mid-century modern house plan features a sizeable three-car garage. The thoughtful kitchen boasts an island that overlooks the dining area and the great room.

Nearby, two sets of sliding glass doors open to the covered deck and the covered patio. The primary suite enjoys outdoor living with direct access to a private patio.

Mid-Century Modern House Plan with Contemporary Style Mid-Century Modern House Plan with Contemporary Style Mid-Century Modern House Plan with Contemporary Style - Front Exterior

Mid-Century Modern House Plan with Contemporary Style Mid-Century Modern House Plan with Contemporary Style - Main Level

Here’s a mid-century modern house plan with timeless curb appeal. Inside, the open layout places the kitchen, the great room, and the dining area together at the center of the home. The primary suite shows off a big walk-in closet and enjoys privacy at the back of the plan. A flexible study could become a home office or a fourth bedroom. Relax on the large covered patio.

Mid-Century Modern House Plan for Narrow Lot Mid-Century Modern House Plan for Narrow Lot Mid-Century Modern House Plan for Narrow Lot - Front Exterior

Mid-Century Modern House Plan for Narrow Lot Mid-Century Modern House Plan for Narrow Lot - Main Level

Building on a narrow lot? No problem. This mid-century modern house plan showcases a slim footprint and loads of style. The smart floor plan revolves around the living room and the open kitchen, where a snack bar creates a casual vibe. Two bedrooms share a full bath at the front of the home, while the primary suite rests at the back.

Small Mid-Century Modern House Plan Small Mid-Century Modern House Plan Small Mid-Century Modern House Plan - Front Exterior

Small Mid-Century Modern House Plan Small Mid-Century Modern House Plan - Main Level

Here's a mid-century modern house plan that makes an impression inside and out. A dramatic roof and lots of texture grace the exterior, while a space-efficient layout waits inside. Open to the great room, the kitchen shines with a bar top and a big pantry.

Three bedrooms, including the primary suite, sit on the right side of the plan. A patio out back invites you to relax.

Discover our collection of mid-century modern house plans

Get Our Newsletter

Be the first to see new plans, special offers, and more.

By signing up for our newsletter, you agree to our Terms & Conditions and Privacy Policy, for an account

Blog Subscribe Icon