Modern farmhouse and contemporary house plans may share clean lines and open spaces, but they tell very different design stories. One wraps modern living in a cozy layer of warmth and nostalgia, while the other pushes boldly toward simplicity and innovation.
Which best reflects your style (and lifestyle)? We’ll break down the key differences between these two favorites to help you find your ideal fit.
Explore our collection of farmhouse plans here.
Discover our contemporary house plans collection.
What is the main difference between modern farmhouse and contemporary design?
Modern farmhouse plans pair timeless, rustic charm with fresh, livable design: think gabled roofs, wraparound porches, and crisp board-and-batten siding.
Contemporary home plans, on the other hand, reflect the spirit of the moment, bringing together today’s architectural influences and materials to create spaces that feel fresh and current.

Is modern farmhouse going out of style?
Modern farmhouse plans show no signs of fading. Holding steady as the top pick, these designs accounted for 33% of house plan sales in 2025, virtually unchanged from 2024.
This design style stays popular for a reason: it’s warm, simple, and easy to love. Think clean lines, airy rooms, and porches that feel like an open invitation.
Today’s versions lean a bit more modern, with metal details and streamlined trim adding depth to the classic white-and-wood look. Its mix of comfort and versatility keeps the modern farmhouse feeling fresh, no matter how the trend evolves.
What are the cost considerations?
Building a modern farmhouse plan or a contemporary design can come with a wide range of price tags, and much of that budget depends on the home’s size, style, finishes, and where you plan to build. Some of the biggest factors that shape your final cost include:
Home size and layout: Larger cottages usually cost more overall, but can sometimes be less expensive per square foot than smaller homes.
Location: Land prices, local labor rates, and stricter building codes in certain areas can all increase costs, so it pays to check local requirements early.
Labor and construction needs: The cost of skilled labor varies by region and by trade, which can make the same cottage more or less expensive depending on where you build.
Materials and finishes: Choices such as flooring, roofing, cabinetry, and fixtures have a significant impact on your budget, whether you prefer simple and durable options or more high-end and custom ones.
Can you combine modern farmhouse and contemporary styles?
Absolutely! Combining modern farmhouse elements with contemporary design creates a home that feels both timeless and forward-looking. The result balances the warmth and familiarity of farmhouse style with the clean, understated lines of contemporary architecture, sidestepping anything too rustic or staged.
Look for light-filled, open layouts with vaulted ceilings, exposed beams, and expansive glass that create a seamless sense of flow and connection.
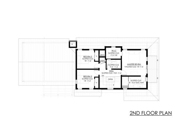
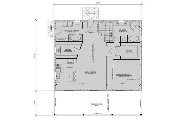
Contemporary Farmhouse Design
Contemporary Farmhouse Design - Front Exterior
Contemporary Farmhouse Design - Main Level
What are the key differences between modern farmhouse vs. contemporary design for an open-concept kitchen and living room?
Both modern farmhouse plans and contemporary designs favor open layouts that connect the kitchen and the main living areas.
The difference lies in the mood and the overall aesthetic: modern farmhouse plans balance rustic comfort and natural texture, while contemporary designs keep things refined and minimal, favoring sleek lines over cozy layers.
As Architectural Digest notes, modern farmhouse style “tends to put functionality first, but without sacrificing personality.”
Sleek and Rustic Kitchen
Sleek and Rustic Kitchen - Front Exterior
Sleek and Rustic Kitchen - Main Level
Sleek and Rustic Kitchen - Upper Level
Modern farmhouse vs. contemporary design: Which interior style works best for a small home renovation with a limited budget?
Both modern farmhouse and contemporary interiors work well for small-home renovations on a tight budget. They rely on clever space-saving tricks to maximize every inch. Modern farmhouse style brings cozy warmth with rustic touches like shiplap or vintage-inspired accents, while contemporary design keeps things sleek and minimal for a light, open vibe.
These design styles help reduce renovation costs in smaller homes by emphasizing open layouts, smart material use, and multifunctional spaces that make the most of every square foot.
Small Farmhouse Plan
Small Farmhouse Plan - Front Exterior
Small Farmhouse Plan - Main Level
Modest Contemporary Design
Modest Contemporary Design - Front Exterior
Modest Contemporary Design - Main Level
Modest Contemporary Design - Upper Level
How do modern farmhouse vs. contemporary design compare in terms of lighting, color palettes, and finishes for a full interior remodel?
Both modern farmhouse and contemporary styles embrace clean lines and neutral palettes for today's interior remodels, but they strike different tones in their execution.
Modern farmhouse showcases warmth through wood details, shiplap accents, and subtle rustic charm, creating spaces that feel lived-in and timeless. According to The Spruce, “The best colors are warm and cool neutrals, like cream, beige, brown, gray, and white, and natural, earthy tones, like blues, greens, yellows, and dark orange.”
Contemporary interiors, by contrast, boast a clean, streamlined aesthetic, where lighting, color, and finishes combine to create a space that feels bright, uncluttered, and effortlessly refined. This design style is known for “clean, sleek lines and swaths of solid colors — predominantly muted neutrals or bold punches of brightness,” as HGTV describes it.
Which Fits Your Lifestyle?
Choose modern farmhouse if you crave cozy textures, spacious gathering spots, and timeless warmth with natural wood accents.
Choose contemporary if you prioritize airy minimalism, flexible zones for work/entertaining, and simplicity.
Try a blend if you want both: open layouts with beams plus sleek glass for enduring appeal.
Stylish modern farmhouse and contemporary plan examples:
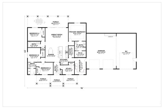
Four-Bed Farmhouse Plan
Four-Bed Farmhouse Plan - Front Exterior
Four-Bed Farmhouse Plan - Main Level
Here's a modern farmhouse plan that offers effortless living with four bedrooms and an airy layout. The three-car garage gives you room for an RV and plenty of storage. Front and rear porches offer indoor-outdoor living.
A large kitchen island flows seamlessly into the dining area and the great room. Next to the entry, a study delivers versatility. Don't miss the hardworking laundry/mudroom.
Compact and Contemporary
Compact and Contemporary - Front Exterior
Compact and Contemporary - Main Level
Thanks to its smart layout, this contemporary plan feels larger than its compact footprint. The L-shaped kitchen takes center stage with a generous island and a walk-in pantry. The split-bedroom design places the primary suite on the right wing of the plan.
Other highlights include front and rear porches, a two-car garage, and an organized mudroom.
Flexible Office
Flexible Office - Front Exterior
This modern farmhouse design stands out with streamlined curb appeal and a bright floor plan. Next to the foyer, an office could become a guest room or a hobby space. In the kitchen, a large island overlooks the vaulted living room.
The primary suite impresses with two walk-in closets and a spa-inspired bath. We love the outdoor kitchen on the covered patio.
Contemporary Plan for Sloping Lot
Contemporary Plan for Sloping Lot - Front Exterior
Contemporary Plan for Sloping Lot - Main Level
Contemporary Plan for Sloping Lot - Lower Level
Building on a sloping lot? We've got you covered with this thoughtful contemporary design. The uncomplicated layout features a breezy great room that opens to the kitchen, where an island is ready for relaxed meals.
The extra-spacious pantry is a nice touch. Ideal for aging in place, the primary suite is conveniently located on the main level. An additional bedroom, an entertainment room, and a dedicated storage space rest on the lower level. Unwind on the covered patio or the generous deck.
