Blog Home > Modern Victorian House Plans

The Houseplans Blog

Modern Victorian House Plans

See modern Victorian house plans.

Hero Image
Courtney Pittman

August 25, 2025

Livabl Brand

Can't find what you're looking for?

Give us a call below or reach out and we’ll make sure to be in contact!

Send Us a Message

Modern Victorian house plans combine the charm of classic Victorian style with the comfort and convenience of modern living. They feature details such as bay windows, steep roofs, and decorative woodwork, paired with open layouts, ample natural light, and up-to-date amenities.

These designs offer a warm, inviting feel with flexible spaces tailored to today’s needs, as well as cozy porches and versatile rooms. Blending timeless elegance with a contemporary twist, these modern Victorian house plans offer the best of both worlds.

Want more? See our collection of Victorian house plans here.

Timeless Curb Appeal

Timeless Curb Appeal Timeless Curb Appeal - Front Exterior

Timeless Curb Appeal Timeless Curb Appeal - Main Level

Timeless Curb Appeal Timeless Curb Appeal - Upper Level

Here’s a modern Victorian house plan that combines classic curb appeal with smart features (like a hardworking mudroom). We love the cute front porch and the bay window. Inside, the compact layout (under 2,000 square feet) proves less is more with an easygoing flow. An island and plenty of counter space highlight the kitchen. Nearby, a covered back patio provides outdoor living space.

Upstairs, the primary suite impresses with two walk-in closets and a spa-like bath. The laundry room waits conveniently close by. Two additional bedrooms and a full bath complete this level. Don’t miss the two-car garage.

Flexible Modern Victorian Plan

Flexible Modern Victorian Plan Flexible Modern Victorian Plan - Front Exterior

Flexible Modern Victorian Plan Flexible Modern Victorian Plan - Main Level

Flexible Modern Victorian Plan Flexible Modern Victorian Plan - Upper Level

A timeless turret decorates the exterior of this modern Victorian house plan. Inside, a two-story entry creates a welcoming vibe. Down the hall, a two-sided fireplace sits between the great room (which also features a two-story ceiling) and the flex space.

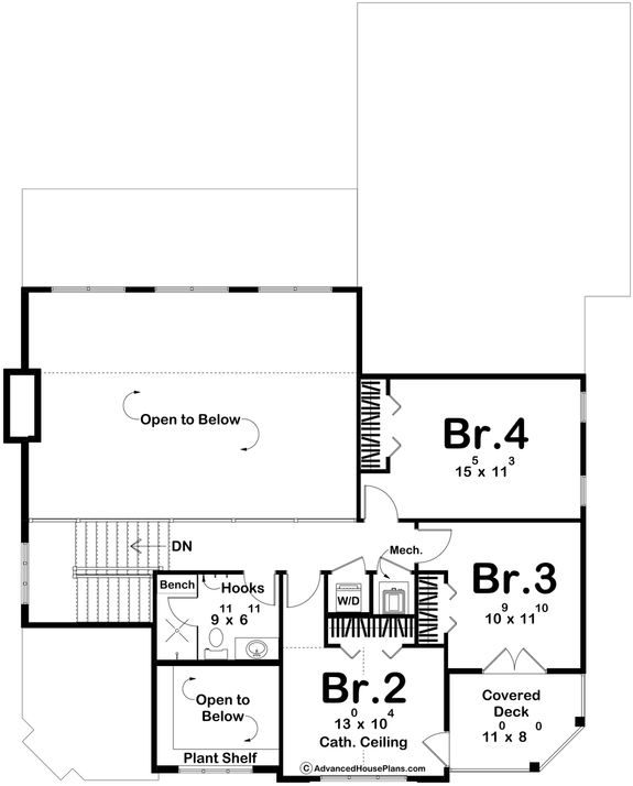
The island kitchen and the open dining area sit nearby. Note the extra-spacious walk-in pantry. French doors open to a covered porch. Just off the two-car garage, a handy mudroom includes a bench and hooks. On the second level, the primary suite shines with a sitting room, two walk-in closets, and a private deck. Two more bedrooms (each with a walk-in closet) wait down the hall.

Narrow Lot House Plan

Narrow Lot House Plan Narrow Lot House Plan - Front Exterior

Narrow Lot House Plan Narrow Lot House Plan - Main Level

Narrow Lot House Plan Narrow Lot House Plan - Upper Level

Building on a slim lot? Check out this modern Victorian house plan (just 32 feet wide). The front facade features stone accents, a covered porch, and a bay window. The fireplace-warmed great room opens to the kitchen, where an island is ready for relaxed meals. A second fireplace adds cozy ambiance to the nearby dining area.

A mudroom keeps things tidy, while a pocket office gives you a quiet place to get work done. Upstairs, you’ll find two bedroom suites (including the primary suite), an additional bedroom, and a full hall bath. Take in the view on the second-level deck.

Tiny Modern Victorian Plan

Tiny Modern Victorian Plan Tiny Modern Victorian Plan - Front Exterior

Tiny Modern Victorian Plan Tiny Modern Victorian Plan - Main Level

Tiny Modern Victorian Plan Tiny Modern Victorian Plan - Upper Level

It doesn’t get much cozier than this tiny modern Victorian garage with an apartment above. On the first level, the two-car garage gives you dedicated storage space. Upstairs, a snack bar in the kitchen overlooks the living room.

Need a garage with an apartment? See more here.

The banquette in the dining nook is a welcome touch. The bedroom suite takes up space on the right side of the plan and boasts a walk-in closet, two sinks, and a shower.

First-Floor Primary Suite

First-Floor Primary Suite First-Floor Primary Suite - Front Exterior

First-Floor Primary Suite First-Floor Primary Suite - Main Level

First-Floor Primary Suite First-Floor Primary Suite - Upper Level

Breezy and bright, this modern Victorian plan shows off a super-open layout between the two-story great room, the dining area, and the kitchen. In the pantry, built-in shelves keep groceries organized. Unwind on the covered rear porch.

Next to the entry, an office offers flexibility and features a corner fireplace. Located on the main level, the primary suite makes it easy to age in place and invites relaxation with a wet room and a private porch. Three more bedrooms share a hall bath on the second floor.

Modest Three-Story Design

Modest Three-Story Design Modest Three-Story Design - Front Exterior

Modest Three-Story Design Modest Three-Story Design - Main Level

Modest Three-Story Design Modest Three-Story Design - Upper Level

Modest Three-Story Design Modest Three-Story Design - Lower Level

Timeless design details like a gable roof, a front porch, and a bay window deliver modern classic charm to this modern Victorian house plan. Its modest size (1,583 square feet) and compact footprint make it a budget-friendly option. In the kitchen, an island is ready for casual meals and flows seamlessly into the great room and the dining nook.

Sliding glass doors open to the a rear patio, extending the living space. On the second floor, the primary suite features a large shower, a walk-in closet, and a private deck. Don’t miss the versatile family room on the lower level.

Explore modern house plans here.

Double-Sided Fireplace

Double-Sided Fireplace Double-Sided Fireplace - Front Exterior

Double-Sided Fireplace Double-Sided Fireplace - Main Level

Double-Sided Fireplace Double-Sided Fireplace - Upper Level

This charming Victorian house plan features elegant details paired with modern functionality. A welcoming covered porch greets you and leads you inside to the foyer. The U-shaped kitchen features a curved snack bar that overlooks the family room, which features a double-sided fireplace.

Nearby, the living room could be used as an office space or a hobby area. The second level features four bedrooms (including the primary suite).

Plenty of Storage

Plenty of Storage Plenty of Storage - Front Exterior

Plenty of Storage Plenty of Storage - Main Level

Plenty of Storage Plenty of Storage - Upper Level

Bay windows and a wide front porch deliver Victorian vibes, while thoughtful amenities encourage modern living. The kitchen island overlooks the family room.

You’ll find dedicated storage in the two-car garage. Other highlights include a generous terrace, a walk-in closet in the primary suite, and a versatile living room at the front of the plan.

Discover more Victorian house plans.

Get Our Newsletter

Be the first to see new plans, special offers, and more.

By signing up for our newsletter, you agree to our Terms & Conditions and Privacy Policy, for an account

Blog Subscribe Icon