By Gabby Torrenti
This collection of homes from Visbeen Architects features walkout basements, placing convenience at the forefront of the designs. Ideal for waterfront living, these plans allow you to enjoy the elements on spacious patios and luxe porches, which are accessible from the home’s lowest level. From classic cottages to contemporary choices, these homes present the ultimate opportunities for enjoying life by the water with optimal convenience and comfort.
See more plans with walkout basements.
Explore the Visbeen Architects collection.
Contemporary Waterfront Home
Plan 928-352
From the street, this home stuns with sharp details, a raised deck, and clean lines. On the water side, though, is where this plan truly shines. The exterior features three levels of outdoor living space, including a basement-level patio that is perfect for relaxing after a day on the lake. The inside of the basement level is anchored by a spacious family room, creating an ideal hangout space for children or guests. Bordering this level’s main living space, two bedrooms with their own bathrooms make having extra people stay over simple. Toward the back of the basement, a refreshment area provides easy access to all of your favorite drinks and snacks, leading toward the bunk room and laundry room. This convenient bunk room is just waiting to host slumber party guests!
On the main level, a front porch welcomes guests inside through a foyer and into the primary living space with built-in storage and a fireplace. To the left, the kitchen features a sizable center island, which creates an ideal space for hosting guests or enjoying a casual meal. A spacious pantry and mudroom further optimize this home. On the opposite side of the main level, the secluded primary suite gives the owners their own space to relax and features a walk-in closet, bathroom with dual sinks and a tub, and a separate shower. The main level is made complete by a large deck with plenty of space for dining, grilling, and relaxing with loved ones.
The luxurious details of this home are truly showcased on the upper level, which makes your home feel like a glamorous getaway. This floor features a spacious sitting area with an attached full bathroom, as well as a refreshment area for preparing beverages or light snacks for guests. Around the corner, an exercise area brings the gym into your home, adding to this plan’s resort-like feel. After your workout, step onto the east patio to take in the view. An additional patio on this level is optimized for outdoor dining or watching the sunset over the water.
Luxe Cottage
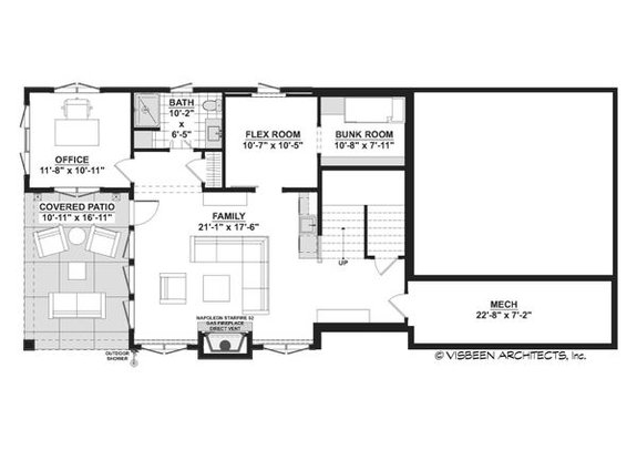
Plan 928-354
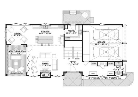
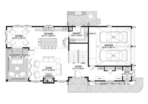
This traditional cottage is the epitome of lakefront living. Classic exterior details pay tribute to the simplicity of life by the water, while the interior is full of smart details that offer the best in modern living. Although suited for a narrow lot, this home does not sacrifice a single detail. On the basement level, a spacious family room anchors the space, while a flex room and bunk room with a bathroom provide plenty of room for guests to enjoy. An office on this level creates the perfect work from home environment with a view of the water. After the workday, step onto the covered patio to relax and take in the serenity of lakefront life.
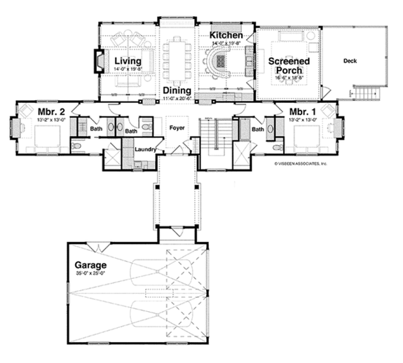
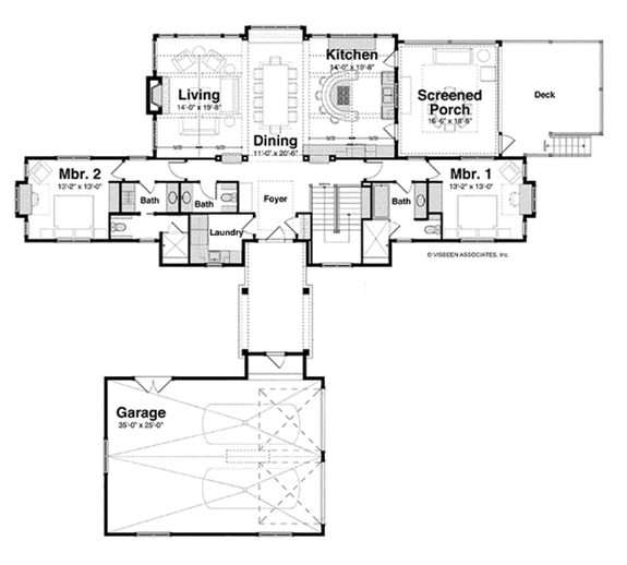
On the main level, a foyer greets you with stairs leading both to the basement and up to the third level. To the left of the foyer, a living room flows seamlessly into the kitchen, making entertaining simple. An additional sitting room sits at the back of the home, with access to the screened porch. This feature allows you to spend time outdoors regardless of the weather and entertain guests with ease. On the opposite side of the kitchen, a sizable pantry leads onto the barbecue deck, allowing you to keep ingredients just a few steps away when grilling for friends and family. The main level is made complete by an additional half bathroom and a spacious two-car garage.
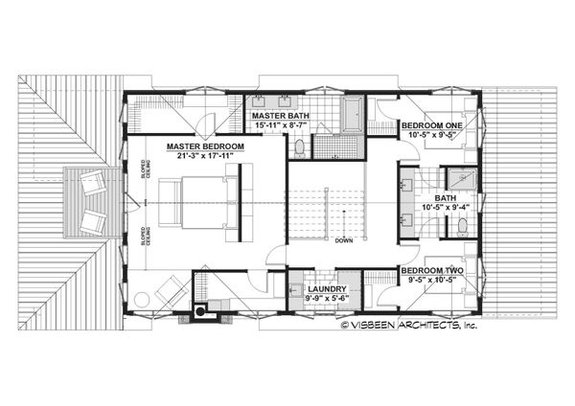
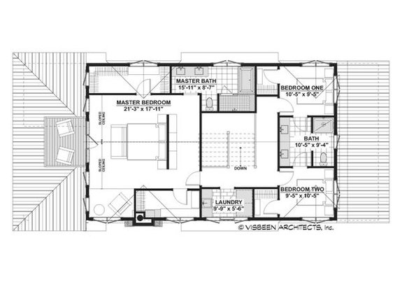
The home’s upper floor is perfectly equipped for relaxing after a day on the lake, with a spacious primary suite making up a majority of this level. Including its own sitting area, private porch access, and a bathroom with dual sinks, this suite provides the ultimate owners’ retreat. Two more bedrooms give guests or children their own spaces, each including its own closet. A shared bathroom features double sinks and entrances from either bedroom, adding to the overall convenience of this beautiful lake home.
Breezy Craftsman Home
Plan 928-229
On the main level, this home welcomes guests through a spacious foyer, leading into the kitchen with a large center island. Just beyond the kitchen, a sunroom allows for year-round enjoyment of the lakefront vistas. To the left, a large living space creates the perfect place to host guests, with easy access to the dining room. After enjoying a meal, step onto the covered porch to watch the sunset with loved ones close by. On the opposite side of the home, the primary suite sits comfortably, away from the main living spaces. This suite includes a separate sitting area, full bathroom with dual sinks, and a walk-in closet with convenient access to the laundry room. A private porch makes this space feel even more luxe. To round out the main level, a study makes the ideal space to work from home.
Upstairs, plenty of living space lends itself to housing a large family or hosting all of your closest friends. Four guest bedrooms provide lots of room to relax, while three full bathrooms (one of them a Jack and Jill bath) add to the home’s convenience. An additional loft space on this floor is ideal for hosting a movie night, with simple access to the upper-level deck for stargazing.
On the lower level, which can be finished to add an extra 1,937 square feet of living space, entertainment takes precedence with a sizable family room, which leads into the cozy hearth room or onto the screen porch. A refreshment area is optimal for entertaining, making it simple to prepare your favorite snacks or drinks before stepping onto the patio to take in waterfront views. This level also includes an exercise room for partaking in your favorite home workout, a billiards room to enjoy a friendly round of pool, and a convenient half bathroom. Lots of storage space on this level is a welcome detail.
Looking for ideas to decorate your lake house? Check out these ideas from The Spruce.
Cozy Waterfront Craftsman
Plan 928-252
This home features lots of open living space on its lower floor. Three bedrooms provide plenty of room for guests or children. Two bathrooms create optimal convenience as well. A sizable family room makes the perfect place to relax after a long day on the lake, leading out onto the screened porch and covered patio. This versatile space makes the ideal area for outdoor dining or entertaining guests. Back inside, a game room adds more space to entertain, while a bunk room gives kids their own space to relax.
Upstairs, the main level presents lots of living space, a wide-open kitchen and dining space, and plenty of other luxe amenities. On the right side of the home, a short hallway connects the foyer to the main primary suite, equipped with deck access and its own full bathroom. A second suite on the opposite side of the house makes guests feel like they’re on vacation in your home. This suite includes a full bathroom as well, making privacy a nonissue. Before retiring to bed, all are welcome to enjoy the attached screen porch and deck, which are perfect for entertaining or relaxing.
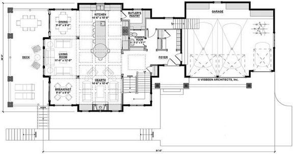
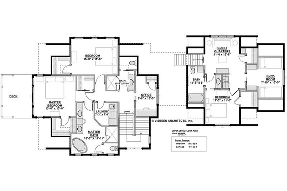
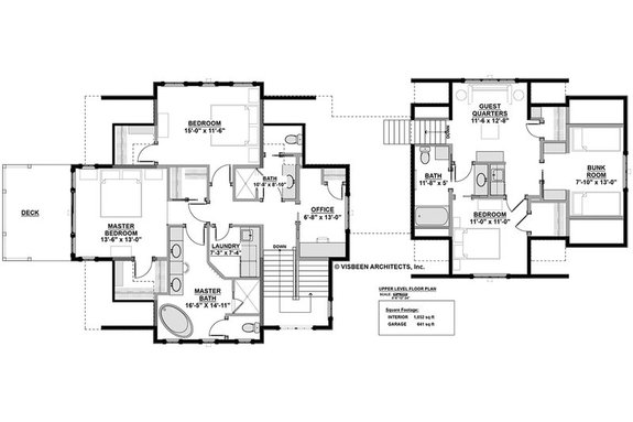
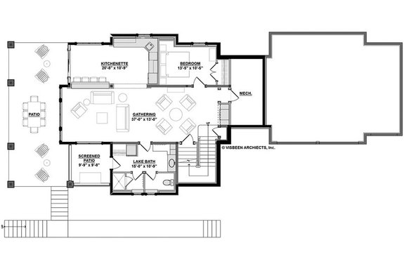
Country Style Waterfront Home
Plan 928-297
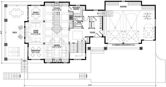
From the exterior, this luxe home resembles a classic country cottage but is perfectly designed for life by the lake. Enter through the main foyer and you are greeted by flights of stairs that lead to both the upper level and basement. Beyond the foyer is the grand hearth room, which is connected to the kitchen. Seamlessly, the living and dining spaces flow together, allowing for optimal entertaining. Step out to the deck for easy outdoor entertaining. On the opposite side of the kitchen, a butlers pantry and powder room add to the convenience of this space.
Upstairs, the primary bedroom comes equipped with a walk-in closet, a bathroom with dual sinks, and its own private deck. The other room on this floor is ideal for children, with its own closet and nearby bathroom. The upper level is made complete with an office space, which makes working from home simple. Need more bedrooms? The bonus space above the garage can be made into an oasis for guests.
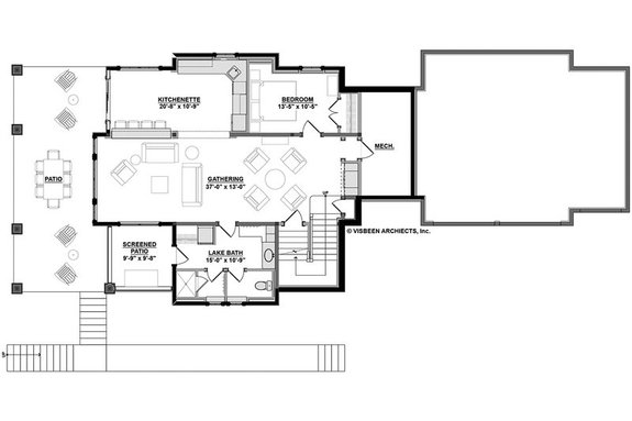
On the lower level (which can be finished to give an additional 1,121 square feet of living space), a large gathering space comprises most of the living space, bordered by a kitchenette for preparing snacks or beverages with ease. A bedroom on this level is perfect for hosting more guests. Across the level, a sizable lake bath is the perfect convenient addition to make lake living a breeze. An outdoor patio and screened patio add to the overall appeal of this lake-ready home.













