By Devin Uriarte
Looking for a small home design that won't cost a bundle to build? These 900 sq. ft. house plans (or around that size) offer striking curb appeal with some surprisingly luxurious features.
Check Out More 900 Sq. Ft. House Plans in This Collection.
Contemporary House Plan
 Contemporary House Plan - Front Exterior
Contemporary House Plan - Front Exterior
  Contemporary House Plan - Main Floor Plan
Contemporary House Plan - Main Floor Plan
This 962 sq. ft. house plan has simple curb appeal. The mixed materials of the exterior show off the contemporary design. Upon entering from the front porch, you’ll land in the cozy living room. Stairs leading to the unfinished basement separate the living room from the kitchen. The kitchen is quite spacious and features a casual dining area. A sliding glass door in the kitchen brings in natural light, which helps create a more open feeling throughout.
Contemporary Garage with Studio
 Contemporary Garage with Studio - Front Exterior
Contemporary Garage with Studio - Front Exterior
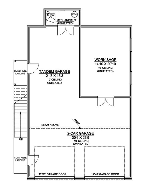
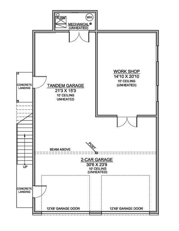
  Contemporary Garage with Studio - Main Floor Plan
Contemporary Garage with Studio - Main Floor Plan
  Contemporary Garage with Studio - Upper Floor Plan
Contemporary Garage with Studio - Upper Floor Plan
Stunning modern garage doors lead the way into the spacious garage and workshop beyond. Heading upstairs on the exterior staircase, you will find the spacious studio apartment. There is a bathroom and convenient kitchenette, but the real eye-catcher of this space is the luxurious sun deck. A large sliding glass door opening to the sun deck also provides the studio with natural light and further elevates the space.
Modern House Plan with Balcony
 Modern House Plan with Balcony - Front Exterior
Modern House Plan with Balcony - Front Exterior
  Modern House Plan with Balcony - Main Floor Plan
Modern House Plan with Balcony - Main Floor Plan
  Modern House Plan with Balcony - Upper Floor Plan
Modern House Plan with Balcony - Upper Floor Plan
The stone pillars, uniquely shaped windows, and eye-catching balcony give this house plan modern curb appeal. This small plan is 924 sq. ft. and offers a luxurious private balcony off the primary suite. Owners can unwind after a long day and even host guests for dinners. Downstairs on the main level is where the guest bedroom resides along with the cozy living area. The modern open layout allows owners to entertain guests with ease and move from the kitchen into the living room.
Cozy Modern Plan
 Cozy Modern Plan - Front Exterior
Cozy Modern Plan - Front Exterior
 Cozy Modern Plan - Main Floor Plan
Cozy Modern Plan - Main Floor Plan
The deck of this 936 sq. ft. cottage is a great spot to host and relax. Whether you’re inside preparing a meal or lounging in the living room, you can enjoy the view out to the deck. Sliding glass doors and windows allow natural light to stream into the modern cottage, making owners feel closer to nature. The kitchen features a lovely island with a built-in tabletop for guests and looks out to the living room. There are two bedrooms. The primary bedroom has large windows and a walk-in closet that make the space feel elevated.
Modern Plan with Covered Porch
 Modern Plan with Covered Porch - Front Exterior
Modern Plan with Covered Porch - Front Exterior
 Modern Plan with Covered Porch - Main Floor Plan
Modern Plan with Covered Porch - Main Floor Plan
If you’re looking for a modern vacation home to fit on a smaller lot, look at this 880 sq. ft. house plan. The angled roof, mixed materials, and open porch add to the overall modern curb appeal. Inside feels quite spacious with the open layout and large windows. A sliding glass door next to the kitchen opens to the covered porch, where owners can enjoy their meals. The primary bedroom has private access to the rear deck and features an impressive walk-in closet.
Simple Modern House Plan
 Simple Modern House Plan - Front Exterior
Simple Modern House Plan - Front Exterior
 Simple Modern House Plan - Main Floor Plan
Simple Modern House Plan - Main Floor Plan
The architectural design of this plan is incredibly unique with a nearly rectangular shape and a charming, covered terrace that looks out to the property. Impressively large windows allow you to enjoy the views even when you’re inside. While preparing meals in the kitchen, owners can prep at the island and continue conversations with the guests in the open living room. A luxurious feature of this plan is the built-in sauna. Owners can escape into this modern oasis and connect to nature.
Hillside Contemporary Plan
 Hillside Contemporary Plan - Front Exterior
Hillside Contemporary Plan - Front Exterior
  Hillside Contemporary Plan - Main Floor Plan
Hillside Contemporary Plan - Main Floor Plan
  Hillside Contemporary Plan - Basement Floor Plan
Hillside Contemporary Plan - Basement Floor Plan
Soak in the views from this two-story hillside plan. This contemporary plan would be a great option for those looking to build on a small hillside property. The ground level features a drive up three-car garage. Floor-to-ceiling windows bring in stunning natural light and help open the area. The kitchen has an impressive island with a built-in bar top. French doors create indoor-outdoor flow from the inside out to the deck.
Two-Story Narrow Plan with Storage
 Two-Story Narrow Plan with Storage - Front Exterior
Two-Story Narrow Plan with Storage - Front Exterior
  Two-Story Narrow Plan with Storage - Main Floor Plan
Two-Story Narrow Plan with Storage - Main Floor Plan
  Two-Story Narrow Plan with Storage - Upper Floor Plan
Two-Story Narrow Plan with Storage - Upper Floor Plan
This narrow two-story plan features luxurious modern amenities like an open layout and thoughtful storage. A charming front porch welcomes guests into the open living room, which flows into the kitchen. There is a bar top at the extended counter along with built-in shelves. For additional storage, there is a pantry and a storage space under the staircase. Upstairs there are two bedrooms, one with a cozy window seat.
Tiny Modern House Plan
 Tiny Modern House Plan - Front Exterior
Tiny Modern House Plan - Front Exterior
 Tiny Modern House Plan - Main Floor Plan
Tiny Modern House Plan - Main Floor Plan
This 935 sq. ft. house plan would be a simple additional build for guests to enjoy and have their own space, or build it as your primary dwelling. The high ceiling in the main living area helps the space feel more open and the two sets of French doors out to the covered porch and side yard create great indoor-outdoor flow. Each bedroom boasts another set of French doors, making it easy to step outside.
 
         
                   
                   
                   
                   
                  