If you’re looking for the impressive details and style that are typical of luxury home designs, but don’t need all the space, then you’ll love our small luxury house plans. These designs are smaller than traditional luxury homes, but they still offer you all the appealing exterior features and interior floor plans that you’ve come to expect from a luxurious design. Scroll down to see some of our most popular small luxury house plans.
Take a look at our collection of small luxury house plans
Small Modern Luxury House Plan
Plan 1070-62
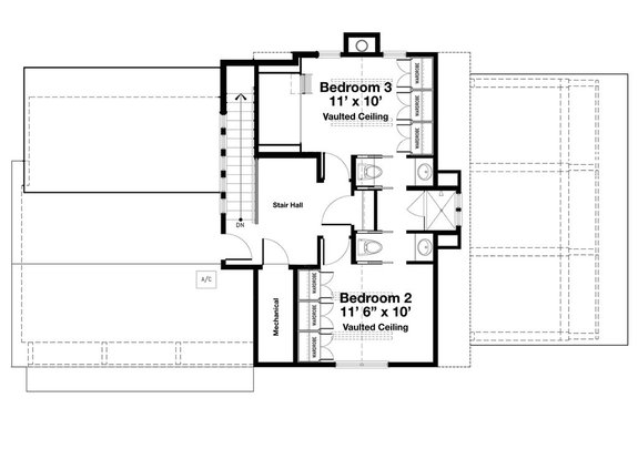
Interested in a small luxurious home with contemporary style? Check out this cool house plan. As you pass through the entryway, you’ll find yourself in a large and open great room that includes access to the outdoor deck, perfect for dining al fresco. The nearby dining space moves easily into the kitchen, which features an island, a snack bar, and a separate pantry. The private master suite includes a luxurious bathroom (with dual sinks) and a generous walk-in closet.
The second floor includes two bedrooms, a full bathroom, and a loft space (ideal for relaxing). On the lower level, there’s space for a family room as well as an additional full bathroom.
Check out these spa-like bathroom ideas from Decoholic
Farmhouse Style Small Luxurious Home Plan
Plan 430-230
Although this is a smaller luxury home plan, it still has a spacious open floor plan. You’ll really appreciate the convenience of one-story living with this plan, which includes an expansive great room (with a built-in fireplace) that flows seamlessly into the dining space (with access to the rear porch) and a modern kitchen. The kitchen is equipped with a large island, an snack bar, a walk-in pantry, and plenty of cabinet space. One wing of this luxury plan features two bedrooms with large closets and a full bathroom.
On the opposite site of the plan you’ll find the master suite that includes a bathroom with a seated shower and a large walk-in closet. The laundry space is conveniently nearby as well.
Explore these luxury kitchen ideas from HGTV
Small Luxury Farmhouse Design
Plan 929-1099
There’s a lot to like about this one-story home plan. When you walk through the welcoming porch you’ll immediately notice the spacious and open great room, which features a built-in fireplace and access to the rear screened porch. The large dining area is steps away from the nearby kitchen. Inside the kitchen you’ll find a generous kitchen island and a large pantry.
One side of this luxury plan features two bedrooms (one with a walk-in closet) and a full bathroom. The opposite side includes the master suite, which gives you a spacious walk-in closet, luxe bathroom with a separate shower and a soaking tub, and two sinks.
Beautiful Beach Style Small Luxury Home Plan
Plan 443-20
This small luxury design is not only big on curb appeal, but it features all the amenities and space you could need. You’ll start by walking through the screened entry porch, which is sure to be your go-to place for relaxing. Then you’ll find yourself in the open great room that includes a high ceiling and a built-in fireplace. The nearby kitchen features a large island that’s ideal for meal prep and casual dining. The master suite is located at the rear of this plan, and features a bedroom with a vaulted ceiling, generous walk-in closet, a spacious bathroom with two sinks, and a separate shower and tub.
On the second level you’ll find two bedrooms (each with plenty of closet space) sharing a Jack-and-Jill bathroom.
Traditional Style Small Luxurious Home
Plan 430-214
This one-story home plan gives you luxurious details on one convenient level. Pass through the foyer and you’ll be in the spacious great room (which includes access to the rear porch) that opens into the dining area and well-equipped kitchen. Here you can have casual meals at the eat-in bar and enjoy the convenience of the nearby walk-in pantry.
One wing of this small luxury plan features the master suite, which includes a spacious bathroom with dual sinks, a separate shower and tub, and a generous walk-in closet (with direct access to the laundry room). The opposite wing of this design contains two bedrooms and a full bathroom with two sinks.
Modern House Design with Open Floor Plan
Plan 70-1477
This eye-catching design packs a lot of details and features into its open floor plan. When you first enter through the stoop, you’ll be greeted with an expansive great room that provides access to the covered porch and outdoor deck. The dining space is close to the kitchen, which features a large kitchen island, plenty of cabinet space, and a walk-in pantry nearby.
Further back in this wing is the master suite, with a private bathroom (with two sinks), a spacious walk-in closet, and easy access to the washer/dryer. The opposite side of this plan includes two bedrooms split by a full bathroom.
Small Modern Luxury House Plan
Plan 1073-22
This appealing modern style home plan is sure to stand out from the crowd. Enjoy one-story living with the spacious appeal of an open floor design. Once you’re inside, you’ll find yourself passing through the foyer and into the expansive and airy great room, with a built-in corner fireplace. Sliding doors offer access to the rear covered patio. The modern kitchen features an island, a pantry, and space for a dining nook.
The master suite boasts a luxe bathroom with two sinks, a separate shower and tub, and two walk-in closets. The opposite side of this plan includes one bedroom, a full bathroom, and a flex room that could be used as a home office or additional bedroom.
Contemporary One-Story Small Luxury House Plan
Plan 1073-20
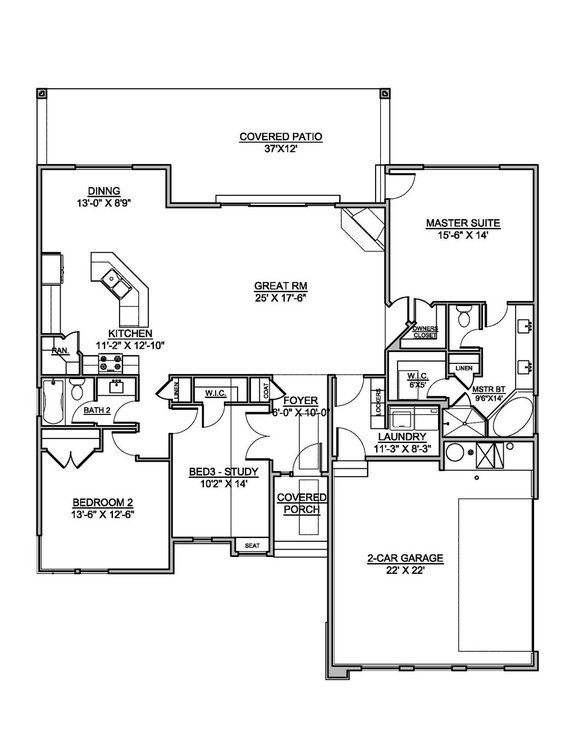
There’s more space than meets the eye with this sleek design. Walk through the entryway and you’ll be in the spacious and open great room that includes sliding-door access to the rear covered patio. The kitchen is not far away, and features a helpful walk-in pantry, kitchen island, and plenty of countertop space. Down the hall you’ll find space for a washer/dryer and a half bathroom. The private master suite is not far away and includes a bathroom (with dual sinks) and a spacious walk-in closet.
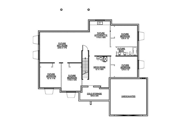
The opposite side of this home plan includes three bedrooms (two with walk-in closets) and a full bathroom. Should you decide to include a lower level, there is space for additional bedrooms, a bathroom, a kitchenette, and a rec room.
Traditional One-Story House Design
Plan 923-145
If you’re in need of a small house plan that has lots of cozy appeal, but still space to grow, this could be the design for you. As you make your way through the front door, you’ll encounter the great room with a vaulted ceiling and built-in fireplace. This open floor plan moves easily into the spacious kitchen with a walk-in pantry, snack bar for casual dining, and space for a dining area with access to the outdoor grilling porch. The luxurious master suite is located on the opposite side of the plan and features a large bedroom, a bathroom with dual sinks, a toilet compartment, a separate shower and tub, and a nearby walk-in closet.
On the other side of this design is space for two bedrooms (with generous closets) and easy access to a full bathroom.
Attractive Contemporary Style House Design
Plan 126-226
Looking for a small luxury house plan with contemporary style? This home plan might be ideal for you. It’s also a great option if you have a narrow lot to build on. Check out the open great room that features a two-story atrium. This space seamlessly transitions into the dining area (with access to the rear covered patio) and kitchen, which is equipped with a walk-in pantry and a snack bar.
Upstairs, the master suite gives you a bathroom with dual sinks (and separate toilet compartment) and a large walk-in closet. Further down the hall are two bedrooms, a full bathroom, space for a stacked washer/dryer, and a loft.
Small luxurious home plans are the ideal mix between spacious and economical. If you’re dreaming of a house that has plenty of luxe amenities inside and out, but doesn’t have a large footprint, consider one of these designs.















