Blog Home > Stunning Luxury House Plans from Visbeen Architects

The Houseplans Blog

Stunning Luxury House Plans from Visbeen Architects

Enjoy these luxurious house plans from Visbeen Architects.

Hero Image

June 1, 2023

Livabl Brand

Can't find what you're looking for?

Give us a call below or reach out and we’ll make sure to be in contact!

Send Us a Message

By Devin Uriarte

What does luxury home design look like today? It's a blending of form and function. These house plans from Visbeen Architects show how to do it, with thoughtful details, plenty of storage, and contemporary curb appeal. Let's take a look at some of our favorites.

Shop the full Visbeen Architects collection here.

Luxury House Plan with In-Law Suite Luxury House Plan with In-Law Suite Luxury House Plan with In-Law Suite - Front Exterior

Luxury House Plan with In-Law Suite Luxury House Plan with In-Law Suite - Main Floor Plan

This contemporary style house plan features luxurious features inside including a private in-law suite. The in-law suite sits on the right side and has access to its own two-car garage. Inside, there is a cozy kitchen that flows into the living room. A spacious mudroom and walk-in laundry room divide the in-law suite with the main home. Owners in the main home will be able to unwind and relax in their private wing with a full bathroom and luxurious walk-in closet.

Luxury Contemporary House Plan Luxury Contemporary House Plan Luxury Contemporary House Plan - Front Exterior

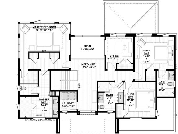
Luxury Contemporary House Plan Luxury Contemporary House Plan - Main Floor Plan

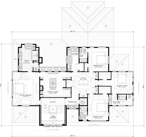
Luxury Contemporary House Plan Luxury Contemporary House Plan - Upper Floor Plan

Luxury Contemporary House Plan Luxury Contemporary House Plan - Lower Floor Plan

Host guests on the lower level of this luxury plan with its open living space. The living room flows into the sitting room with a convenient refreshment bar. Open the French doors on warmer days to the rear patio to create seamless indoor-outdoor flow. Another luxurious feature on this level is the spacious exercise room. There’s an elegant living room layout on the main floor that flows into the kitchen, which leads out to a covered deck. The large windows fill the space with natural sunlight and the tall ceilings add to the luxurious vibe. Owners and guests can continue enjoying the natural light and great views of the property from the primary suite, quiet office, and two guest suites.

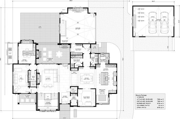
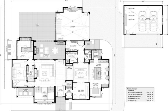
Contemporary Home with Screened Porch Contemporary Home with Screened Porch Contemporary Home with Screened Porch - Front Exterior

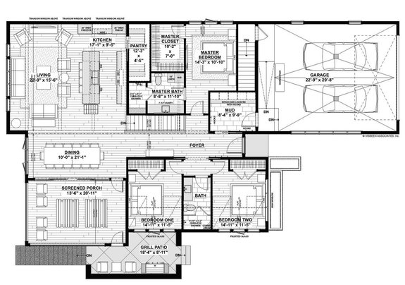
Contemporary Home with Screened Porch Contemporary Home with Screened Porch - Main Floor Plan

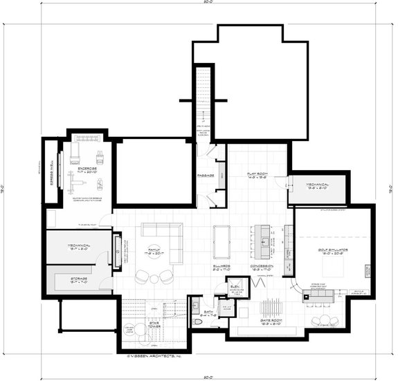
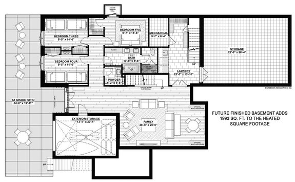
Contemporary Home with Screened Porch Contemporary Home with Screened Porch - Optional Finished Basement Floor Plan

If you’re looking for a hillside house plan with luxurious features, then look to this contemporary style home. On the main floor there’s an impressive kitchen with a large prep island that looks out onto the living and dining room. Enjoy summer nights by preparing meals on the grill patio, then eating dinner out on the screened porch. Need more space? Finish the lower level, which can hold a spacious living room leading out to the at-grade patio. Also available to finish on the lower level are three extra guest bedrooms and a full bathroom.

Stunning Contemporary House Plan Stunning Contemporary House Plan Stunning Contemporary House Plan - Front Exterior

Stunning Contemporary House Plan Stunning Contemporary House Plan - Main Floor Plan

Stunning Contemporary House Plan Stunning Contemporary House Plan - Upper Floor Plan

Stunning Contemporary House Plan Stunning Contemporary House Plan - Lower Floor Plan

The views provided by the stunning outdoor decks and patios add to the overall luxurious appeal of this contemporary plan. A wraparound deck sits on the main floor with an outdoor barbecue area. Two doors in the living room open to the deck, creating a seamless indoor-outdoor flow and letting in lots of natural light. Take in the views upstairs on either the east or west patios that feature fantastic views of the property. Elevate your hosting with the full refreshment area and built-in bar. Downstairs on the lower level there is a second living room with another refreshment bar and access to the covered patio. The two bedrooms on this level have elegant French doors that open to the patio, letting in a refreshing breeze.

Contemporary Plan with Stunning Windows Contemporary Plan with Stunning Windows Contemporary Plan with Stunning Windows - Front Exterior

Contemporary Plan with Stunning Windows Contemporary Plan with Stunning Windows - Main Floor Plan

Contemporary Plan with Stunning Windows Contemporary Plan with Stunning Windows - Upper Floor Plan

Contemporary Plan with Stunning Windows Contemporary Plan with Stunning Windows - Lower Floor Plan

This is a standout contemporary house plan that stretches 8,827 sq. ft. and features many luxurious amenities. There are striking floor-to-ceiling windows in the stairwell that let in lots of natural light and completely elevate the curb appeal. The primary suite is incredibly impressive; seriously, just click through to see the photos. A full entertainment area sits on the lower level of this plan and features a golf simulator, a concession bar, and spacious game room. These amenities would be a great source of entertainment during game day parties.

Luxury Modern House Plan with a Basement Luxury Modern House Plan with a Basement Luxury Modern House Plan with a Basement - Front Exterior

Luxury Modern House Plan with a Basement Luxury Modern House Plan with a Basement - Main Floor Plan

Luxury Modern House Plan with a Basement Luxury Modern House Plan with a Basement - Lower Floor Plan

The curb appeal of this house plan is sleek and modern. Upon entering the home there is a formal foyer that opens to the living room. The kitchen is tucked away along with the dining area. There’s an impressive pantry next to the kitchen island for additional storage. The views of the back outdoor living area can be enjoyed in the kitchen, living room, and primary suite. Downstairs there are two additional bedrooms that can be enjoyed as media rooms or offices if you choose.

Narrow Luxury House Plan Narrow Luxury House Plan Narrow Luxury House Plan - Front Exterior

Narrow Luxury House Plan Narrow Luxury House Plan - Main Floor Plan

Narrow Luxury House Plan Narrow Luxury House Plan - Upper Floor Plan

Narrow Luxury House Plan Narrow Luxury House Plan - Lower Floor Plan

Looking to build on a narrow lot? This luxury house plan is only 20 feet wide and features stunning rear views of the property. The views can be enjoyed from every level. A cozy dining nook sits in the kitchen for a more casual dining experience and the vaulted ceiling in the formal dining room adds a bit of drama. Owners can host guests on the lower level, where there’s an outdoor patio connecting the guest bedroom and spacious second living room.

Shop the full Visbeen Architects collection here.

Get Our Newsletter

Be the first to see new plans, special offers, and more.

By signing up for our newsletter, you agree to our Terms & Conditions and Privacy Policy, for an account

Blog Subscribe Icon