By Courtney Pittman
If you’re looking for a home with space, comfort, and practicality, look no further than these 2,000 sq. ft. house plans. With effortlessly relaxed layouts, these medium-sized designs (typically featuring three to five bedrooms) offer generous living areas, flexible rooms, and well-equipped kitchens. See our roundup of not-too-big, not-too-small plans (all around 2,000 sq. ft.) below.
Ready for more? Discover our collection of 2,000 sq. ft. house plans here.
Three-Car Garage
Three-Car Garage - Front Exterior
Here's a thoughtfully designed 2,000 sq. ft. house plan (1,952 to be exact) that balances timeless style with modern living. The open-concept layout maximizes space between the main living areas, creating a welcoming environment. We love the island (with a snack bar) in the kitchen.
A barn door hides the hardworking pantry. A spa-like bath highlights the primary suite. Other key features include dedicated storage in the three-car garage and a spacious rear porch.
Farmhouse Plan with Loft
Farmhouse Plan with Loft - Front Exterior
Farmhouse Plan with Loft - Main Level
Farmhouse Plan with Loft - Upper Level
This 2,015 sq. ft. house plan shows off farmhouse style with board-and-batten siding, metal roof accents, and an inviting front porch. The main level features a light-filled great room with a cathedral ceiling and a cozy fireplace. Nearby, the open kitchen offers relaxed seating at the wide island.
Just off the two-car garage, a mudroom with lockers keeps items tidy. Here’s a cool detail: the primary suite gives you direct access to the laundry room. Don’t miss the covered rear patio or the versatile loft.
Country Curb Appeal
Country Curb Appeal - Front Exterior
Country Curb Appeal - Main Level
Classic and charming, this 2,025 sq. ft. house plan blends country curb appeal with a contemporary layout. The front porch beckons you to sit back and relax. Inside, the dreamy kitchen showcases a large island and a walk-in pantry with shelves. A fireplace and a 10-foot ceiling enhance the open great room.
Smart touches like a mudroom with lockers and a two-car garage offer functionality. The primary suite impresses with a cathedral ceiling and a super-generous walk-in closet (with direct access to the laundry room). Near the entry, a formal living room could become a study or a game room.
Super-Open Layout
Super-Open Layout - Front Exterior
Super-Open Layout - Main Level
We are drooling over this 2,000 sq. ft. farmhouse plan. This beauty boasts an open great room that flows seamlessly into the island kitchen. Note the walk-in pantry.
The primary suite, which enjoys privacy on the left side of the plan, includes a custom shower and a sizable closet. The laundry room is conveniently close by. Wide front and rear porches give ample room for outdoor enjoyment.
Sleek 2,000 Sq. Ft. House Plan
Sleek 2,000 Sq. Ft. House Plan - Front Exterior
Sleek 2,000 Sq. Ft. House Plan - Main Level
Check out this rustic 2,000 sq. ft. house plan. The four-corner footprint makes it a builder-friendly option. We are drooling over the sleek shed roof, the board-and-batten siding, and the dual porches.
Inside, a fireplace-warmed great room greets you and features a sloped ceiling. Enjoy casual meals at the kitchen island. Shelves in the walk-in pantry are a handy amenity. The practical mudroom boasts built-in lockers and a desk. Each bedroom includes a walk-in closet (including the primary suite).
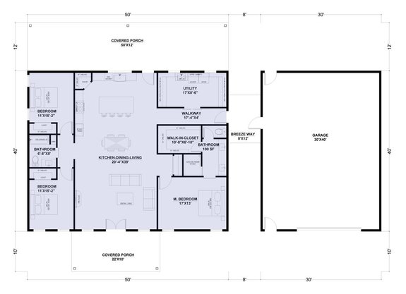
Simple Barndo Design with Breezeway
Simple Barndo Design with Breezeway - Front Exterior
Simple Barndo Design with Breezeway - Main Level
Here’s a barndominium plan brimming with character. The 2,000-square-foot design features metal siding, a cute front porch, and a metal gable roof. The simple layout feels fresh and open with a streamlined flow between the main gathering areas.
Love the look? Browse barndominium plans here.
Check out the extra-spacious utility room. Nice view? Take it in on the large covered back porch. A breezeway connects the main home to the two-car garage.
Modern A-Frame Plan
Modern A-Frame Plan - Front Exterior
Modern A-Frame Plan - Main Level
Modern A-Frame Plan - Upper Level
Looking for a vacation retreat? Check out this modern A-frame design. Just over 2,000 square feet, this plan gives you an up-to-date layout. Large windows and sliding glass doors flood the two-story great room with natural light.
The spacious kitchen island is perfect for relaxed dining and entertaining. The main-level primary suite offers double sinks and a roomy walk-in closet. Upstairs, you’ll find a second bedroom, a full bath, a loft space, and access to a covered deck – ideal for enjoying the view.
Explore A-frame home designs.
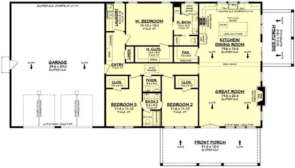
Two-Story Farmhouse-Inspired Plan
Two-Story Farmhouse-Inspired Plan - Front Exterior
Two-Story Farmhouse-Inspired Plan - Main Level
Two-Story Farmhouse-Inspired Plan - Upper Level
This thoughtfully designed farmhouse plan offers modern convenience with timeless appeal. Don’t miss the cute front porch. The island kitchen connects to the living room and the dining area with ease.
On the main floor, a flexible bedroom could become a myriad of things (like a home office or a hobby room). Upstairs, the primary suite is ready to impress with a wet room and an extra-big walk-in closet. Two secondary bedrooms and a full bath complete this level.
