Blog Home > What is a One-and-a-Half Story House?

The Houseplans Blog

What is a One-and-a-Half Story House?

Learn what a one-and-a-half story house plan entails.

Hero Image

August 28, 2024

Livabl Brand

Can't find what you're looking for?

Give us a call below or reach out and we’ll make sure to be in contact!

Send Us a Message

By Devin Uriarte

Curious about what a one-and-a-half story house is? This unique architectural style combines the charm of a traditional two-story home plan with the convenience of a single-story design. You get the benefits of an upstairs space, often used for secondary bedrooms or a loft (or even a bonus room) without the full footprint of a typical second floor. These house plans all have one-and-a-half stories and use the space efficiently.

See more one-and-a-half story house plans here.

3 Bedroom Modern Farmhouse with Bonus Room 3 Bedroom Modern Farmhouse with Bonus Room 3 Bedroom Modern Farmhouse with Bonus Room - Front Exterior

3 Bedroom Modern Farmhouse with Bonus Room 3 Bedroom Modern Farmhouse with Bonus Room - Main Floor Plan

3 Bedroom Modern Farmhouse with Bonus RoomThe Perfect Blend 3 Bedroom Modern Farmhouse with Bonus Room - Upper Floor Plan

This house plan perfectly blends farmhouse charm with modern flair. Inside there’s a long entryway that opens to the spacious great room. Vaulted ceilings are a nice modern detail that also helps fill the space with lots of natural light. Owners will love cooking in the kitchen with a large island and walk-in pantry. Upstairs you can look down to the living room. Also, upstairs are two bedrooms with walk-in closets plus a bonus room for any additional space you may need.

Unique House Plan Unique House Plan Unique House Plan - Front Exterior

Unique House Plan Unique House Plan - Main Floor Plan

Unique House Plan Unique House Plan - Upper Floor Plan

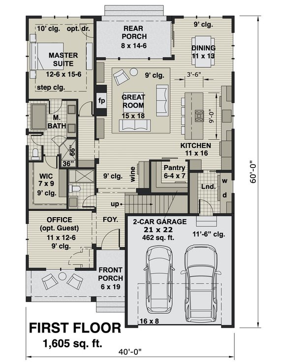
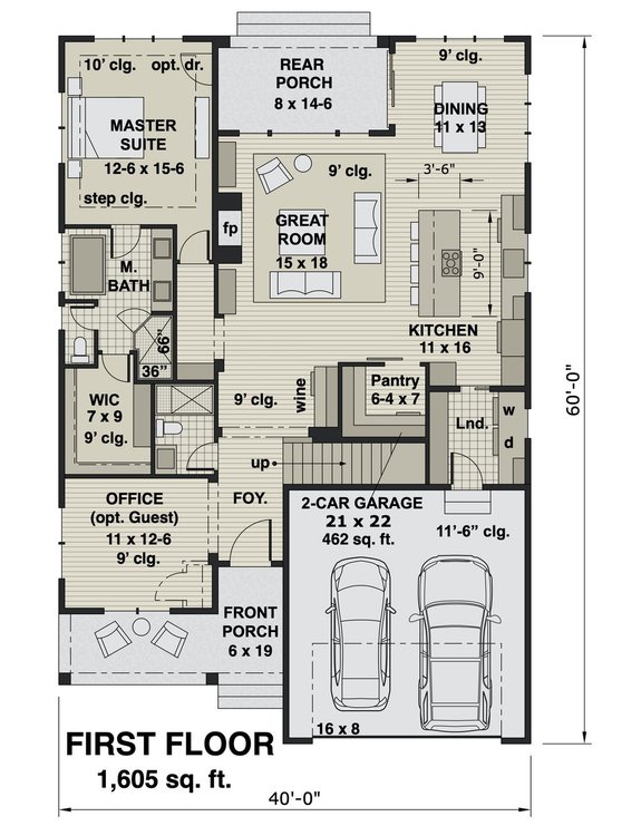
Is it a barn or is it a house? It’s both! Well, at least in style. The exterior is rustic and has an impressive lanai and front covered porch. At the center of the house plan is the main living space. The kitchen flows seamlessly into the dining and living room with lots of great windows to let in natural sunlight. The primary suite and private office sit on one end of the house plan while two guest bedrooms sit on the opposite side. This one-and-a-half story plan features a spacious loft upstairs, which looks down to the first floor.

Charming Curb Appeal Charming Curb Appeal Charming Curb Appeal - Front Exterior

Charming Curb Appeal Charming Curb Appeal - Main Floor Plan

Charming Curb Appeal Charming Curb Appeal - Upper Floor Plan

Let’s step inside this beautiful farmhouse with charming curb appeal. The front porch welcomes guests through the foyer and into the main living area. In the kitchen, you'll love the ample counter space and walk-in pantry. Note the privacy that the primary suite offers, since it resides on the main floor. Upstairs are the two guest bedrooms, each boasting a walk-in closet. There’s also a cozy loft plus a bonus room if more space is needed.

Open Living Space Open Living Space Open Living Space - Front Exterior

Open Living Space Open Living Space - Main Floor Plan

Open Living Space Open Living Space - Upper Floor Plan

In this one-and-a-half story house plan, there are three guest bedrooms on the second floor. The hallway connecting all the bedrooms looks down to the great room below. On the main floor, there’s a spacious open living room that is great for homeowners who love to entertain. There’s a thoughtful wet bar in the living room with a spacious kitchen nearby. Two sets of French doors create indoor-outdoor flow to the porch. If you want to elevate your summer hosting, an optional outdoor kitchen can be added. A thoughtful detail of this plan is the private study that is close to the primary suite.

L-Shaped Plan L-Shaped Plan L-Shaped Plan - Front Exterior

L-Shaped Plan L-Shaped Plan - Main Floor Plan

L-Shaped Plan L-Shaped Plan - Upper Floor Plan

Inside this elegant one-and-a-half story home is a thoughtful floor plan. In the luxurious primary suite, enjoy the fireplace and sitting area, the large walk-through closet, and the private bathroom. The space upstairs is dedicated to three guest bedrooms. Looking at the living space on the first floor, French doors in the dining room and breakfast nook create great flow to the covered porch.

Time to Lounge Outside Time to Lounge Outside Time to Lounge Outside - Front Exterior

Time to Lounge Outside Time to Lounge Outside - Main Floor Plan

Time to Lounge Outside L-Shaped Plan - Time to Lounge Outside

This one-and-a-half story modern farmhouse plan has an expansive outdoor space that’s perfect for summertime hangouts. The French doors are right next to the impressive kitchen, so getting food and drinks outside to guests is incredibly easy. The kitchen has a large prep island and tons of counter space. It also looks out to the dining and living rooms. Homeowners will appreciate that the primary suite is in its own private wing of the house. The suite features double walk-in closets and a huge bathroom.

Rustic House Plan Rustic House Plan Rustic House Plan - Front Exterior

Rustic House Plan Rustic House Plan - Main Floor Plan

Rustic House Plan Rustic House Plan - Time to Lounge Outside

The rustic details of this house plan are incredibly charming and create beautiful curb appeal. The wraparound porch in particular gives it that cozy and welcoming vibe. Upstairs are two (of three) guest bedrooms plus a spacious game room. On the main floor there’s a large living room with amazing glass accordion doors that open to the rear porch. Also on the main floor is the impressive primary suite. You'll love the dual walk-in closets, extravagant bathroom, and attached laundry room. Don't miss the flexible guest suite.

See more one-and-a-half story house plans here.

Get Our Newsletter

Be the first to see new plans, special offers, and more.

By signing up for our newsletter, you agree to our Terms & Conditions and Privacy Policy, for an account

Blog Subscribe Icon