Classical Style House Plan - 2 Beds 2.5 Baths 1358 Sq/Ft Plan #81-447 - Houseplans.com
Search
REGISTER LOGIN SAVED No Saved Plans CART  Cart Empty
Don't lose your saved plans! Create an account to access your saves whenever you want. See our Terms & Conditions and Privacy Policy.
OR
15% OFF THIS PLAN TODAY
Plan 81-447
Photographs may show modified designs.
Home  >  Style  >  Classical

Classical House Plan 81-447

Key Specs


Plan Sq Ft

1358
sq ft

Plan Bedrooms

2
Beds

Plan Bathrooms

2.5
Baths

Plan Floors

2
Floors

Plan Garages

2
Garages

Questions? Get Personalized Help
Select Plan Set Options
What's included?
$297.50
Additional Construction Sets$72.25/each

Additional hard copies of the plan (can be ordered at the time of purchase and within 90 days of the purchase date).

$85.00
$33.15
$85.00
Mirror Reversed Sets$42.50

Printed sets showing plan in reverse, text and dimensions will be backwards.

Subtotal
NOW $764.15
You save $134.85
(15% savings)
Sale ends soon!
Best Price Guaranteed

Or order by phone: 1-800-913-2350
Questions? Get Personalized Help
 

 
Hours:
Ready for Your Call 7 Days a Week
Every Day 7 am - 8:30 pm Eastern

See Terms & Conditions and Privacy Policy.

Thanks for your question.

We will be in touch shortly.

Wow!
Cost to Build Reports
$1.99 with Code
CTB2026 (Limit 1)
Our Cost to Build Report gives you a personalized estimate for building your home, based on your location, plan, and materials.

Residential Construction Guide

Learn Building Basics

This downloadable, 26-page guide is full of diagrams and details about plumbing, electrical, and more.

Key Specs


Plan Sq Ft

1358
sq ft

Plan Bedrooms

2
Beds

Plan Bathrooms

2.5
Baths

Plan Floors

2
Floors

Plan Garages

2
Garages

Plan Description


This classical design floor plan is 1358 sq ft and has 2 bedrooms and 2.5 bathrooms.

This plan can be customized!

Tell us about your desired changes so we can prepare an estimate for the design service. Click the button to submit your request for pricing, or call 1-800-913-2350.

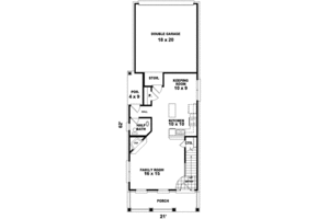
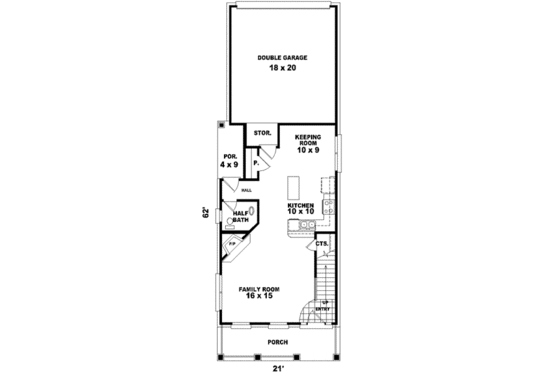
Floor Plans


Floor Plan - Main Floor

Reverse
houseplans LOGO

BUILDER Advantage Program

PRO BUILDERS

Join the club and save 5% on your first order.
PLUS download exclusive discounts and more.

LEARN MORE

Floor Plan - Upper Floor

Reverse

Full Specs & Features


Basic Features

Bedrooms : 2
Baths : 2.5
Stories: 2
Garages: 2

Dimension

Depth : 62'
Width : 21'

Area

Total : 1358 sq/ft
Garage : 429 sq/ft
Main Floor : 675 sq/ft
Porch : 176 sq/ft
Upper Floor : 683 sq/ft
* Total Square Footage typically only includes conditioned space and does not include garages, porches, bonus rooms, or decks.

Ceiling

Main Ceiling : 9'
Upper Ceiling Ft : 8'

Roof

Primary Pitch : 8:12
Secondary Pitch : 10:12

Exterior Wall Framing

Framing : 2"x4"

Bedroom Features

Walk In Closet

Kitchen Features

Kitchen Island

Additional Room Features

Family Room Keeping Room
Storage Area
Upstairs Laundry

Garage Features

Rear Entry Garage
Rear Garage

Lot Characteristics

Suited For Narrow Lot

Outdoor Spaces

Covered Front Porch
Covered Rear Porch

What's included in this plan set


See a sample plan set
Plans are typically drawn to ¼” scale and include:
  • Foundation Plan(s): Foundation plan, fully dimensioned.
  • Floor Plan(s): Floor plans w/ electrical, detailed framing information, window, and door sizes, Plumbing fixture locations, and dimensions.
  • Exterior Elevations: Views of the home from all four sides showing exterior materials, roof slope, ridge heights, siding and trim notes.
  • Overhead Roof Plan(s): Included with most plans. A view of the home from above showing roof pitch, peaks, valleys, and other details.
  • Cross Section(s): A slice of the home from roof to foundation, showing relationships between floors, roof, and foundation.
  • Kitchen Cabinet Elevation(s): Included with most plans. Detailed drawings of kitchen and bath cabinet elevations.
  • Detail Sheet(s): Details sheets for items like walls, chimneys, and fireplaces, including abbreviations, span tables.
  • Construction Notes / Detail(s): Shows basic parts and assemblies recommended for the home so the builder can see how things come together.
  • Stair Detail(s): Included with most plans. Drawings showing stair details.
* See important information before purchasing

Pricing


Plan Options

5 Copy Set

$764.15
5 printed plan sets mailed to you.

PDF Set

Best Value!
$946.90
PDF plan sets are best for fast electronic delivery and inexpensive local printing.

CAD Set

$1129.65
For use by design professionals to make substantial changes to your house plan and inexpensive local printing.

Reproducible Set

$1129.65
For inexpensive local printing / making minor adjustments by hand. 1 printed set, typically on Bond paper.

Study Set

$544.00
One electronic set for bidding purposes only. Not a legal building set for construction.

Single Set

$703.38
One printed set for bidding purposes only. Not a legal building set for construction.

Foundation Options

Slab

$0.00
Ideal for level lot, single layer concrete poured directly on grade.

*Options with a fee may take time to prepare. Please call to confirm.

Additional Options

Right-Reading Reverse

$297.50
Choose this option to reverse your plans and to have the text and dimensions readable.

Additional Construction Sets

$72.25
Additional hard copies of the plan (can be ordered at the time of purchase and within 90 days of the purchase date).

Audio Video Design

$85.00
Receive an overlay sheet with suggested placement of audio and video components.

Construction Guide

$33.15
Educate yourself about basic building ideas with these four detailed diagrams that discuss electrical, plumbing, mechanical, and structural topics.

Lighting Design

$85.00
Receive an overlay sheet with suggested placement of lighting fixtures.

Mirror Reversed Sets

$42.50
A mirror-reversed set is a printed copy of your house, resulting in the same image you would see if you held the drawing up to a mirror. Everything, including the text, is backward in relation to the original design. These kinds of drawing are typically used to reorient an original plan more advantageously on a site, either because the homeowner prefers it that way or because of limitations of the site itself. Note: Mirror reverse sets are only available with a 5 copy or 8 copy set. With a Reproducible, PDF, or CAD set, you can print mirrored copies locally. In addition: 5 Copy set selected, should only allow 4 mirrored sets to be selected. 8 Copy set selected, should only allow 7 mirrored sets to be selected.

*Options with a fee may take time to prepare. Please call to confirm.

Unless you buy an “unlimited” plan set or a multi-use license you may only build one home from a set of plans. Please call to verify if you intend to build more than once. Plan licenses are non-transferable and cannot be resold.

We offer a 90% credit when you upgrade from a set, that is not for construction, to a 5-Copy set (or greater).

Other Plans By This Designer

See all plans by
this designer

Need help? Let our friendly experts help you find the perfect plan!

Contact us now for a free consultation.