Don't lose your saved plans! 
Create an account to access your saves whenever you want. See our Terms & Conditions and Privacy Policy.
OR

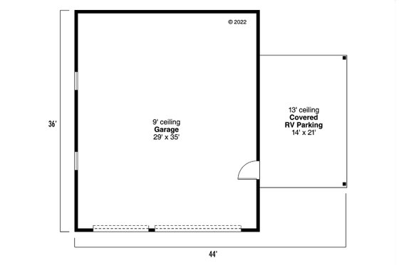
Traditional House Plan 124-1321 1080 Sq Ft, 0 Bed, 0 Bath, 1 Floor, 4 Garage

Key Specs
  • 0
    Beds
  • 0
    Baths
  • 1
    Floors
  • 4
    Garages
  • 1080
    Square Feet
This traditional garage plan can contain up to three cars. The smaller garage door is 9' wide and 8' wall, while the larger door is 14' wide and 8' tall. The covered area to the right offers RV parking with a 13' high ceiling.

Questions on this plan?

New to the process and looking for some help to kick things off? Let us know a bit about your plans and we’ll be happy to help.

Budget & Customization Tools

Modify icon
Customize this Plan
Tell us about your desired changes and we can prepare an estimate.
Cost to Build icon
Cost to Build Report
A personalized estimate based on your location, plan, & materials.
Cost to Build icon
Residential Construction Guide
This downloadable, 26-page guide is full of diagrams and details about plumbing, electrical, and more.

Full specs & Features

Basic Features

Bedrooms: 0
Baths: 0
Stories: 1
Garages: 4

Dimension

Depth: 36'
Height: 20' 1"
Width: 44'

Area

Total: 1080 sq/ft
Garage: 1080 sq/ft
Porch: 294 sq/ft
* Total Square Footage typically only includes conditioned space and does not include garages, porches, bonus rooms, or decks.

Ceiling

Main Ceiling: 9'

Roof

Primary Pitch: 8/12
Roof Framing: Truss
Roof Load: 25

Exterior Wall Framing

Exterior Wall Finish: Siding
Framing: 2x6

Garage Features

Front Entry Garage
RV Garage

What's Included

Please note, if ordering a PDF Print Set, it is not-modifiable. The CAD set is best for making local modifications. The "5 set + PDF" combo contains a non-modifiable PDF Print Set.

Each plan set is drawn at 1/4"=1' scale and includes the following drawings:
  • Artist's Rendering: An artist's drawing of the home, usually viewed from the front, and general construction notes.
  • Elevations: Shows the front, sides, and rear, including exterior materials, trim sizes, roof pitches, etc.
  • Main Floor Plan: Shows placement and dimensions of walls, doors, & windows. Includes the location of appliances, plumbing fixtures, beams, ceiling heights, etc.
  • Second Floor Plan (if any): Shows the second floor in the same detail as the main floor. Includes second floor framing and details.
  • Foundation Plan: Shows the location of all concrete footings, floor beams, first floor framing, and foundation details. If there is a basement, a basement plan is included which shows all basement details. Foundation types vary; please call to confirm the foundation type of the plan you are interested in.
  • Floor Framing Plan (if any): Shows location and spacing of floor joists and supporting walls or beams.
  • Roof Framing Plan: Shows roof outlines, conventional framing/trusses, beams, roof framing details, etc. Specific details such as fireplaces, stairways, decks, etc. Details are drawn at 1/2" = 1' scale, and appear as needed throughout the prints.
  • Section: Shows a cross-section of the home. Shows support members, exterior and interior materials, insulation, and foundation.
  • Electrical Plan: A schematic layout of all lighting, switches and electrical outlets.

FAQs

Are designs on Houseplans ready to submit to my building department for permitting?

It depends on where you're building. Our plans contain enough information for a professional builder to construct your home, but your local government may require additional information before permitting. We strongly advise that you talk with your builder before you get started. If you are building for yourself, we recommend visiting your local building department to start your diligence. Read more here.

Can I make changes to a plan?

Absolutely! Our modification service allows you to customize almost anything - whether it's adding an extra garage bay, adjusting square footage, changing the roof pitch, or more, the plan modification service is a great value and can be completed quickly. Additionally, if you purchase an electronic plan set (PDF or CAD), you may have the option to make changes locally. CAD files offer the most flexibility for custom edits. Just let us know what you're thinking, and we’ll provide an estimate and timeframe to get started. Learn more here.

How much does a house cost to build?

Find out! Build costs vary based on the size of the home, materials used, and local rates for goods and labor. Our Cost to Build report is a great way to get some basic costs dialed in before you order your plans. Just plug in your postal code, select your desired construction quality, and we'll calculate for you.

Learn more about Cost to Build reports here.

Can I trust Houseplans?

Founded in 2004, Houseplans works with hundreds of architects and designers to offer their plans at a fraction of the price of custom design. Houseplans has an "Excellent" rating on TrustPilot.

Read more about us here.

Does Houseplans offer live support?

Yes, Houseplans has a dedicated team of house plan advisors with decades of experience between them. You can reach them by calling, emailing, filling out a form on the page of a plan that you like, or going to the Contact Us page. We're available to talk every day, even on weekends.

Builder Advantage Home

Builder Advantage Program

Are you a Pro Builder? Join the club, save 5% on your first order, get exclusive discounts, and more.

Learn More

You may also like

Save Plan
Traditional

Plan 20-2346

$1305.00

beds4

bd

baths2.5

ba

stories2

stories

square feet2257

sq ft

View Related Collections
Shop All Styles

Recently viewed plans

Exterior - Front Elevation for Traditional House Plan #124-1321, 0 bath
Save Plan

Plan 124-1321

$320.00

beds0

bd

baths0

ba

stories1

story

square feet1080

sq ft