Don't lose your saved plans! 
Create an account to access your saves whenever you want. See our Terms & Conditions and Privacy Policy.
OR

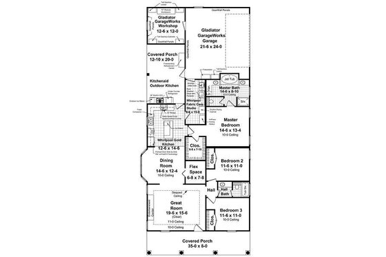
Southern House Plan 21-229 1733 Sq Ft, 3 Bed, 2 Bath, 1 Floor, 2 Garage

Key Specs
  • 3
    Beds
  • 2
    Baths
  • 1
    Floors
  • 2
    Garages
  • 1733
    Square Feet
This home includes many of the most popular features normally only included in much larger homes. Enjoy the isolated master suite with oversized jet tub, separate shower, large walk-in closet, and dual lavatories. Utility room includes plenty of space for storing/folding clothing and other goods. Expansive great room features trayed ceiling, built-in entertainment center, and easy access to the dining room and kitchen. Enjoy the views during a relaxing evening on your front covered porch. The flex space provides an excellent option for inexpensively building that much needed home office, storage, or other family space. Large kitchen features popular raised bar for meals and conversations with family. A home that meets the needs of your busy family!

Questions on this plan?

New to the process and looking for some help to kick things off? Let us know a bit about your plans and we’ll be happy to help.

Budget & Customization Tools

Modify icon
Customize this Plan
Tell us about your desired changes and we can prepare an estimate.
Cost to Build icon
Cost to Build Report
A personalized estimate based on your location, plan, & materials.
Cost to Build icon
Residential Construction Guide
This downloadable, 26-page guide is full of diagrams and details about plumbing, electrical, and more.

Full specs & Features

Basic Features

Bedrooms: 3
Baths: 2
Stories: 1
Garages: 2

Dimension

Depth: 84'
Height: 22' 9"
Width: 37'

Area

Total: 1733 sq/ft
First Floor: 1733 sq/ft height 10'
Garage: 732 sq/ft
* Total Square Footage typically only includes conditioned space and does not include garages, porches, bonus rooms, or decks.

Ceiling

Main Ceiling: 10'

Roof

Primary Pitch: 8:12
Roof Type: Hip
Secondary Pitch: 12:12

Exterior Wall Framing

Exterior Wall Finish: Brick
Framing: 2"x4"

Kitchen Features

Eating Bar
Kitchen Island

Additional Room Features

Den Office Study Computer
Great Room Living Room
Mud Room
Storage Area
Workshop

Garage Features

Rear Garage
Side Entry Garage

Lot Characteristics

Suited For Corner Lot
Suited For Narrow Lot

Outdoor Spaces

Covered Front Porch
Covered Rear Porch

What's Included

Plans are typically drawn to ¼” scale or larger and include:
  • Cover Sheet: Color rendering or black and white image of the exterior
  • Foundation Plan(s): Drawn to 1/4" scale, this page shows all necessary notations and dimensions including support columns, walls and excavated and unexcavated areas.
  • Floor Plan(s): Detailed plans, drawn to 1/4" scale for each level showing room dimensions, wall partitions, windows, etc. as well as the location of electrical outlets and switches.
  • Exterior Elevations: A blueprint picture of all four sides showing exterior materials and measurements.
  • Interior Elevations: Where applicable, each house plan set includes relevant interior elevations, including cabinets, cabinet details, columns and walls with unique conditions.
  • Overhead Roof Plan(s): Overhead view of roof.
  • Cross Section(s): A vertical cutaway view of the house from roof to foundation showing details of framing, construction, flooring and roofing.
  • Electrical Plan(s): Lighting, outlets, switches, detectors, etc.
  • Kitchen Cabinet Elevation(s): Scaled drawings of interior cabinets.
  • Construction Notes and Detail(s): Shows basic parts and assemblies recommended for the home so the builder can see how things come together.
  • Framing Detail(s): Ceiling joist size and spacing and layouts. If included, the framing layout is intended to be a suggested layout only. Design loads and weather conditions vary by region. As a result the size, spacing, and layout of all structural elements in this home design may need approval by a structural engineer or code official based on your specific site location.
  • Wall Section(s): Exterior wall and roof sections and specialty details.

FAQs

Are designs on Houseplans ready to submit to my building department for permitting?

It depends on where you're building. Our plans contain enough information for a professional builder to construct your home, but your local government may require additional information before permitting. We strongly advise that you talk with your builder before you get started. If you are building for yourself, we recommend visiting your local building department to start your diligence. Read more here.

Can I make changes to a plan?

Absolutely! Our modification service allows you to customize almost anything - whether it's adding an extra garage bay, adjusting square footage, changing the roof pitch, or more, the plan modification service is a great value and can be completed quickly. Additionally, if you purchase an electronic plan set (PDF or CAD), you may have the option to make changes locally. CAD files offer the most flexibility for custom edits. Just let us know what you're thinking, and we’ll provide an estimate and timeframe to get started. Learn more here.

How much does a house cost to build?

Find out! Build costs vary based on the size of the home, materials used, and local rates for goods and labor. Our Cost to Build report is a great way to get some basic costs dialed in before you order your plans. Just plug in your postal code, select your desired construction quality, and we'll calculate for you.

Learn more about Cost to Build reports here.

Can I trust Houseplans?

Founded in 2004, Houseplans works with hundreds of architects and designers to offer their plans at a fraction of the price of custom design. Houseplans has an "Excellent" rating on TrustPilot.

Read more about us here.

Does Houseplans offer live support?

Yes, Houseplans has a dedicated team of house plan advisors with decades of experience between them. You can reach them by calling, emailing, filling out a form on the page of a plan that you like, or going to the Contact Us page. We're available to talk every day, even on weekends.

Builder Advantage Home

Builder Advantage Program

Are you a Pro Builder? Join the club, save 5% on your first order, get exclusive discounts, and more.

Learn More

You may also like

Save Plan
Southern

Plan 44-222

$935.00

beds2

bd

baths1

ba

stories1

story

square feet890

sq ft

Save Plan
Colonial

Plan 20-1220

$1255.00

beds3

bd

baths2.5

ba

stories2

stories

square feet1699

sq ft

Recently viewed plans

Exterior - Front Elevation for Southern House Plan #21-229 - 3 bed, 2 bath
Save Plan

Plan 21-229

$1300.00

beds3

bd

baths2

ba

stories1

story

square feet1733

sq ft