Cottage Style House Plan - 1 Beds 1 Baths 213 Sq/Ft Plan #510-1 - Houseplans.com
Search
REGISTER LOGIN SAVED No Saved Plans CART  Cart Empty
Don't lose your saved plans! Create an account to access your saves whenever you want. See our Terms & Conditions and Privacy Policy.
OR
15% OFF FOR THE FIRST 25 CUSTOMERS
Photographs may show modified designs.
Home  >  Style  >  Cottage

Cottage House Plan 510-1

Key Specs


Plan Sq Ft

213
sq ft

Plan Bedrooms

1
Beds

Plan Bathrooms

1
Baths

Plan Floors

1
Floors

Plan Garages

0
Garages

Questions? Get Personalized Help
Select Plan Set Options
What's included?
Additional Construction Sets$34.00/each

Additional hard copies of the plan (can be ordered at the time of purchase and within 90 days of the purchase date).

$85.00
$33.15
$85.00
Mirror Reversed Sets$0.00

Printed sets showing plan in reverse, text and dimensions will be backwards.

Subtotal
NOW $2125.00
You save $375.00
(15% savings)
Sale ends soon!
Best Price Guaranteed

Or order by phone: 1-800-913-2350
Questions? Get Personalized Help
 

 
Hours:
Ready for Your Call 7 Days a Week
Every Day 7 am - 8:30 pm Eastern

See Terms & Conditions and Privacy Policy.

Thanks for your question.

We will be in touch shortly.

Wow!
Cost to Build Reports
$1.99 with Code
CTB2026 (Limit 1)
Our Cost to Build Report gives you a personalized estimate for building your home, based on your location, plan, and materials.

Residential Construction Guide

Learn Building Basics

This downloadable, 26-page guide is full of diagrams and details about plumbing, electrical, and more.

Key Specs


Plan Sq Ft

213
sq ft

Plan Bedrooms

1
Beds

Plan Bathrooms

1
Baths

Plan Floors

1
Floors

Plan Garages

0
Garages

Plan Description


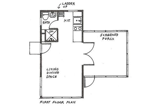
Plan 510-1. Tiny Panelized Cottage This modular micro cottage by architect Lester Walker can be built off-site. It's designed as a starter home, country cabin, or guest house for the backyard. The screen porch functions as a summer living room. Some panels are interchangeable, and rigid insulation can be added. For more tiny house ideas see Lester Walker's fascinating book: Tiny Tiny Houses: Or How To Get Away From It All (Overlook Press).

This plan can be customized!

Tell us about your desired changes so we can prepare an estimate for the design service. Click the button to submit your request for pricing, or call 1-800-913-2350.

Floor Plans


Floor Plan - Main Floor

Reverse
houseplans LOGO

BUILDER Advantage Program

PRO BUILDERS

Join the club and save 5% on your first order.
PLUS download exclusive discounts and more.

LEARN MORE

Floor Plan - Upper Floor

Reverse

Floor Plan - Other Floor

Reverse

Full Specs & Features


Basic Features

Bedrooms : 1
Baths : 1
Stories: 1
Garages: 0

Dimension

Depth : 20'
Height : 17'
Width : 21'

Area

Total : 213 sq/ft
Main Floor : 213 sq/ft
Porch : 100 sq/ft
* Total Square Footage typically only includes conditioned space and does not include garages, porches, bonus rooms, or decks.

Ceiling

Main Ceiling : 7'

Roof

Primary Pitch : 18:12

Exterior Wall Framing

Framing : 2"x4"

Additional Room Features

Loft

Outdoor Spaces

Balcony

What's included in this plan set


See a sample plan set

All plans are drawn at ¼” scale or larger and include :

  • Foundation Plan: This page shows all necessary notations and dimensions including support columns, walls, and excavated/unexcavated areas.
  • Exterior Elevations: Views of the home from all four sides showing exterior materials and measurements.
  • Floor Plan(s): Detailed plans for each level showing room dimensions, wall partitions, windows and doors, etc.
  • Cross Section: A slice of the home from roof to foundation, showing important details like stairs and wall construction.
  • Overhead Roof Plan(s): A view of the home from above showing roof pitch, peaks, valleys, and other details.
  • Construction Notes and Details: Shows the builder how things come together, like walls, the chimney, insulation, and more.
* See important information before purchasing

Pricing


Plan Options

5 Copy Set

$2125.00
5 printed plan sets mailed to you.

PDF Set

Best Value!
$2125.00
PDF plan sets are best for fast electronic delivery and inexpensive local printing.

Foundation Options

Pier

$0.00
Ideal for lot conditions where the home needs to be off the ground. A pier foundation consists of wood posts or concrete piers connected by beams to support the home. Some lots may require drilling deep into bedrock to support the posts.

*Options with a fee may take time to prepare. Please call to confirm.

Additional Options

Additional Construction Sets

$34.00
Additional hard copies of the plan (can be ordered at the time of purchase and within 90 days of the purchase date).

Audio Video Design

$85.00
Receive an overlay sheet with suggested placement of audio and video components.

Construction Guide

$33.15
Educate yourself about basic building ideas with these four detailed diagrams that discuss electrical, plumbing, mechanical, and structural topics.

Lighting Design

$85.00
Receive an overlay sheet with suggested placement of lighting fixtures.

Mirror Reversed Sets

$0.00
A mirror-reversed set is a printed copy of your house, resulting in the same image you would see if you held the drawing up to a mirror. Everything, including the text, is backward in relation to the original design. These kinds of drawing are typically used to reorient an original plan more advantageously on a site, either because the homeowner prefers it that way or because of limitations of the site itself. Note: Mirror reverse sets are only available with a 5 copy or 8 copy set. With a Reproducible, PDF, or CAD set, you can print mirrored copies locally. In addition: 5 Copy set selected, should only allow 4 mirrored sets to be selected. 8 Copy set selected, should only allow 7 mirrored sets to be selected.

*Options with a fee may take time to prepare. Please call to confirm.

Unless you buy an “unlimited” plan set or a multi-use license you may only build one home from a set of plans. Please call to verify if you intend to build more than once. Plan licenses are non-transferable and cannot be resold.

Meet the Designer

Lester Walker

Lester Walker - Houseplans.com
“Creating a home is a multi-faceted experience that borrows from the past, studies the present, and imagines the future. If owner, architect, and builder remain open minded and resilient during the design and construction process, the result will be personal, comfortable, and exciting.” Les Walker has been practicing architecture as an art form for nearly 30 years in the Hudson Valley. Prior to that, he was a founding member of Studio Works in Manhattan, which won several national and New York City awards for innovative design. Since moving to Woodstock, his work has been primarily influenced by the simple vernacular architecture of the region. Les has an abiding interest in the graphic arts and loves to draw. He is the author of eight books related to architecture; every book includes numerous explanatory drawings integral to the subject matter. The two most popular of these, Tiny Tiny Houses: Or How To Get Away From It All -- and American Shelter: An Illustrated Encyclopedia of the Amercian Home -- have sold over 100,000 copies. He employs his draings to communicate design ideas, both in his books and his architectural practice. He received a Masters Degree in Architecture from Yale University and a Bachelors Degree in Architecture from the Pennsylvania State University. Les has been published in magazines and newspapers worldwide and lectured at several American colleges and universities. He was an adjunct Professor of Architecture at the City College of New York for 20 years and has served on the Board of Directors of the Woodstock (NY) Byrdcliffe Guild for over 25 years where his primary interest is the preservation of the historic Byrdcliffe Arts Colony buildings.

Need help? Let our friendly experts help you find the perfect plan!

Contact us now for a free consultation.