Don't lose your saved plans! 
Create an account to access your saves whenever you want. See our Terms & Conditions and Privacy Policy.
OR

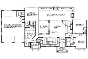
Craftsman House Plan 935-12 2497 Sq Ft, 3 Bed, 2 Bath, 1 Floor, 3 Garage

Key Specs
  • 3
    Beds
  • 2
    Baths
  • 1
    Floors
  • 3
    Garages
  • 2497
    Square Feet
This craftsman design floor plan is 2497 sq ft and has 3 bedrooms and 2 bathrooms.

Questions on this plan?

New to the process and looking for some help to kick things off? Let us know a bit about your plans and we’ll be happy to help.

Budget & Customization Tools

Modify icon
Customize this Plan
Tell us about your desired changes and we can prepare an estimate.
Cost to Build icon
Cost to Build Report
A personalized estimate based on your location, plan, & materials.
Cost to Build icon
Residential Construction Guide
This downloadable, 26-page guide is full of diagrams and details about plumbing, electrical, and more.

Full specs & Features

Basic Features

Bedrooms: 3
Baths: 2
Stories: 1
Garages: 3

Dimension

Depth: 51' 5"
Height: 19' 6"
Width: 99' 11"

Area

Total: 2497 sq/ft
Garage: 961 sq/ft
Main Floor: 2497 sq/ft
* Total Square Footage typically only includes conditioned space and does not include garages, porches, bonus rooms, or decks.

Ceiling

Ceiling Details: 12' ceiling in Living & Dining Rooms; beamed ceiling in Kitchen
Main Ceiling: 10'

Roof

Primary Pitch: 5/12
Roof Framing: Conventional
Roof Type: Metal
Secondary Pitch: 8/12

Exterior Wall Framing

Exterior Wall Finish: Stone/Siding
Framing: 2 x 4; 2 x 6

Bedroom Features

Main Floor Bedrooms
Main Floor Master Bedroom
Split Bedrooms
Walk In Closet

Kitchen Features

Kitchen Island
Walk In Pantry Cabinet Pantry

Additional Room Features

Den Office Study Computer
Great Room Living Room
Main Floor Laundry
Mud Room
Storage Area

Garage Features

Front Entry Garage
Rear Garage
Tandem Garage

Outdoor Spaces

Covered Front Porch
Covered Rear Porch

What's Included

  • Foundation Plan(s): Thoroughly noted and dimensioned plan showing all necessary footings, piers, columns, and foundation walls.
  • Floor Plan(s): Detailed plans for each level showing room names, dimensions, wall thicknesses, door and window sizes and locations, kitchen cabinet and appliance configuration, and bathroom plumbing fixture locations.
  • Exterior Elevations: Views of all four sides of the house showing exterior materials.
  • Interior Elevations: Detailed views of all cabinets, and other elements as required.
  • Overhead Roof Plan(s): A guide to the geometry of the roof, as well as pitch and overhang details.
  • Cross Section(s): A vertical cutaway view of the house from roof to foundation.
  • Electrical Plan(s): Plan for each level showing the location of lights, fans, electrical outlets, and switches, etc.
  • Construction Notes / Detail(s): Shows basic parts and assemblies recommended for the home so the builder can see how things come together.
  • Framing Detail(s): Ceiling framing: showing the size and layout of ceiling joists, beams, and headers, as well as the location of load bearing walls. Roof Framing: Plan showing size and layout of rafters, ridges, hips and valleys, as well as locations of necessary beams and brace points. If included, the framing layout is intended to be a suggested layout only. Design loads and weather conditions vary by region. As a result the size, spacing, and layout of all structural elements in this home design may need approval by a structural engineer or code official based on your specific site location.
  • Structural Information: Structural Notes and Details: Review details from the engineer. (Plans are not stamped or sealed. Engineer comments or specs are based on review of the plans at the time of design.) Important: design loads and weather conditions vary by region. As a result the size, spacing, and layout of all structural elements in this home design may need approval by a structural engineer or code official based on your specific site location.
Additional Build Licenses are available for 50% of the PDF plan price. Please call for details.

FAQs

Are designs on Houseplans ready to submit to my building department for permitting?

It depends on where you're building. Our plans contain enough information for a professional builder to construct your home, but your local government may require additional information before permitting. We strongly advise that you talk with your builder before you get started. If you are building for yourself, we recommend visiting your local building department to start your diligence. Read more here.

Can I make changes to a plan?

Absolutely! Our modification service allows you to customize almost anything - whether it's adding an extra garage bay, adjusting square footage, changing the roof pitch, or more, the plan modification service is a great value and can be completed quickly. Additionally, if you purchase an electronic plan set (PDF or CAD), you may have the option to make changes locally. CAD files offer the most flexibility for custom edits. Just let us know what you're thinking, and we’ll provide an estimate and timeframe to get started. Learn more here.

How much does a house cost to build?

Find out! Build costs vary based on the size of the home, materials used, and local rates for goods and labor. Our Cost to Build report is a great way to get some basic costs dialed in before you order your plans. Just plug in your postal code, select your desired construction quality, and we'll calculate for you.

Learn more about Cost to Build reports here.

Can I trust Houseplans?

Founded in 2004, Houseplans works with hundreds of architects and designers to offer their plans at a fraction of the price of custom design. Houseplans has an "Excellent" rating on TrustPilot.

Read more about us here.

Does Houseplans offer live support?

Yes, Houseplans has a dedicated team of house plan advisors with decades of experience between them. You can reach them by calling, emailing, filling out a form on the page of a plan that you like, or going to the Contact Us page. We're available to talk every day, even on weekends.

Builder Advantage Home

Builder Advantage Program

Are you a Pro Builder? Join the club, save 5% on your first order, get exclusive discounts, and more.

Learn More

You may also like

Save Plan
Craftsman

Plan 1064-302

$1250.00

beds3

bd

baths2.5

ba

stories1

story

square feet2489

sq ft

Save Plan
Ranch

Plan 44-274

$1120.00

beds3

bd

baths2

ba

stories1

story

square feet1500

sq ft

Save Plan
Country

Plan 427-1

$897.60

beds3

bd

baths2.5

ba

stories2

stories

square feet1908

sq ft

Recently viewed plans

Signature
Exterior - Front Elevation for Craftsman House Plan #935-12 - 3 bed, 2 bath
Save Plan

Plan 935-12

$1500.00

beds3

bd

baths2

ba

stories1

story

square feet2497

sq ft

Exterior - Front Elevation for Farmhouse House Plan #430-253 - 3 bed, 2 bath
Save Plan

Plan 430-253

$1345.00

beds3

bd

baths2

ba

stories1

story

square feet1493

sq ft

Exterior - Front Elevation for Farmhouse House Plan #430-329 - 3 bed, 2.5 bath
Save Plan

Plan 430-329

$1445.00

beds3

bd

baths2.5

ba

stories1

story

square feet2397

sq ft

Exterior - Front Elevation for Farmhouse House Plan #430-197 - 4 bed, 3.5 bath
Save Plan

Plan 430-197

$1645.00

beds4

bd

baths3.5

ba

stories1

story

square feet3076

sq ft

Exterior - Front Elevation for Traditional House Plan #932-508 - 3 bed, 2.5 bath
Save Plan

Plan 932-508

$1813.00

beds3

bd

baths2.5

ba

stories2

stories

square feet2120

sq ft