Farmhouse Style House Plan - 3 Beds 2.5 Baths 2596 Sq/Ft Plan #1098-1 - Houseplans.com
Search
REGISTER LOGIN SAVED No Saved Plans CART  Cart Empty
Don't lose your saved plans! Create an account to access your saves whenever you want. See our Terms & Conditions and Privacy Policy.
OR
FINAL HOURS: 20% OFF ENDS TONIGHT
Plan 1098-1
Photographs may show modified designs.
Home  >  Style  >  Farmhouse

Farmhouse House Plan 1098-1

Key Specs


Plan Sq Ft

2596
sq ft

Plan Bedrooms

3
Beds

Plan Bathrooms

2.5
Baths

Plan Floors

2
Floors

Plan Garages

3
Garages

Questions? Get Personalized Help
Select Plan Set Options
What's included?
$180.00
$280.00
$132.00
$31.20
$132.00
Subtotal
NOW $1196.00
You save $299.00
(20% savings)
Sale ends soon!
Best Price Guaranteed

Or order by phone: 1-800-913-2350
Questions? Get Personalized Help
 

 
Hours:
Ready for Your Call 7 Days a Week
Every Day 7 am - 8:30 pm Eastern

See Terms & Conditions and Privacy Policy.

Thanks for your question.

We will be in touch shortly.

Wow!
Cost to Build Reports
$1.99 with Code
CTB2026 (Limit 1)
Our Cost to Build Report gives you a personalized estimate for building your home, based on your location, plan, and materials.

Residential Construction Guide

Learn Building Basics

This downloadable, 26-page guide is full of diagrams and details about plumbing, electrical, and more.

Key Specs


Plan Sq Ft

2596
sq ft

Plan Bedrooms

3
Beds

Plan Bathrooms

2.5
Baths

Plan Floors

2
Floors

Plan Garages

3
Garages

Plan Description


This Modern Farmhouse design has 2596 sq ft with 3 bedrooms, 2.5 bathrooms and a 3 car garage.

This plan can be customized!

Tell us about your desired changes so we can prepare an estimate for the design service. Click the button to submit your request for pricing, or call 1-800-913-2350.

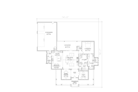
Floor Plans


Floor Plan - Main Floor

Reverse
houseplans LOGO

BUILDER Advantage Program

PRO BUILDERS

Join the club and save 5% on your first order.
PLUS download exclusive discounts and more.

LEARN MORE

Floor Plan - Upper Floor

Reverse

Full Specs & Features


Basic Features

Bedrooms : 3
Baths : 2.5
Stories: 2
Garages: 3

Dimension

Depth : 79' 1"
Height : 32' 7"
Width : 74' 5"

Area

Total : 2596 sq/ft
Garage : 855 sq/ft
Main Floor : 1966 sq/ft
Optional Bonus Room : 431 sq/ft
Patios : 318 sq/ft
Porch : 494 sq/ft
Upper Floor : 630 sq/ft
* Total Square Footage typically only includes conditioned space and does not include garages, porches, bonus rooms, or decks.

Ceiling

Ceiling Details : LIVING ROOM 8:12 VAULTED CLG
Garage Ceiling : 9'
Main Ceiling : 10'
Upper Ceiling Ft : 9'

Roof

Primary Pitch : 14:12
Roof Framing : STICK/TRUSS
Secondary Pitch : 10:12

Exterior Wall Framing

Exterior Wall Finish : BOARD & BATTEN SIDING, BRICK
Framing : STICK/TRUSS

Bedroom Features

Main Floor Master Bedroom
Upstairs Bedrooms
Walk In Closet

Kitchen Features

Breakfast Nook
Butler's Pantry
Eating Bar
Kitchen Island
Walk In Pantry Cabinet Pantry

Additional Room Features

Den Office Study Computer
Exercise Room
Family Room Keeping Room
Hobby Rec Room Game Room
Loft
Main Floor Laundry
Media Room
Mud Room
Play Flex Room
Storage Area
Unfinished Future Space

Garage Features

Side Entry Garage

Lot Characteristics

Suited For Corner Lot

Outdoor Spaces

Covered Front Porch
Covered Rear Porch
Screened Porch
Wrap Around Porch

More

Suited For Vacation Home

What's included in this plan set


See a sample plan set
  • Foundation Plan(s): Includes dimensioned foundation plan with footing details.
  • Floor Plan(s): Shows a window and door schedule and placements, dimensions of interior and exterior spaces.
  • Exterior Elevations: Four exterior views of the residence with other miscellaneous details and/or renderings of the house.
  • Overhead Roof Plan(s): Birds eye view showing ridges, valleys and roof pitch.
  • Cross Section(s): Section through home displaying necessary information about framing and other miscellaneous data.
  • Electrical Plan(s): Displays all lighting fixtures, outlets and other necessary electrical items.
  • Construction Notes / Detail(s): Special notes pertaining to the build of the residence, assembly information, any specific code notes.
  • Wall Section(s): Shows the elements needed to construct the walls, and an interior finish schedule.
  • Door / Window Schedule(s): A list of all the doors and windows needed to construct the house. This can help with estimating materials costs.
* See important information before purchasing

Pricing


Plan Options

PDF Set

Best Value!
$1196.00
PDF plan sets are best for fast electronic delivery and inexpensive local printing.

5 Copy and PDF Set

$1396.00
5 printed plan sets mailed to you plus PDF plan sets are best for fast electronic delivery and inexpensive local printing.

PDF Unlimited Build

$1676.00
PDF plan sets are best for fast electronic delivery and inexpensive local printing.

CAD and PDF Set Unlimited Build

$1996.00
For use by design professionals to make substantial changes to your house plan and inexpensive local printing plus PDF plan sets are best for fast electronic delivery and inexpensive local printing.

Foundation Options

Slab

$0.00
Ideal for level lot, single layer concrete poured directly on grade.

Basement

$240.00
Ideal for level lot, lower level of home partially or fully underground.

Crawlspace

$240.00
Ideal for semi-sloped or level lot, home can be built off of grade, typically 18” - 48”.

*Options with a fee may take time to prepare. Please call to confirm.

Framing Options

Wood 2x4

$0.00
Wood 2x4 Exterior Walls

Wood 2x6

$236.00
Wood 2x6 Exterior Walls

*Options with a fee may take time to prepare. Please call to confirm.

Additional Options

Right-Reading Reverse

$180.00
Choose this option to reverse your plans and to have the text and dimensions readable.

Additional Use License

$280.00
Allows you to build one more home for each additional license purchased.

Audio Video Design

$132.00
Receive an overlay sheet with suggested placement of audio and video components.

Construction Guide

$31.20
Educate yourself about basic building ideas with these four detailed diagrams that discuss electrical, plumbing, mechanical, and structural topics.

Lighting Design

$132.00
Receive an overlay sheet with suggested placement of lighting fixtures.

*Options with a fee may take time to prepare. Please call to confirm.

Unless you buy an “unlimited” plan set or a multi-use license you may only build one home from a set of plans. Please call to verify if you intend to build more than once. Plan licenses are non-transferable and cannot be resold.

Other Plans By This Designer

See all plans by
this designer

Need help? Let our friendly experts help you find the perfect plan!

Contact us now for a free consultation.