Traditional Style House Plan - 2 Beds 2 Baths 2718 Sq/Ft Plan #70-746 - Houseplans.com
Search
REGISTER LOGIN SAVED No Saved Plans CART  Cart Empty
Don't lose your saved plans! Create an account to access your saves whenever you want. See our Terms & Conditions and Privacy Policy.
OR
15% OFF THIS PLAN TODAY
Plan 70-746
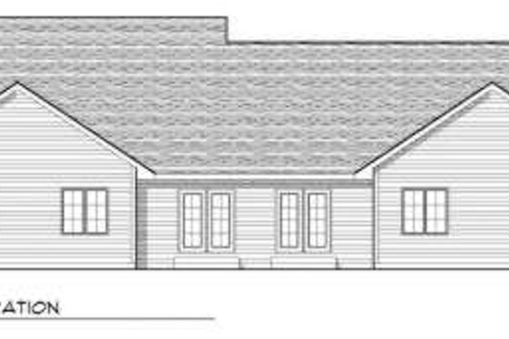
Photographs may show modified designs.
Home  >  Style  >  Traditional

Traditional House Plan 70-746

Key Specs


Plan Sq Ft

2718
sq ft

Plan Bedrooms

2
Beds

Plan Bathrooms

2
Baths

Plan Floors

1
Floors

Plan Garages

2
Garages

Questions? Get Personalized Help
Select Plan Set Options
What's included?
$335.75
Additional Construction Sets$68.00/each

Additional hard copies of the plan (can be ordered at the time of purchase and within 90 days of the purchase date).

$140.25
$250.75
$33.15
$140.25
Mirror Reversed Sets$63.75

Printed sets showing plan in reverse, text and dimensions will be backwards.

Subtotal
NOW $981.75
You save $173.25
(15% savings)
Sale ends soon!
Best Price Guaranteed

Or order by phone: 1-800-913-2350
Questions? Get Personalized Help
 

 
Hours:
Ready for Your Call 7 Days a Week
Every Day 7 am - 8:30 pm Eastern

See Terms & Conditions and Privacy Policy.

Thanks for your question.

We will be in touch shortly.

Wow!
Cost to Build Reports
$1.99 with Code
CTBFALL (Limit 1)
Our Cost to Build Report gives you a personalized estimate for building your home, based on your location, plan, and materials.

Residential Construction Guide

Learn Building Basics

This downloadable, 26-page guide is full of diagrams and details about plumbing, electrical, and more.

Key Specs


Plan Sq Ft

2718
sq ft

Plan Bedrooms

2
Beds

Plan Bathrooms

2
Baths

Plan Floors

1
Floors

Plan Garages

2
Garages

Plan Description


This traditional design floor plan is 2718 sq ft and has 2 bedrooms and 2 bathrooms.

This plan can be customized!

Tell us about your desired changes so we can prepare an estimate for the design service. Click the button to submit your request for pricing, or call 1-800-913-2350.

Floor Plans


Floor Plan - Main Floor

Reverse
houseplans LOGO

BUILDER Advantage Program

PRO BUILDERS

Join the club and save 5% on your first order.
PLUS download exclusive discounts and more.

LEARN MORE

Full Specs & Features


Basic Features

Bedrooms : 2
Baths : 2
Stories: 1
Garages: 2

Dimension

Depth : 59' 4"
Height : 26'
Width : 76'

Area

Total : 2718 sq/ft
First Floor: 1359 sq/ft height 9'
First Floor: 1359 sq/ft
Garage: 520 sq/ft
* Total Square Footage typically only includes conditioned space and does not include garages, porches, bonus rooms, or decks.

Ceiling

Main Ceiling : 8'

Roof

Primary Pitch : 8:12
Roof Framing : Truss
Roof Type : Shingle

Exterior Wall Framing

Exterior Wall Finish : Siding/Stone
Framing : 2"x6"

Bedroom Features

Walk In Closet

Kitchen Features

Eating Bar

Additional Room Features

Den Office Study Computer
Great Room Living Room
Storage Area

Lot Characteristics

Suited For View Lot

Rooms

Bathroom 2:

42 sq/ft width 5' x depth 8' 6"

Bathroom 2:

42 sq/ft width 5' x depth 8' 6"

Bedroom 2:

156 sq/ft width 14' x depth 11' 2"

Bedroom 2:

156 sq/ft width 14' x depth 11' 2"

Den/Office or Bedroom 1:

103 sq/ft width 10' x depth 10' 4"

Den/Office or Bedroom 1:

103 sq/ft width 10' x depth 10' 4"

Dining Room:

144 sq/ft width 14' 8" x depth 9' 10"

Dining Room:

144 sq/ft width 14' 8" x depth 9' 10"

Garage:

497 sq/ft width 21' 5" x depth 23' 3"

Garage:

497 sq/ft width 21' 5" x depth 23' 3"

Kitchen:

108 sq/ft width 9' 10" x depth 11'

Kitchen:

108 sq/ft width 9' 10" x depth 11'

Laundry Room:

40 sq/ft width 5' 4" x depth 7' 7"

Laundry Room:

40 sq/ft width 5' 4" x depth 7' 7"

Living Room:

177 sq/ft width 12' 6" x depth 14' 2"

Living Room:

177 sq/ft width 12' 6" x depth 14' 2"

Master Bathroom:

38 sq/ft width 7' 8" x depth 5'

Master Bathroom:

38 sq/ft width 7' 8" x depth 5'

Master Bedroom:

191 sq/ft width 14' x depth 13' 8"

Master Bedroom:

191 sq/ft width 14' x depth 13' 8"

Master Closet:

30 sq/ft width 6' x depth 5'

Master Closet:

30 sq/ft width 6' x depth 5'

What's included in this plan set


See a sample plan set
Plans are typically drawn to ¼” scale and include:
  • Cover Sheet: Cover sheet with front rendering
  • Foundation Plan(s): Foundation plans at 1/4" = 1' scale
  • Floor Plan(s): Floor plans at 1/4" = 1' scale
  • Exterior Elevations: Exterior elevations of all four views, front at 1/4" = 1' scale, rear and sides vary from 1/8" to 1/4" = 1' scale
  • Overhead Roof Plan(s): A view of the home from above showing roof pitch, peaks, valleys, and other details.
  • Cross Section(s): A slice of the home from roof to foundation, showing relationships between floors, roof, and foundation.
  • Building Section(s): Building sections and details as required to construct the individual design
  • Electrical Plan(s): Schematic electrical plans with suggested switch, outlet, and light fixture locations
  • Kitchen Cabinet Elevation(s): Interior elevation of cabinets at 1/4" = 1' scale
  • Construction Notes / Detail(s): Shows basic parts and assemblies recommended for the home so the builder can see how things come together.
  • Specification(s): General specification design notes
Please note, if you are building in the state of Wisconsin, please give us a call before placing your order.
* See important information before purchasing

Pricing


Plan Options

5 Copy Set

$981.75
5 printed plan sets mailed to you.

8 Copy Set

$1037.85
8 printed plan sets mailed to you.

PDF Set

Best Value!
$1244.40
PDF plan sets are best for fast electronic delivery and inexpensive local printing.

Reproducible Set

$1244.40
For inexpensive local printing / making minor adjustments by hand. 1 printed set, typically on Bond paper.

CAD Set

$1978.80
For use by design professionals to make substantial changes to your house plan and inexpensive local printing.

Foundation Options

Basement

$0.00
Ideal for level lot, lower level of home partially or fully underground.

Crawlspace

$552.50
Ideal for semi-sloped or level lot, home can be built off of grade, typically 18” - 48”.

Slab

$552.50
Ideal for level lot, single layer concrete poured directly on grade.

*Options with a fee may take time to prepare. Please call to confirm.

Additional Options

Right-Reading Reverse

$335.75
Choose this option to reverse your plans and to have the text and dimensions readable.

Additional Construction Sets

$68.00
Additional hard copies of the plan (can be ordered at the time of purchase and within 90 days of the purchase date).

Audio Video Design

$140.25
Receive an overlay sheet with suggested placement of audio and video components.

Comprehensive Material List

$250.75
A complete list of building supplies needed to construct the infrastructure of your new house, plus an overlay of materials shown directly on your PDF (foundation to rooftop with interior and exterior materials), and a detailed, itemized door and window schedule showing all sizes and types. Please allow 5-7 Business Days for completion. Note, the Comprehensive list is only available with a PDF purchase. The Comprehensive list can be ordered no matter what additional plan options you have selected.

Construction Guide

$33.15
Educate yourself about basic building ideas with these four detailed diagrams that discuss electrical, plumbing, mechanical, and structural topics.

Lighting Design

$140.25
Receive an overlay sheet with suggested placement of lighting fixtures.

Mirror Reversed Sets

$63.75
A mirror-reversed set is a printed copy of your house, resulting in the same image you would see if you held the drawing up to a mirror. Everything, including the text, is backward in relation to the original design. These kinds of drawing are typically used to reorient an original plan more advantageously on a site, either because the homeowner prefers it that way or because of limitations of the site itself. Note: Mirror reverse sets are only available with a 5 copy or 8 copy set. With a Reproducible, PDF, or CAD set, you can print mirrored copies locally. In addition: 5 Copy set selected, should only allow 4 mirrored sets to be selected. 8 Copy set selected, should only allow 7 mirrored sets to be selected.

*Options with a fee may take time to prepare. Please call to confirm.

Unless you buy an “unlimited” plan set or a multi-use license you may only build one home from a set of plans. Please call to verify if you intend to build more than once. Plan licenses are non-transferable and cannot be resold.

Other Plans By This Designer

See all plans by
this designer

Browse Similar Plans

Need help? Let our friendly experts help you find the perfect plan!

Contact us now for a free consultation.