Don't lose your saved plans! 
Create an account to access your saves whenever you want. See our Terms & Conditions and Privacy Policy.
OR

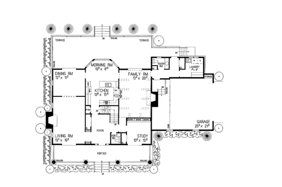
Classical House Plan 72-845 2928 Sq Ft, 4 Bed, 2 Bath, 2 Floor, 2 Garage

3D icon
Get Personalized Help
Key Specs
  • 4
    Beds
  • 2
    Baths
  • 2
    Floors
  • 2
    Garages
  • 2928
    Square Feet
This Southern Colonial adaptation boasts a floor plan that caters to the needs of today's families. The entrance hall is flanked by formal and informal living areas: to the left, a spacious living room and connecting dining room, and to the right, a cozy study and family room. The sleeping arrangements include three family bedrooms and a master suite with a deluxe bath.



Questions on this plan?

New to the process and looking for some help to kick things off? Let us know a bit about your plans and we’ll be happy to help.

Budget & Customization Tools

Modify icon
Customize this Plan
Tell us about your desired changes and we can prepare an estimate.
Cost to Build icon
Cost to Build Report
A personalized estimate based on your location, plan, & materials. / FAQ
Cost to Build icon
Residential Construction Guide
This downloadable, 26-page guide is full of diagrams and details about plumbing, electrical, and more.

Full specs & Features

Basic Features

Bedrooms: 4
Baths: 2
Stories: 2
Garages: 2

Dimension

Depth: 54' 5"
Height: 34'
Width: 70' 6"

Area

Total: 2928 sq/ft
First Floor: 1584 sq/ft height 8'
Second Floor: 1344 sq/ft
* Total Square Footage typically only includes conditioned space and does not include garages, porches, bonus rooms, or decks.

Roof

Primary Pitch: 7:12
Roof Framing: Truss
Roof Type: Shingle

Exterior Wall Framing

Exterior Wall Finish: Siding
Framing: Wood - 2x6

Bedroom Features

Fireplace
Formal Dining Room
Formal Living Room / Parlor
Split Bedrooms

Kitchen Features

Breakfast Nook
Kitchenette Wet Bar

Additional Room Features

Den Office Study Computer
Family Room Keeping Room
Loft
Main Floor Laundry

Garage Features

Side Entry Garage

Outdoor Spaces

Balcony
Courtyard
Covered Front Porch
Covered Rear Porch

Rooms

Den/Office or Bedroom 1:

106 sq/ft width 10' 8" x depth 10'

Dining Room:

146 sq/ft width 11' x depth 13' 4"

Gathering Room:

266 sq/ft width 20' x depth 13' 4"

Living Room:

262 sq/ft width 19' 8" x depth 13' 4"

Master Bedroom:

259 sq/ft width 19' 6" x depth 13' 4"

What's Included

All plans are drawn at ¼” scale or larger and include :

  • Foundation Plan: This page shows all necessary notations and dimensions including support columns, walls, and excavated/unexcavated areas.
  • Exterior Elevations: Views of the home from all four sides showing exterior materials and measurements.
  • Floor Plan(s): Detailed plans for each level showing room dimensions, wall partitions, windows and doors, etc.
  • Cross Section: A slice of the home from roof to foundation, showing important details like stairs and wall construction.
  • Overhead Roof Plan(s): A view of the home from above showing roof pitch, peaks, valleys, and other details.
  • Construction Notes and Details: Shows the builder how things come together, like walls, the chimney, insulation, and more.

FAQs

Are designs on Houseplans ready to submit to my building department for permitting?

It depends on where you're building. Our plans contain enough information for a professional builder to construct your home, but your local government may require additional information before permitting. We strongly advise that you talk with your builder before you get started. If you are building for yourself, we recommend visiting your local building department to start your diligence. Read more here.

Can I make changes to a plan?

Absolutely! Our modification service allows you to customize almost anything - whether it's adding an extra garage bay, adjusting square footage, changing the roof pitch, or more, the plan modification service is a great value and can be completed quickly. Additionally, if you purchase an electronic plan set (PDF or CAD), you may have the option to make changes locally. CAD files offer the most flexibility for custom edits. Just let us know what you're thinking, and we’ll provide an estimate and timeframe to get started. Learn more here.

How much does a house cost to build?

Find out! Build costs vary based on the size of the home, materials used, and local rates for goods and labor. Our Cost to Build report is a great way to get some basic costs dialed in before you order your plans. Just plug in your postal code, select your desired construction quality, and we'll calculate for you.

Learn more about Cost to Build reports here.

Can I trust Houseplans?

Founded in 2004, Houseplans works with hundreds of architects and designers to offer their plans at a fraction of the price of custom design. Houseplans has an "Excellent" rating on TrustPilot.

Read more about us here.

Does Houseplans offer live support?

Yes, Houseplans has a dedicated team of house plan advisors with decades of experience between them. You can reach them by calling, emailing, filling out a form on the page of a plan that you like, or going to the Contact Us page. We're available to talk every day, even on weekends.

Builder Advantage Home

Builder Advantage Program

Are you a Pro Builder? Join the club, save 5% on your first order, get exclusive discounts, and more.

Learn More

You may also like

Classical

Plan 20-2173

$7640.00

beds6

bd

baths6.5

ba

stories2

stories

square feet9360

sq ft

Colonial

Plan 930-512

$3954.00

beds4

bd

baths4.5

ba

stories2

stories

square feet4943

sq ft