Mediterranean Style House Plan - 5 Beds 3 Baths 3090 Sq/Ft Plan #1058-66 - Houseplans.com
Search
REGISTER LOGIN SAVED No Saved Plans CART  Cart Empty
Don't lose your saved plans! Create an account to access your saves whenever you want. See our Terms & Conditions and Privacy Policy.
OR
Plan 1058-66
Photographs may show modified designs.
Home  >  Style  >  Mediterranean

Mediterranean House Plan 1058-66

Key Specs


Plan Sq Ft

3090
sq ft

Plan Bedrooms

5
Beds

Plan Bathrooms

3
Baths

Plan Floors

2
Floors

Plan Garages

2
Garages

Questions? Get Personalized Help
Select Plan Set Options
What's included?
$300.00
Additional Construction Sets$50.00/each

Additional hard copies of the plan (can be ordered at the time of purchase and within 90 days of the purchase date).

$1750.00
$100.00
$39.00
$200.00
Subtotal
$3100.00
Best Price Guaranteed

Or order by phone: 1-800-913-2350
Questions? Get Personalized Help
 

 
Hours:
Ready for Your Call 7 Days a Week
Every Day 7 am - 8:30 pm Eastern

See Terms & Conditions and Privacy Policy.

Thanks for your question.

We will be in touch shortly.

Wow!
Cost to Build Reports
$1.99 with Code
CTBFALL (Limit 1)
Our Cost to Build Report gives you a personalized estimate for building your home, based on your location, plan, and materials.

Residential Construction Guide

Learn Building Basics

This downloadable, 26-page guide is full of diagrams and details about plumbing, electrical, and more.

Key Specs


Plan Sq Ft

3090
sq ft

Plan Bedrooms

5
Beds

Plan Bathrooms

3
Baths

Plan Floors

2
Floors

Plan Garages

2
Garages

Plan Description


This mediterranean design floor plan is 3090 sq ft and has 5 bedrooms and 3 bathrooms.

This plan can be customized!

Tell us about your desired changes so we can prepare an estimate for the design service. Click the button to submit your request for pricing, or call 1-800-913-2350.

Floor Plans


Floor Plan - Main Floor

Reverse
houseplans LOGO

BUILDER Advantage Program

PRO BUILDERS

Join the club and save 5% on your first order.
PLUS download exclusive discounts and more.

LEARN MORE

Floor Plan - Upper Floor

Reverse

Full Specs & Features


Basic Features

Bedrooms : 5
Baths : 3
Stories: 2
Garages: 2

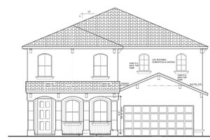
Dimension

Depth : 62' 4"
Height : 28' 6"
Width : 40'

Area

Total : 3090 sq/ft
First Floor: 1600 sq/ft height 9' 4"
Garage: 425 sq/ft height 9' 4"
Second Floor: 1490 sq/ft height 9'
* Total Square Footage typically only includes conditioned space and does not include garages, porches, bonus rooms, or decks.

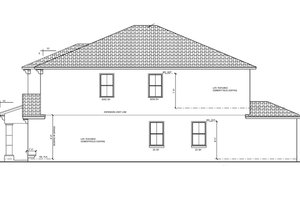
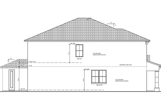
Roof

Primary Pitch : 5:12
Roof Framing : Truss
Roof Type : Clay Tile

Exterior Wall Framing

Exterior Wall Finish : Stucco
Framing : Block (1st Story)/ Wood – 2x4 (2nd Story)

Bedroom Features

2 Master Suites
Formal Dining Room
Upstairs Master Bedrooms
Walk In Closet

Kitchen Features

Breakfast Nook
Kitchen Island

Additional Room Features

Family Room Keeping Room
Main Floor Laundry
Open Floor Plan

Garage Features

Front Entry Garage

Outdoor Spaces

Courtyard
Covered Front Porch

More

Jack & Jill Bath

Rooms

Bedroom 2:

width 11' 6" x depth 18' 8"

Bedroom 3:

width 14' 8" x depth 12' 10"

Bedroom 4:

width 13' 4" x depth 12' 10"

Bedroom 5:

width 13' x depth 15' 8"

Covered Entry Porch:

103 sq/ft

Dining Room:

width 12' x depth 11' 4"

Family Room:

width 12' 4" x depth 10'

Garage:

425 sq/ft width 18' 8" x depth 20' 3"

Living Room:

width 14' 9" x depth 17' 4"

Master Bedroom:

width 19' x depth 18' 6"

Nook:

width 12' x depth 9' 4"

Rear Patio:

width 25' x depth 10'

What's included in this plan set


See a sample plan set

All plans are drawn at ¼” scale or larger and include :

  • Foundation Plan: This page shows all necessary notations and dimensions including support columns, walls, and excavated/unexcavated areas.
  • Exterior Elevations: Views of the home from all four sides showing exterior materials and measurements.
  • Floor Plan(s): Detailed plans for each level showing room dimensions, wall partitions, windows and doors, etc.
  • Cross Section: A slice of the home from roof to foundation, showing important details like stairs and wall construction.
  • Overhead Roof Plan(s): A view of the home from above showing roof pitch, peaks, valleys, and other details.
  • Construction Notes and Details: Shows the builder how things come together, like walls, the chimney, insulation, and more.
* See important information before purchasing

Pricing


Plan Options

5 Copy Set

$3100.00
5 printed plan sets mailed to you.

CAD Set

$3500.00
For use by design professionals to make substantial changes to your house plan and inexpensive local printing.

PDF Set

Best Value!
$3500.00
PDF plan sets are best for fast electronic delivery and inexpensive local printing.

Foundation Options

Slab

$0.00
Ideal for level lot, single layer concrete poured directly on grade.

*Options with a fee may take time to prepare. Please call to confirm.

Framing Options

Wood 2x4

$0.00
Wood 2x4 Exterior Walls

*Options with a fee may take time to prepare. Please call to confirm.

Additional Options

Right-Reading Reverse

$300.00
Choose this option to reverse your plans and to have the text and dimensions readable.

Additional Construction Sets

$50.00
Additional hard copies of the plan (can be ordered at the time of purchase and within 90 days of the purchase date).

Additional Use License

$1750.00
Allows you to build one more home for each additional license purchased.

Audio Video Design

$100.00
Receive an overlay sheet with suggested placement of audio and video components.

Construction Guide

$39.00
Educate yourself about basic building ideas with these four detailed diagrams that discuss electrical, plumbing, mechanical, and structural topics.

Lighting Design

$200.00
Receive an overlay sheet with suggested placement of lighting fixtures.

*Options with a fee may take time to prepare. Please call to confirm.

Unless you buy an “unlimited” plan set or a multi-use license you may only build one home from a set of plans. Please call to verify if you intend to build more than once. Plan licenses are non-transferable and cannot be resold.

Other Plans By This Designer

See all plans by
this designer

Need help? Let our friendly experts help you find the perfect plan!

Contact us now for a free consultation.

Coupon Codes