Don't lose your saved plans! 
Create an account to access your saves whenever you want. See our Terms & Conditions and Privacy Policy.
OR

Classical House Plan 72-684 3556 Sq Ft, 5 Bed, 3.5 Bath, 3 Floor, 2 Garage

Key Specs
  • 5
    Beds
  • 3.5
    Baths
  • 3
    Floors
  • 2
    Garages
  • 3556
    Square Feet
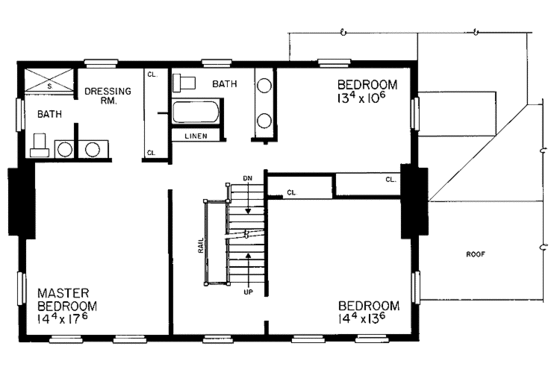
Three floors of livability are available in this stately brick Federal design. From the two chimney stacks to the five dormer windows, the appeal is pure Americana. First-floor features include fireplaces in the gathering room, the breakfast room and the study, as well as a built-in barbecue in the gourmet kitchen. A handy mud room with a powder room connects the kitchen to the laundry and to the garage beyond. The second floor is dominated by a sumptuous master suite and two family bedrooms that share a full bath. A third floor holds two additional bedrooms that might serve well as guest rooms or as a studio or study space. A full bath with a double vanity finishes this floor.



Questions on this plan?

New to the process and looking for some help to kick things off? Let us know a bit about your plans and we’ll be happy to help.

Budget & Customization Tools

Modify icon
Customize this Plan
Tell us about your desired changes and we can prepare an estimate.
Cost to Build icon
Cost to Build Report
A personalized estimate based on your location, plan, & materials.
Cost to Build icon
Residential Construction Guide
This downloadable, 26-page guide is full of diagrams and details about plumbing, electrical, and more.

Full specs & Features

Basic Features

Bedrooms: 5
Baths: 3.5
Stories: 3
Garages: 2

Dimension

Depth: 64'
Height: 35'
Width: 64'

Area

Total: 3556 sq/ft
First Floor: 1735 sq/ft height 9'
Garage: 514 sq/ft
Second Floor: 1075 sq/ft
Third Floor: 746 sq/ft
* Total Square Footage typically only includes conditioned space and does not include garages, porches, bonus rooms, or decks.

Roof

Primary Pitch: 11:12
Roof Framing: Combination Truss/Conventional
Roof Type: Shingle

Exterior Wall Framing

Exterior Wall Finish: Brick
Framing: Wood - 2x4

Bedroom Features

Fireplace
Formal Dining Room
Formal Living Room / Parlor
Split Bedrooms

Kitchen Features

Breakfast Nook
Kitchenette Wet Bar

Additional Room Features

Den Office Study Computer
Great Room Living Room
Loft
Main Floor Laundry

Garage Features

Side Entry Garage

Outdoor Spaces

Balcony
Courtyard
Covered Front Porch

Rooms

3rd BR Closet:

13 sq/ft width 2' 1" x depth 6' 6"

Basement Foundation:

1120 sq/ft width 40' x depth 28'

Bathroom 2:

71 sq/ft width 10' 4" x depth 6' 11"

Bedroom 2:

193 sq/ft width 14' 4" x depth 13' 6"

Bedroom 2 Closet:

13 sq/ft width 2' 1" x depth 6' 6"

Bedroom 3:

139 sq/ft width 13' 4" x depth 10' 6"

Bedroom 3 Closet:

13 sq/ft width 2' 1" x depth 6' 6"

Bedroom 4:

165 sq/ft width 11' 10" x depth 14'

Bedroom 4 Closet:

11 sq/ft width 2' 1" x depth 5' 8"

Bedroom 5:

165 sq/ft width 11' 10" x depth 14'

Breakfast Room:

172 sq/ft width 10' 4" x depth 16' 8"

Crawlspace Foundation:

216 sq/ft width 12' x depth 18'

Dining Room:

188 sq/ft width 14' 4" x depth 13' 2"

Foyer:

72 sq/ft width 9' 4" x depth 7' 9"

Garage:

513 sq/ft width 22' 8" x depth 22' 8"

Gathering Room:

267 sq/ft width 20' 4" x depth 13' 2"

Hall:

158 sq/ft width 9' 4" x depth 17'

Hall Bathroom:

61 sq/ft width 10' 4" x depth 5' 11"

Hall Closet:

10 sq/ft width 2' 1" x depth 5' 1"

Kitchen:

215 sq/ft width 16' 4" x depth 13' 2"

Laundry Room:

42 sq/ft width 7' x depth 6'

Master Bathroom:

108 sq/ft width 12' x depth 9'

Master Bedroom:

250 sq/ft width 14' 4" x depth 17' 6"

Master Closet:

18 sq/ft width 2' 1" x depth 9'

Parlor:

188 sq/ft width 14' 4" x depth 13' 2"

Porch - Front:

98 sq/ft width 14' x depth 7'

Porch - Right:

93 sq/ft width 17' x depth 5' 6"

Powder Room:

26 sq/ft width 5' 8" x depth 4' 8"

Study:

172 sq/ft width 10' 4" x depth 16' 8"

Wash Room:

42 sq/ft width 11' 4" x depth 3' 9"

What's Included

All plans are drawn at ¼” scale or larger and include :

  • Foundation Plan: This page shows all necessary notations and dimensions including support columns, walls, and excavated/unexcavated areas.
  • Exterior Elevations: Views of the home from all four sides showing exterior materials and measurements.
  • Floor Plan(s): Detailed plans for each level showing room dimensions, wall partitions, windows and doors, etc.
  • Cross Section: A slice of the home from roof to foundation, showing important details like stairs and wall construction.
  • Overhead Roof Plan(s): A view of the home from above showing roof pitch, peaks, valleys, and other details.
  • Construction Notes and Details: Shows the builder how things come together, like walls, the chimney, insulation, and more.

FAQs

Are designs on Houseplans ready to submit to my building department for permitting?

It depends on where you're building. Our plans contain enough information for a professional builder to construct your home, but your local government may require additional information before permitting. We strongly advise that you talk with your builder before you get started. If you are building for yourself, we recommend visiting your local building department to start your diligence. Read more here.

Can I make changes to a plan?

Absolutely! Our modification service allows you to customize almost anything - whether it's adding an extra garage bay, adjusting square footage, changing the roof pitch, or more, the plan modification service is a great value and can be completed quickly. Additionally, if you purchase an electronic plan set (PDF or CAD), you may have the option to make changes locally. CAD files offer the most flexibility for custom edits. Just let us know what you're thinking, and we’ll provide an estimate and timeframe to get started. Learn more here.

How much does a house cost to build?

Find out! Build costs vary based on the size of the home, materials used, and local rates for goods and labor. Our Cost to Build report is a great way to get some basic costs dialed in before you order your plans. Just plug in your postal code, select your desired construction quality, and we'll calculate for you.

Learn more about Cost to Build reports here.

Can I trust Houseplans?

Founded in 2004, Houseplans works with hundreds of architects and designers to offer their plans at a fraction of the price of custom design. Houseplans has an "Excellent" rating on TrustPilot.

Read more about us here.

Does Houseplans offer live support?

Yes, Houseplans has a dedicated team of house plan advisors with decades of experience between them. You can reach them by calling, emailing, filling out a form on the page of a plan that you like, or going to the Contact Us page. We're available to talk every day, even on weekends.

Builder Advantage Home

Builder Advantage Program

Are you a Pro Builder? Join the club, save 5% on your first order, get exclusive discounts, and more.

Learn More

You may also like

Save Plan
Classical

Plan 20-2173

$7640.00

beds6

bd

baths6.5

ba

stories2

stories

square feet9360

sq ft

Save Plan
Colonial

Plan 20-1220

$1255.00

beds3

bd

baths2.5

ba

stories2

stories

square feet1699

sq ft

Recently viewed plans

Signature
Classical Exterior - Front Elevation Plan #72-684
Save Plan

Plan 72-684

$1399.20

beds5

bd

baths3.5

ba

stories3

stories

square feet3556

sq ft