4118
sq ft
3
Beds
3
Baths
2
Floors
2
Garages
See Terms & Conditions and Privacy Policy.
Thanks for your question.
We will be in touch shortly.
Residential Construction Guide
Learn Building Basics
This downloadable, 26-page guide is full of diagrams and details about plumbing, electrical, and more.
4118
sq ft
3
Beds
3
Baths
2
Floors
2
Garages
BUILDER Advantage Program
PRO BUILDERS
Join the club and save 5% on your first order.
PLUS download exclusive discounts and more.
LEARN MORE
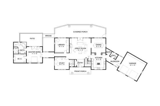
Bedroom 2:
width 16' x depth 20'
Bedroom 3:
width 16' x depth 16'
Dining:
width 16' x depth 16'
Garage:
width 25' x depth 23'
Great Room:
width 24' x depth 16'
Kitchen:
width 16' x depth 16'
Library:
width 16' x depth 16'
Master Bedroom:
width 17' x depth 18'
Study:
width 16' x depth 14'
All plans are drawn at ¼” scale or larger and include :
*Options with a fee may take time to prepare. Please call to confirm.
*Options with a fee may take time to prepare. Please call to confirm.
*Options with a fee may take time to prepare. Please call to confirm.
Unless you buy an “unlimited” plan set or a multi-use license you may only build one home from a set of plans. Please call to verify if you intend to build more than once. Plan licenses are non-transferable and cannot be resold.
Need help? Let our friendly experts help you find the perfect plan!
Contact us now for a free consultation.
 
             
             
             
             
             
             
             
             
             
             
             
             
             
            