Blog Home > 1,100 Sq. Ft. House Plans

The Houseplans Blog

1,100 Sq. Ft. House Plans

Check out our favorite 1,100 sq. ft. plans.

Hero Image

March 6, 2023

Livabl Brand

Can't find what you're looking for?

Give us a call below or reach out and we’ll make sure to be in contact!

Send Us a Message

By Devin Uriarte

We’ve compiled some of our favorite 1,100 sq. ft. house plans that feature open concept living spaces and stunning curb appeal. These plans are a great option for those who are looking to build on a smaller lot or are thinking of building their first home.

See more 1,100 sq. ft. house plans.

Two Bedroom 1,196 Sq. Ft. House Plan Two Bedroom 1,196 Sq. Ft. House Plan Two Bedroom 1,196 Sq. Ft. House Plan - Exterior

Two Bedroom 1,196 Sq. Ft. House Plan Two Bedroom 1,196 Sq. Ft. House Plan - Main Floor Plan

Large windows in the living room add to the overall curb appeal of this 1,196 sq. ft. house plan. A charming front porch opens to the living room and kitchen. The kitchen island features a level bar where guests can sit and relax. Down the hall to the left is the primary suite with a barn door opening to the full bathroom and a walk-in closet. On the other side of the hall is a guest bedroom with a walk-in closet. For additional storage, there’s a closet in the hall along with a laundry area.

1,120 Sq. Ft. Plan with Charming Porch 1,120 Sq. Ft. Plan with Charming Porch 1,120 Sq. Ft. Plan with Charming Porch - Exterior

1,120 Sq. Ft. Plan with Charming Porch 1,120 Sq. Ft. Plan with Charming Porch

Step up to this 1,120 sq. ft. house plan with a lovely front porch. French doors welcome you into the open concept living space with an L-shaped kitchen. The kitchen island is a great spot to meal prep and entertain guests. Around the corner is an impressive laundry room that also acts as a mudroom. At the end of the hallway are two bedroom suites.

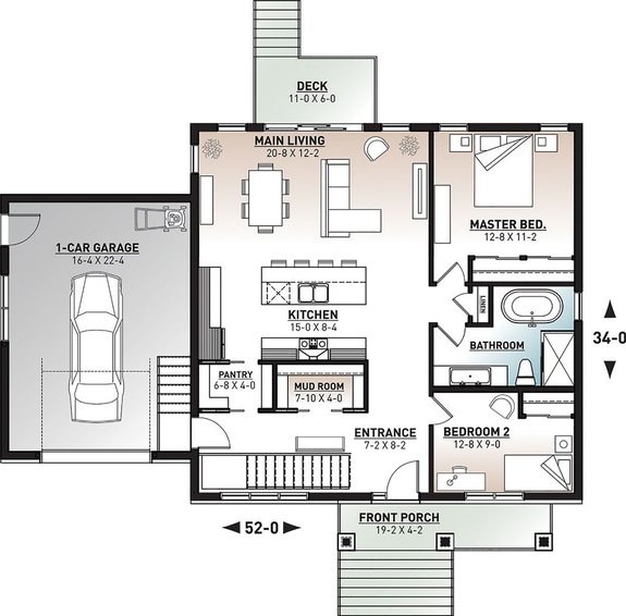
Modern House Plan Modern House Plan Modern House Plan - Exterior

Modern House Plan Modern House Plan - Main Floor Plan

This modern 1,105 sq. ft. house plan has an impressive deck that stretches the length of the home. Sliding glass doors from each room lead out to the deck. Inside there is an open concept living space with a kitchen island providing a great spot for meal prep and entertaining guests. A sliding door opens to the primary suite with a full bathroom and spacious closet. On the opposite side of the house plan is a second bedroom that has easy access to the laundry room.

Three Bedroom Farmhouse Three Bedroom Farmhouse Three Bedroom Farmhouse - Exterior

Three Bedroom Farmhouse Three Bedroom Farmhouse - Main Floor Plan

This small farmhouse plan has 1,176 sq. ft. and features a two car garage. The laundry room connects the two car garage to the open kitchen. There’s a cozy eating area next to the kitchen that looks out to the covered patio. A fireplace adds to the overall ambiance of the farmhouse plan and keeps the space warm. In the main suite there is a private bathroom and a walk-in closet. Around the corner are two guest bedrooms, each with its own closet.

1,131 Sq. Ft. Contemporary Plan 1,131 Sq. Ft. Contemporary Plan 1,131 Sq. Ft. Contemporary Plan - Exterior

1,131 Sq. Ft. Contemporary Plan 1,131 Sq. Ft. Contemporary Plan - Main Floor Plan

Enjoy the bold lines, large windows, and open concept floor plan of this 1,131 sq. ft. contemporary house plan. Through the garage there is a walk-in pantry in the hallway that leads to the kitchen. The kitchen has a sloped ceiling, adding to the contemporary design, and features an L-shaped counter with a built-in bar top. Natural light streams in from the large window in the great room to help the space feel more open. Down the hallway there are two guest bedrooms and a shared bathroom. To the right is the primary suite with a private bathroom and a walk-in closet.

1,120 Sq. Ft. Country Style Home 1,120 Sq. Ft. Country Style Home 1,120 Sq. Ft. Country Style Home - Exterior

1,120 Sq. Ft. Country Style Home 1,120 Sq. Ft. Country Style Home - Main Floor Plan

What makes country style homes timeless is their simple design and charming curb appeal. This 1,120 sq. ft. house plan has a welcoming covered front porch that opens to the open concept living room. The living room leads into the kitchen and dining area and there’s a convenient pantry for additional storage. Down the hallway there are two guest bedrooms to the left with the laundry closet directly across. The primary suite features a private bathroom and closet along with a sliding glass door out to the backyard.

Open-Concept House Plan Open-Concept House Plan Open-Concept House Plan - Exterior

Open-Concept House Plan Open-Concept House Plan - Main Floor Plan

A front porch welcomes guests into this 1,178 sq. ft. Craftsman style house plan. This bungalow features a single-car garage that leads into the home. Through the front porch there is a spacious mudroom to keep the area tidy and clean. Next to the mudroom is the walk-in pantry with a double entrance. The double entrance in the pantry is convenient for bringing groceries into the home from the garage. An impressive island in the kitchen provides a great space for meal prep and a relaxed area for guests to sit. Entertaining is made simple with the kitchen island that looks out to the main living area and back deck.

1,121 Sq. Ft. Narrow Lot Plan 1,121 Sq. Ft. Narrow Lot Plan 1,121 Sq. Ft. Narrow Lot Plan - Exterior

1,121 Sq. Ft. Narrow Lot Plan 1,121 Sq. Ft. Narrow Lot Plan - Main Floor Plan

Looking for a house plan for a narrow lot? This 1,121 sq. ft. bungalow features an open layout with two bedrooms. Upon entering the house through the front porch, you'll step into the foyer and then the bright great room. The owner’s suite to the left of the entryway features a private bathroom, a walk-in closet, and windows on two sides. A sliding door leads to the flex room with a private bathroom and closet. A convenient laundry room connects the garage to the kitchen and can act as a mudroom.

Modern Two Story House Plan Modern Two Story House Plan Modern Two Story House Plan - Exterior

Modern Two Story House Plan Modern Two Story House Plan - Main Floor Plan

Modern Two Story House Plan Modern Two Story House Plan - Upper Floor Plan

Take a look at this two story modern home with 1,188 sq. ft., plus more room to expand in the basement. The first floor features a single-car garage that opens to the walk-in mudroom and laundry room. A door opens to the living room with a kitchen island breaking up the space and also providing a casual seating and dining area. Create great indoor-outdoor flow by opening the sliding glass door to the back terrace. There’s a bedroom on the main floor across from the hall bathroom.

Owners will be able to enjoy privacy on the second floor with a private bathroom, a walk-in closet, and access to the balcony. When the weather permits, relax on the spacious balcony.

1,162 Sq. Ft. House Plan with Covered Porch 1,162 Sq. Ft. House Plan with Covered Porch 1,162 Sq. Ft. House Plan with Covered Porch - Exterior

1,162 Sq. Ft. House Plan with Covered Porch 1,162 Sq. Ft. House Plan with Covered Porch - Main Floor Plan

Check out this modern home with a unique floor plan that lets in lots of natural light. Both bedrooms have lots of privacy by being on opposite sides of the home. Each bedroom has a private bathroom and closet and its own entrance to the covered porch. The living room and kitchen are in the middle of the house plan and flow seamlessly together. Another unique part of this plan is the cozy office nook that sits behind the living room.

See more 1,100 sq. ft. house plans.

Get Our Newsletter

Be the first to see new plans, special offers, and more.

By signing up for our newsletter, you agree to our Terms & Conditions and Privacy Policy, for an account

Blog Subscribe Icon