By Devin Uriarte
If looking to build a home on a hill or sloped land, think of choosing a plan that will help maximize space. Having a garage underneath makes it so there’s more room for the main house. The modern layouts of these plans also help maximize space and create a more open vibe.
See more styles from our hillside house plans with garages underneath.
Hillside House Plan with Mezzanine
 Hillside House Plan with Mezzanine - Exterior
Hillside House Plan with Mezzanine - Exterior
  Hillside House Plan with Mezzanine - Main Floor Plan
Hillside House Plan with Mezzanine - Main Floor Plan
  Hillside House Plan with Mezzanine - Upper Floor Plan
Hillside House Plan with Mezzanine - Upper Floor Plan
Take in the views on every level of this hillside home plan. Drive up to the single-car garage of this hillside house plan and take the stairs up to the living area. The L-shaped kitchen opens to the living room where guests can gather and enjoy the stunning views of the lake from the balcony. There’s a walk-in laundry and mud room by the side entrance to keep dirt at bay. All the bedrooms are on the third floor including a cozy desk area. Open the French doors in the primary suite to the private balcony. Enjoy the views on the mezzanine level.
Modern Hillside Home Plan
 Modern Hillside Home Plan - Exterior
Modern Hillside Home Plan - Exterior
  Modern Hillside Home Plan - Main Floor Plan
Modern Hillside Home Plan - Main Floor Plan
  Modern Hillside Home Plan - Lower Floor Plan
Modern Hillside Home Plan - Lower Floor Plan
After walking up to the covered porch of this hillside home, you can either go upstairs to the main living area or downstairs to the garage. The kitchen island has a built-in eating bar and around the corner there’s a pantry space to make meal prep a breeze. In the living area, the vaulted ceiling helps brighten up the space. Two guest bedrooms and a den sit on one side of the home where a door leads to the walk-in closet of the primary suite.
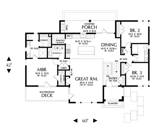
Contemporary Hillside Home with Garage
 Contemporary Hillside Home with Garage - Exterior
Contemporary Hillside Home with Garage - Exterior
  Contemporary Hillside Home with Garage - Main Floor Plan
Contemporary Hillside Home with Garage - Main Floor Plan
  Contemporary Hillside Home with Garage - Upper Floor Plan
Contemporary Hillside Home with Garage - Upper Floor Plan
  Contemporary Hillside Home with Garage - Lower Floor Plan
Contemporary Hillside Home with Garage - Lower Floor Plan
The vaulted ceiling and large windows in the living room of this contemporary style hillside home provides the space with stunning natural light. Light the fireplace and have a cozy dinner party for friends and family. The kitchen island makes for a great place to prepare meals and drinks for guests. There’s a private office on the main floor for those who work from home. Up on the second floor there are two guest bedrooms with shared access to the bathroom and the primary suite with an impressive walk-in closet.
A unique feature of this hillside home is the in-law suite on the lower level where the garage is. There’s a cozy single bedroom, a living space with a kitchenette, and a private entrance with a patio.
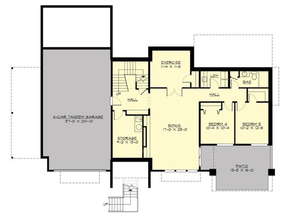
Hillside Four Car Garage House Plan
 Hillside Four Car Garage House Plan - Exterior
Hillside Four Car Garage House Plan - Exterior
  Hillside Four Car Garage House Plan - Main Floor Plan
Hillside Four Car Garage House Plan - Main Floor Plan
  Hillside Four Car Garage House Plan - Lower Floor Plan
Hillside Four Car Garage House Plan - Lower Floor Plan
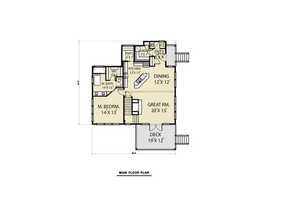
Step inside this luxury hillside house plan with a four-car garage. Stretching over 4,300 sq. ft., this home features three outdoor living spaces that would be great for any fun gathering. There are two bedrooms on the lower floor plan and directly across is the walk-in laundry room. Convert the bonus room into a second living space or open the French doors to the exercise room and create a fully stocked at-home gym.
The kitchen has an impressive island and tons of counter space to prepare meals. Have a casual breakfast in the nook space and full dinner in the formal dining room. Past the foyer you’ll find the luxurious primary bedroom with a large walk-in closet and its own laundry room. The second bedroom also has a walk-in closet and its own private bathroom.
Contemporary House Plan with Drive-Up Garage
 Contemporary House Plan with Drive-Up Garage - Exterior
Contemporary House Plan with Drive-Up Garage - Exterior
  Contemporary House Plan with Drive-Up Garage - Main Floor Plan
Contemporary House Plan with Drive-Up Garage - Main Floor Plan
  Contemporary House Plan with Drive-Up Garage - Upper Floor Plan
Contemporary House Plan with Drive-Up Garage - Upper Floor Plan
  Contemporary House Plan with Drive-Up Garage - Lower Floor Plan
Contemporary House Plan with Drive-Up Garage - Lower Floor Plan
The open concept floor plan of this hillside house plan fits the contemporary exterior. There’s an effortless flow from the kitchen into the living room and the sliding glass doors to the deck make outdoor entertaining a breeze. Upstairs there are three bedrooms including the primary suite with a tile shower and impressive walk-in closet. Down on the garage level there’s room for two cars and a workspace and storage closet.
Hillside Home with Basement
 Hillside Home with Basement - Exterior
Hillside Home with Basement - Exterior
  Hillside Home with Basement  - Main Floor Plan
Hillside Home with Basement  - Main Floor Plan
  Hillside Home with Basement  - Upper Floor Plan
Hillside Home with Basement  - Upper Floor Plan
  Hillside Home with Basement  - Lower Floor Plan
Hillside Home with Basement  - Lower Floor Plan
The curb appeal of this contemporary style house plan will be sure to be the talk of the neighborhood. A family room provides extra space for relaxing in the basement. The main floor has a kitchen island that is perfectly placed to host guests and the walk-in pantry is helpful for meal prep. French doors take you out to the covered deck where you can further enjoy the night. Also on the main floor is the primary suite with a full bath and walk-in closet. Upstairs there are two guest bedrooms and a loft space.
Hillside House Plan with Patios
 Hillside House Plan with Patios - Exterior
Hillside House Plan with Patios - Exterior
  Hillside House Plan with Patios - Main Floor Plan
Hillside House Plan with Patios - Main Floor Plan
  Hillside House Plan with Patios - Upper Floor Plan
Hillside House Plan with Patios - Upper Floor Plan
  Hillside House Plan with Patios - Lower Floor Plan
Hillside House Plan with Patios - Lower Floor Plan
This 3,980 sq. ft. hillside house plan features amenities that scream luxury. Through the foyer you walk into the great room where there is a cozy fireplace and a sliding glass door out to the covered patio. The kitchen has an impressive prep island that flows into the dining nook where you can have breakfast. Host dinner parties for family and friends in the formal dining room and prepare drinks in the butler’s pantry. Help your guests feel right at home with their own private suite on the opposite side of the home.
The primary suite is upstairs along with the walk-in laundry room and two additional guest bedrooms. The primary suite has a full bathroom and a huge walk-in closet.
Open Concept Hillside Plan
 Open Concept Hillside Plan  - Exterior
Open Concept Hillside Plan  - Exterior
  Open Concept Hillside Plan  - Main Floor Plan
Open Concept Hillside Plan  - Main Floor Plan
  Open Concept Hillside Plan  - Lower Floor Plan
Open Concept Hillside Plan  - Lower Floor Plan
The modern layout of this Prairie style plan makes for a great space for entertaining. Past the dining room is the covered porch with a built-in grill for those warm summer nights. Back inside, the kitchen features a walk-in pantry and an island making meal prep simpler. Owners can enjoy plenty of privacy in the primary suite that sits on the opposite side of the other rooms. The laundry room is just outside of the suite and back inside, owners can enjoy the luxury of having a full bathroom and walk-in closet.
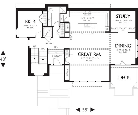
Modern Hillside Home
 Modern Hillside Home  - Exterior
Modern Hillside Home  - Exterior
  Modern Hillside Home  - Main Floor Plan
Modern Hillside Home  - Main Floor Plan
  Modern Hillside Home  - Upper Floor Plan
Modern Hillside Home  - Upper Floor Plan
  Modern Hillside Home  - Lower Floor Plan
Modern Hillside Home  - Lower Floor Plan
Looking for a classic modern home plan that works great for a large hillside plot? Look no further than this modern home with an open floor plan. From the three-car garage you can take the stairs up to the main floor to the living room. The open kitchen has an impressive island and a walk-in pantry for additional storage. Past the kitchen is a dining nook where you can host family and guests for dinner. There’s a private study that can be utilized as an at-home office and the private shelves add a nice personal touch.
There’s a guest bedroom just across the stairs. Heading upstairs? Just take the elevator. Just outside of the elevator is the walk-in laundry room with a linen closet for more storage. The two guest bedrooms have their own private bathrooms. Double doors open to the primary suite where there’s a walk-in closet and a spa-like bathroom.
Hillside Home with Play Area
 Hillside Home with Play Area  - Exterior
Hillside Home with Play Area  - Exterior
  Hillside Home with Play Area  - Main Floor Plan
Hillside Home with Play Area  - Main Floor Plan
  Hillside Home with Play Area  - Upper Floor Plan
Hillside Home with Play Area  - Upper Floor Plan
  Hillside Home with Play Area  - Lower Floor Plan
Hillside Home with Play Area  - Lower Floor Plan
Past the garage of this modern hillside plan is a mud hall with built-in storage and a bench. On the main floor, the kitchen opens to the dining room. Enjoy warm summer nights out on the covered patio or the covered balcony. Unwind after a long day and enjoy the main suite's walk-in closet and large bathroom. Upstairs are the two guest bedrooms, each with its own walk-in closet. The laundry chute is very convenient for guests to use and the play area is great for additional space.
 
         
                   
                   
                   
                   
                  