By Devin Uriarte
Just because your lot is narrow doesn’t mean you need to compromise with functionality and style. These house plans feature modern designs that are simple, yet diverse. We’ve rounded up some compact plans with grand amenities.
Check out our full collection of modern narrow lot plans.
Tiny Modern House Plan
 Tiny Modern House Plan - Exterior
Tiny Modern House Plan - Exterior
 Tiny Modern House Plan - Main Floor Plan
Tiny Modern House Plan - Main Floor Plan
 Tiny Modern House Plan - Upper Floor Plan
Tiny Modern House Plan - Upper Floor Plan
This modern house plan is just under 1,000 sq. ft. and is great for a narrow hillside lot. The angled roof is a unique touch and adds to the modern design. Entering under the canopy, you'll find a hall bathroom before turning into the main living area. The living room is fully open and features a cozy kitchenette to maximize entertaining space. Upstairs there are two bedrooms with vaulted ceilings to really bring in that natural light. Both bedrooms share access to the bathroom with a double vanity and extra linen closet for storage.
Four Bedroom Narrow Lot Home
 Four Bedroom Narrow Lot Home - Exterior
Four Bedroom Narrow Lot Home - Exterior
 Four Bedroom Narrow Lot Home - Main Floor Plan
Four Bedroom Narrow Lot Home - Main Floor Plan
 Four Bedroom Narrow Lot Home - Upper Floor Plan
Four Bedroom Narrow Lot Home - Upper Floor Plan
The effortless exterior of this narrow lot home design reflects the simple floor plan inside. Through the welcoming covered porch, the home opens to the living room which flows into the kitchen. The traditional kitchen features lots of counter space and storage including a convenient pantry. There are three bedrooms on the main level including the primary suite. The primary suite is just across from the laundry room and has its own private bathroom and walk-in closet. Upstairs there’s a cozy loft, another bedroom, a third bathroom, and storage space.
Modern Plan with Flex Room
 Modern Plan with Flex Room - Exterior
Modern Plan with Flex Room - Exterior
  Modern Plan with Flex Room - Main Floor Plan
Modern Plan with Flex Room - Main Floor Plan
  Modern Plan with Flex Room - Upper Floor Plan
Modern Plan with Flex Room - Upper Floor Plan
This attractive modern home plan is exactly what we’re searching for when it comes to modern design. You can enter the home through the two-car garage into the convenient mudroom with a built-in bench and storage. Down the hall is a tiny pocket office where you can have some privacy for work. The kitchen features an island for meal prep and an impressive walk-in pantry for additional storage. There’s a cozy eating nook next to the kitchen that opens out to the covered patio. Passing by the living room, you'll find a half bath and a flex room that can be used as an office or hobby space.
Upstairs there are two guest bedrooms plus the primary suite. The ten-foot ceiling in the primary suite adds a touch of luxury, along with the private bathroom and large walk-in closet.
Hillside Narrow Lot House Plan
 Hillside Narrow Lot House Plan - Exterior
Hillside Narrow Lot House Plan - Exterior
  Hillside Narrow Lot House Plan - Main Floor Plan
Hillside Narrow Lot House Plan - Main Floor Plan
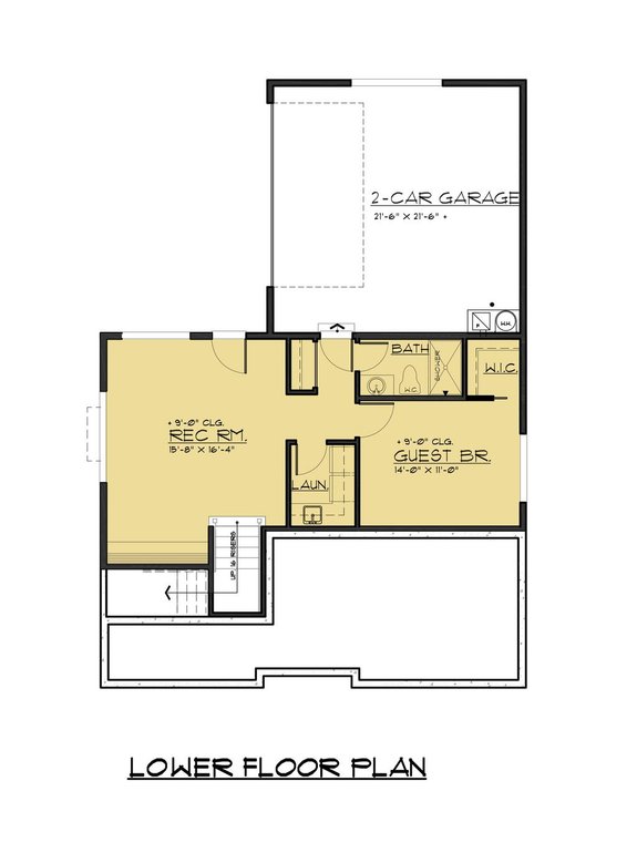
  Hillside Narrow Lot House Plan - Lower Floor Plan
Hillside Narrow Lot House Plan - Lower Floor Plan
  Hillside Narrow Lot House Plan - Upper  Floor Plan
Hillside Narrow Lot House Plan - Upper  Floor Plan
We can’t take our eyes off this towering modern house plan. The unique angles, mixed textures, and large windows add to the modern feel of this narrow lot plan. A private office sits to the right of the foyer. An impressive kitchen island looks out to the living and dining room and provides an excellent space to meal prep. Take meals outside on those warmer nights to the balcony to soak in more of the views.
Upstairs there are two guest bedrooms, a study loft, and the primary suite. Homeowners can unwind in the suite where there is a private balcony, a modern bathroom, and a walk-in closet. There’s a third guest bedroom on the lower level along with a recreation room and laundry room.
Simple Narrow Lot Plan
Simple Narrow Lot Plan - Exterior
  Simple Narrow Lot Plan - Main Floor Plan
Simple Narrow Lot Plan - Main Floor Plan
  Simple Narrow Lot Plan - Upper Floor Plan
Simple Narrow Lot Plan - Upper Floor Plan
This plan is great for those looking for a very simple house plan that has ultra-modern style. Past the entryway there is an at-home office tucked away for maximum privacy. In the main living space, eyes will go to the kitchen island. Bring the entertainment outdoors by opening the French doors. The upper floor plan features two guest bedrooms that share the hall bathroom. There’s a spacious walk-in closet and full bathroom in the primary suite.
Narrow Lot Design with Unique Curb Appeal
 Narrow Lot Design with Unique Curb Appeal - Exterior
Narrow Lot Design with Unique Curb Appeal - Exterior
  Narrow Lot Design with Unique Curb Appeal - Main Floor Plan
Narrow Lot Design with Unique Curb Appeal - Main Floor Plan
  Narrow Lot Design with Unique Curb Appeal - Upper Floor Plan
Narrow Lot Design with Unique Curb Appeal - Upper Floor Plan
This modern house plan boasts unique curb appeal with its dramatic roof. Create a casual dining experience at the impressive kitchen island. Add to the ambiance by opening the sliding glass door out to the covered porch. The second level features two guest bedrooms, each with its own closet. Enjoy privacy in the primary suite with your own bathroom and walk-in closet.
Modern Cabin Plan
 Modern Cabin Plan - Exterior
Modern Cabin Plan - Exterior
  Modern Cabin Plan - Main Floor Plan
Modern Cabin Plan - Main Floor Plan
  Modern Cabin Plan - Upper Floor Plan
Modern Cabin Plan - Upper Floor Plan
Look no further if you are searching for a cozy cabin with a cool and modern design. The living room flows into a casual dining area and the L-shaped counter in the kitchen defines the space while still allowing for easy access. There’s a cozy guest bedroom past the kitchen area and the primary suite sits upstairs, along with a loft space that would work as an office. Enjoy your private balcony and the view from the tub.
 
         
                   
                   
                   
                   
                  