Blog Home > 1,200 Sq. Ft. Barndominium Floor Plans

The Houseplans Blog

1,200 Sq. Ft. Barndominium Floor Plans

Check out these 1,200 sq. ft. barndominium floor plans.

Hero Image

March 28, 2024

Livabl Brand

Can't find what you're looking for?

Give us a call below or reach out and we’ll make sure to be in contact!

Send Us a Message

By Courtney Pittman

It’s all about functionality and space where it counts with these 1,200 sq. ft. barndominium floor plans. You’ll find barn-style house designs that feel classic and modern thanks to their rustic exteriors and up-to-date amenities. These plans (all around 1,200 sq. ft.) seal the deal with comfortable rooms, easygoing layouts, and generous garages/workshops.

Explore our collection of small barndominium house plans here.

Barndominium Floor Plan with Wraparound Porch Barndominium Floor Plan with Wraparound Porch Barndominium Floor Plan with Wraparound Porch - Front Exterior

Barndominium Floor Plan with Wraparound Porch Barndominium Floor Plan with Wraparound Porch - Main Level

Here’s a barndominium floor plan that turns heads with country curb appeal. A metal roof covers the spacious wraparound porch. Inside, the kitchen takes center stage with an island that overlooks the living room and the dining area. Nearby, the roomy pantry is ready to hold groceries.

At the back of the plan, the primary suite enjoys privacy and gives you a walk-in closet, dual sinks, and a large shower. Lockers in the mudroom are a thoughtful touch.

Simple Barndominium Floor Plan Simple Barndominium Floor Plan Simple Barndominium Floor Plan - Front Exterior

Simple Barndominium Floor Plan Simple Barndominium Floor Plan - Main Level

A simple footprint and an efficient layout make this barndominium house plan an affordable option. The open-concept floor plan features an airy living room that opens to the wide front porch via sliding glass doors. In the kitchen, an island offers plenty of room for casual meals.

Highlights of the primary suite include an impressive shower and an extra-big walk-in closet. Don’t miss the large pantry and the laundry room.

Note that this plan is designed for use as a PEMB (Pre-engineered Metal Building). The plan is also available using traditional 2" x 6" wood framing.

Contemporary Barn-Style Plan Contemporary Barn-Style Plan Contemporary Barn-Style Plan - Front Exterior

Contemporary Barn-Style Plan Contemporary Barn-Style Plan - Main Level

This not-too-big barndominium floor plan is jam-packed with contemporary style. Clean, sleek lines decorate the exterior, while an efficient layout waits inside. An island adds casual seating and prep space in the kitchen. Here’s a cool detail: the primary suite features direct access to the laundry room for extra convenience. Each bedroom boasts a walk-in closet.

Like the previous plan, this plan is designed for use as a PEMB (Pre-engineered Metal Building). The plan is also available using traditional 2" x 6" wood framing.

Two-Bedroom Barndo Style Plan Two-Bedroom Barndo Style Plan Two-Bedroom Barndo Style Plan - Front Exterior

Two-Bedroom Barndo Style Plan Two-Bedroom Barndo Style Plan - Main Level

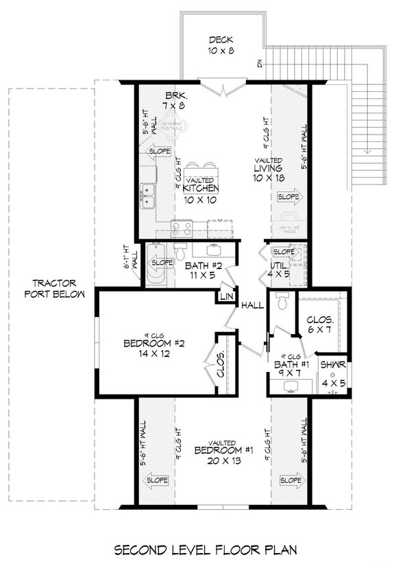
Two-Bedroom Barndo Style Plan Two-Bedroom Barndo Style Plan - Upper Level

Here’s a barndominium house plan that actually features a barn and a tractor port on the main level. The second floor shines with an open floor plan between the vaulted living room and the kitchen. A primary suite sits at the back of the plan, while a secondary bedroom and a full bath rest nearby.

Efficient Barndominium Plan Efficient Barndominium Plan Efficient Barndominium Plan - Front Exterior

Efficient Barndominium Plan Efficient Barndominium Plan - Main Level

Here's another metal-framed house plan. Just 39 feet wide, this house plan is ideal for a narrow lot. The large great room flows seamlessly into the dining area. Two bedrooms share a full bath on the left side of the plan. We love the cute front porch.

Barndo Plan with Big Garage Barndo Plan with Big Garage Barndo Plan with Big Garage - Front Exterior

Barndo Plan with Big Garage Barndo Plan with Big Garage - Main Level

Stay organized with this barndominium floor plan. A large garage with space for a workshop gives you lots of room for storage. The spacious kitchen sports a snack bar and opens to the great room. Everything has a place in the handy laundry/mudroom. Walk-in closets in each bedroom are a welcome amenity. Front and rear porches invite you to relax after a long day.

Barndominium Plan with Two Beds and Two Baths Barndominium Plan with Two Beds and Two Baths Barndominium Plan with Two Beds and Two Baths - Front Exterior

Barndominium Plan with Two Beds and Two Baths Barndominium Plan with Two Beds and Two Baths - Main Level

This barn-style house plan (another metal house plan) steals the show with a bathroom for each bedroom (one of them a private suite). The kitchen shows off an eating bar and a sizable pantry. Just off the living room, a back porch extends the space and offers outdoor living. Need to stay organized? Each bedroom includes a walk-in closet.

See more small barndominium house plans here.

Get Our Newsletter

Be the first to see new plans, special offers, and more.

By signing up for our newsletter, you agree to our Terms & Conditions and Privacy Policy, for an account

Blog Subscribe Icon