Blog Home > 2 Bed 2 Bath House Plans Under 1,000 Sq. Ft.

The Houseplans Blog

2 Bed 2 Bath House Plans Under 1,000 Sq. Ft.

Browse our favorite 2 bed 2 bath house plans under 1,000 sq. ft.

Hero Image

March 16, 2023

Livabl Brand

Can't find what you're looking for?

Give us a call below or reach out and we’ll make sure to be in contact!

Send Us a Message

By Devin Uriarte

These tiny house plans under 1,000 sq. ft. don’t skimp on style or amenities. Smaller house plans are a great and affordable option for homeowners as they will almost always cost less to build and maintain. We’ve chosen some of our favorite house plans with 2 bedrooms and 2 bathrooms.

See more 2 bed 2 bath house plans under 1,000 sq. ft.

Contemporary 2 Bed 2 Bath House Plan with Deck Contemporary 2 Bed 2 Bath House Plan with Deck Contemporary 2 Bed 2 Bath House Plan with Deck - Exterior

Contemporary 2 Bed 2 Bath House Plan with Deck Contemporary 2 Bed 2 Bath House Plan with Deck - Main Floor Plan

Contemporary 2 Bed 2 Bath House Plan with Deck Contemporary 2 Bed 2 Bath House Plan with Deck - Upper Floor Plan

This contemporary house plan is under 1,000 sq. ft. and features a stunning deck on the second floor. Through the front door there is a mudroom with a convenient closet. Once in the mudroom, there’s a second door that opens to the living space. The U-shaped kitchen provides a good amount of counter space while still being open to entertain guests. The first bedroom sits on the main floor and has a good-sized closet. Upstairs is the primary suite with a sliding glass door out to the deck. Owners can unwind and relax in the warm weather while enjoying the views.

2 Bed 2 Bath House with Garage Below 2 Bed 2 Bath House with Garage Below 2 Bed 2 Bath House with Garage Below - Exterior

2 Bed 2 Bath House with Garage Below 2 Bed 2 Bath House with Garage Below - Main Floor Plan

2 Bed 2 Bath House with Garage Below 2 Bed 2 Bath House with Garage Below - Upper Floor Plan

Look to this house plan under 1,000 sq. ft. if you’re wanting to build on a small lot but still want an attached garage. A two-car garage sits on the first level of this modern 2 bed 2 bath house plan, along with a bedroom (or make it your home office). Guests on this floor have access to a private bathroom and a storage closet. There’s an open concept living room on the second floor with an impressive kitchen island. French doors in the living room open to the balcony and create nice indoor-outdoor flow. In the primary bedroom, owners can enjoy a spacious walk-in closet.

Modern House Plan Under 1,000 Sq. Ft. Modern House Plan Under 1,000 Sq. Ft. Modern House Plan Under 1,000 Sq. Ft. - Exterior

Modern House Plan Under 1,000 Sq. Ft. Modern House Plan Under 1,000 Sq. Ft. - Main Floor Plan

Modern House Plan Under 1,000 Sq. Ft. Modern House Plan Under 1,000 Sq. Ft. - Upper Floor Plan

Enjoy the views from this modern 2 bed 2 bath house plan with a covered balcony. There’s a two-car garage on the main level along with a guest bedroom. In the bedroom, there’s a spacious closet and down the hall there’s a bathroom and a storage closet. Upstairs, French doors to the vaulted balcony connect to the open concept living space. In the kitchen there’s an island with a built-in bar top and right next to the kitchen is a cozy breakfast nook. The primary bedroom features a walk-in closet and across the hallway is a bathroom with a linen closet for additional storage.

Single Story Modern Plan Under 1,000 Sq. Ft. Single Story Modern Plan Under 1,000 Sq. Ft. Single Story Modern Plan Under 1,000 Sq. Ft. - Exterior

Single Story Modern Plan Under 1,000 Sq. Ft. Single Story Modern Plan Under 1,000 Sq. Ft. - Main Floor Plan

This ultra-modern modern house plan is under 1,000 sq. ft. and features an open concept living space. Multiple sliding glass doors to the back patio let in lots of natural light. Prepare meals at the kitchen island while entertaining guests in the living and dining room. Both bedrooms have mirrored identical layouts yet sit on opposite sides of the home. The bedrooms feature private bathrooms and spacious closets.

2 Bed 2 Bath Modern House Plan 2 Bed 2 Bath Modern House Plan 2 Bed 2 Bath Modern House Plan - Exterior

2 Bed 2 Bath Modern House Plan 2 Bed 2 Bath Modern House Plan - Main Floor Plan

Open the folding glass doors of this single-story house plan to create indoor-outdoor flow. The house plan is under 1,000 sq. ft. but still feels spacious with the open layout. In the kitchen, owners can prepare meals at the island while entertaining guests in the dining and living areas. For additional storage, there’s pantry space in the walk-in laundry room. The identical bedroom suites both have walk-in closets and private bathrooms.

Cozy 2 Bed 2 Bath House Plan Cozy 2 Bed 2 Bath House Plan - Exterior

Cozy 2 Bed 2 Bath House Plan Cozy 2 Bed 2 Bath House Plan - Main Floor Plan

This modern house plan is under 1,000 sq. ft. and also features a spacious unheated storage closet. Through the front porch is the open great room, which flows into the U-shaped kitchen. In the primary suite, owners can enjoy a private bathroom and a closet. Across the hallway and near the hall bathroom, there’s a second bedroom.

Open Concept 2 Bed 2 Bath House Plan Open Concept 2 Bed 2 Bath House Plan Open Concept 2 Bed 2 Bath House Plan - Exterior

Open Concept 2 Bed 2 Bath House Plan Open Concept 2 Bed 2 Bath House Plan - Main Floor Plan

The views of the property are the highlight of this modern 2 bed 2 bath house plan. Owners can entertain guests both indoors and outside on the "chill deck" by opening the glass accordion doors in the living room. The kitchen island provides a great space to meal prep while hosting. There’s a bathroom in the hallway leading to the guest bedroom, which also opens outside. On the opposite side of the home, owners can unwind in the primary suite with an upscale private bathroom and walk-in closet.

Hillside 2 Bed 2 Bath Plan Under 1,000 Sq. Ft. Hillside 2 Bed 2 Bath Plan Under 1,000 Sq. Ft. Hillside 2 Bed 2 Bath Plan Under 1,000 Sq. Ft. - Exterior

Hillside 2 Bed 2 Bath Plan Under 1,000 Sq. Ft. Hillside 2 Bed 2 Bath Plan Under 1,000 Sq. Ft. - Main Floor Plan

Hillside 2 Bed 2 Bath Plan Under 1,000 Sq. Ft. Hillside 2 Bed 2 Bath Plan Under 1,000 Sq. Ft. - Upper Floor Plan

Looking to build on a sloped lot? Look to this 2 bed 2 bath house plan that’s under 1,000 sq. ft. The open living space sits on the main floor along with the kitchenette. The first bathroom is on this level and for additional storage, there’s space under the staircase. On the second level are two vaulted bedrooms and an impressive bathroom with double sinks.

2 Bed 2 Bath Modern Farmhouse Under 1,000 Sq. Ft. 2 Bed 2 Bath Modern Farmhouse Under 1,000 Sq. Ft. 2 Bed 2 Bath Modern Farmhouse Under 1,000 Sq. Ft. - Exterior

2 Bed 2 Bath Modern Farmhouse Under 1,000 Sq. Ft. 2 Bed 2 Bath Modern Farmhouse Under 1,000 Sq. Ft. - Main Floor Plan

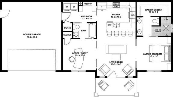
This popular farmhouse is under 1,000 sq. ft. and features many luxurious details. The front porch adds charming curb appeal before you enter into the open living room. To the left of the living room, pocket doors open to the first bedroom (or office). Another sliding door in the bedroom opens to the bathroom (making this a great private guest suite when needed). The mudroom keeps the space tidy and clean before looping back to the kitchen. The U-shaped kitchen has an impressive peninsula with room to seat four people. In the primary suite, owners can unwind in the spacious bathroom with double sinks and a roll-in shower. A luxurious detail in this farmhouse is the huge walk-in closet.

Modern Farmhouse Under 1,000 Sq. Ft. Modern Farmhouse Under 1,000 Sq. Ft. Modern Farmhouse Under 1,000 Sq. Ft. - Exterior

Modern Farmhouse Under 1,000 Sq. Ft. Modern Farmhouse Under 1,000 Sq. Ft. - Main Floor Plan

Enjoy the attached two-car garage of this modern farmhouse plan that’s similar to the previous plan, but with a few changes, notably adding a garage and a different layout in the mudroom and guest bathroom.

See more 2 bed 2 bath house plans under 1,000 sq. ft.

Get Our Newsletter

Be the first to see new plans, special offers, and more.

By signing up for our newsletter, you agree to our Terms & Conditions and Privacy Policy, for an account

Blog Subscribe Icon