By Courtney Pittman
Here are some of our favorite (and new) 2 story modern house plans. These cool house plans showcase smart uses of space with open floor plans and large kitchen islands. Other highlights include clean lines, luxurious master bedrooms, and easy indoor-outdoor flow. Check them out below!
Explore 2 story modern house plans
Narrow Lot House Plan
  Plan 905-6
Plan 905-6
Designed for a narrow lot, this 2 story modern house plan gives you a super-open floor plan between the main living spaces. The second floor features two bedrooms, a full bathroom, and plenty of closets. Check out the cool mezzanine that includes a sleeping nook and extra storage space.
Check out these stylish loft bedroom ideas from House Beautiful
Contemporary Curb Appeal
  Plan 1066-125
Plan 1066-125
This 2 story modern house plan shows off cool contemporary curb appeal. Inside, the layout is simple and open. The kitchen overlooks both the family room and the dining areas, with a big island giving you lots of space to prepare tasty treats. The home office gives you plenty of privacy and invites you to get work done. Enjoy relaxing in your private master suite (located on the second floor) complete with dual sinks and a huge walk-in closet.
Organize your walk-in closet with these sweet tips from Better Homes & Gardens
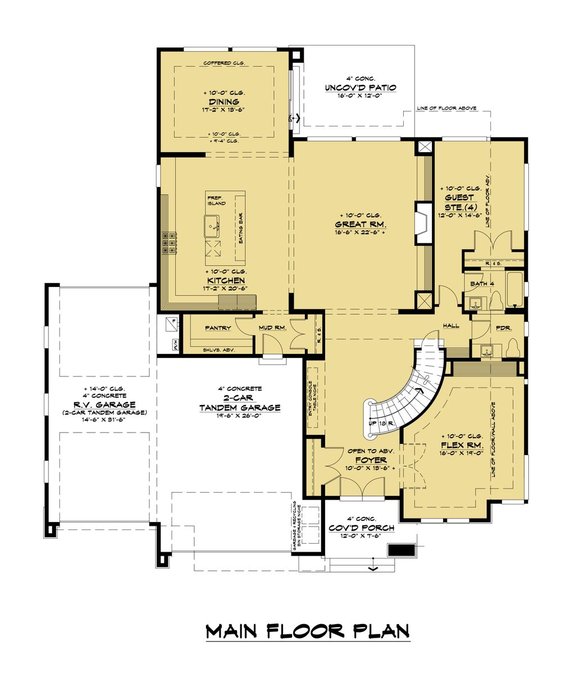
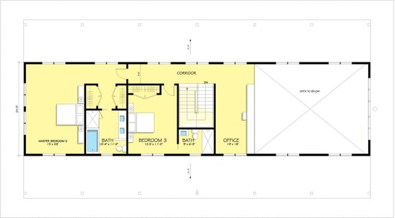
Cool House Plan with Two Master Bedrooms
  Plan 1066-132
Plan 1066-132
Here’s a cool house plan with modern style and plenty of room to grow. In the main living areas of the home, there’s excellent flow between spaces (thanks to the open floor plan). The kitchen overlooks the great room and features a large kitchen island and generous walk-in pantry. Work from home? A flex room next to the foyer could be used as a private home office if needed.
The second floor gives you two master suites with a huge walk-in closet in each. You’ll also find the spacious laundry room on this level for extra convenience.
Impressive 2 Story Modern House Plan with Multiple Patios
  Plan 928-352
Plan 928-352
Hello indoor-outdoor living! An impressive deck wraps around the main floor, while multiple patios on the second level give you plenty of room to enjoy the changing seasons. Inside, the open floor plan feels contemporary and relaxed, with a large island kitchen. A generous mudroom provides extra space for keeping things organized. The master suite features a big walk-in closet and opens directly to the laundry room. Don’t miss the versatile spaces on the second floor (like the sitting room and exercise area).
Modern House Design with Wet Bar
  Plan 930-519
Plan 930-519
Explore inside this standout 2 story modern house plan, which features four bedrooms (each with a private bathroom). A study (or home office) just off the foyer gives you extra space for getting work done. You’ll find tons of nice surprises, like a wet bar, a big pantry in the island kitchen, and an optional elevator. The main-level master suite includes two walk-in closets and a sitting room.
Nice weather? Head out to the outdoor kitchen on the rear porch just off the great room (via sliding glass doors) or the cool balcony on the second floor.
Luxurious Open Floor Plan
  Plan 1066-110
Plan 1066-110
Elegant and open, this 2 story modern house plan gives you a luxurious open floor plan that makes it easy to get around. The great room features a fireplace and opens to the kitchen. Hang out at the big island or head out to the covered deck when the weather is nice. Don’t miss the extra-spacious master suite.
Check out these easy ways to rock an open floor plan layout from MYMOVE
Modern House Plan with Farmhouse Style
  Plan 888-15
Plan 888-15
Look at that soaring ceiling! This 2 story modern farmhouse plan brings all the drama but also keeps it simple. Each bedroom is a suite, with one of them on the main floor and the other two upstairs. You’ll also enjoy the open floor plan, cooktop kitchen island, and the spacious laundry room. Get work done in the private home office. Check out those big porches!
Bold and Luxurious Modern House Plan
  Plan 1066-121
Plan 1066-121
Bold and luxurious, this 2 story modern house plan gives your family plenty of room for working, studying, and (most importantly) relaxing together. There’s even a sauna room! Imagine unwinding in there on a Saturday afternoon. The laundry room is conveniently located upstairs near the bedrooms. When the weather’s nice, head out to the big outdoor room. Everything has a place in the handy mudroom.
Craftsman House Plan with Modern Design
  Plan 23-2659
Plan 23-2659
This Craftsman house plan gives you just over 2,000 square feet of living space and modern style. The master suite showcases a sleek private bathroom with a big shower. Check out the spacious snack counter in the kitchen, perfect for hanging out. The great room flows into the dining area and then the kitchen.
Immersive Indoor-Outdoor Living
  Plan 1070-7
Plan 1070-7
Got a lot in a beautiful location? This striking 2 story modern house plan will capture the view with tons of windows. Gorgeous and cool, this clean-lined modern design features an open floor plan that flows from the great room into the island kitchen. This house design makes it easy to move from inside to outside. The dining area opens to the deck with sliding glass doors. The master suite enjoys impressive views and invites you to unwind in the big shower (plus check out the double sinks).
Modern House Plan with Upstairs Laundry Room
  Plan 25-4876
Plan 25-4876
Want a 2 story layout that gives you an open floor plan? This modern house plan is meant for relaxation. The kitchen gives you an island for hanging out and makes storage easy with a spacious pantry. A sitting area on the second level can become your quiet home office for working from home. We also love the convenient laundry room upstairs.
 
        

































 
                   
                   
                   
                   
                  