Blog Home > Shake Things Up with These 4 Cool Hexagon House Plans

The Houseplans Blog

Shake Things Up with These 4 Cool Hexagon House Plans

Unique Home Designs with Flare

Hero Image

November 9, 2023

Livabl Brand

Can't find what you're looking for?

Give us a call below or reach out and we’ll make sure to be in contact!

Send Us a Message

by Jenny Clark

Tired of seeing the same old houses over and over again? Ready to shake things up a little? The four hexagon house plans below are sure to please! In addition to unique curb appeal, these designs boast luxurious outdoor living areas, modern open floor plans, and more.

Explore the Unique House Plans Collection

1. Happy Hexagon Cool Hexagon House Plan 124-1143 - Front Exterior Cool Hexagon House Plan 124-1143 - Front Exterior

Cool Hexagon House Plan 124-1143 - Main Floor Plan Cool Hexagon House Plan 124-1143 - Main Floor Plan

Here's an example of a true hexagon house plan. How cute is this design? In addition to the unique shape, check out the deluxe deck, the covered front porch, and the vaulted ceilings. Only 1,999 sq. ft. Sweet!

2. Open and Vaulted Luxury Single-Story House Plan 124-1259 - Front Exterior Luxury Single-Story House Plan 124-1259 - Front Exterior

Luxury Single-Story House Plan 124-1259 - Main Floor Plan Luxury Single-Story House Plan 124-1259 - Main Floor Plan

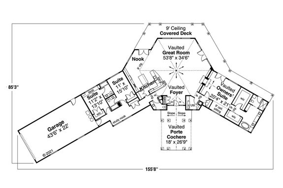
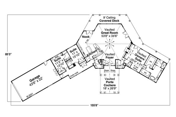
Luxury meets one-level living in this hexagonal house plan. While this design is clearly not a perfect hexagon, the layout does give a nod to the hexagon shape (note the center of the floor plan, where the vaulted-ceiling great room lives).

Related article: What Is a Vaulted Ceiling? Pros and Cons of Vaulted Ceilings from House Beautiful

Other perks of this design include a cool kitchen (you get an island and a peninsula!), three suites, a spacious deck, and a vaulted porte cochere for an added dose of drama.

3. Sweet Suite Luxury Hexagonal House Plan 124-1206 - Front Exterior Luxury Hexagonal House Plan 124-1206 - Front Exterior

Luxury Hexagonal House Plan 124-1206 - Main Floor Plan Luxury Hexagonal House Plan Plan 124-1206- Main Floor Plan

Luxury Hexagonal House Plan 124-1206 - Upper Floor Plan Luxury Hexagonal House Plan 124-1206- Upper Floor Plan

This plan presents the hexagon shape in high style. Look how the great room and bedrooms live within hexagonal areas. And speaking of bedrooms, drop what you're doing and check out the upstairs primary suite. It's private, vaulted, and offers a two-way fireplace (you get to enjoy the fireplace in the primary bedroom and the primary bath). How cool is that? Did we mention the primary suite gets its own private deck? Yep. It has that too!

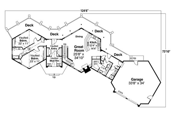
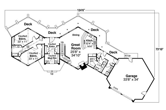
4. Two Levels of Living Space Luxury Hexagon-Inspired House Plan 124-1266 - Front Exterior Luxury Hexagon-Inspired House Plan 124-1266 - Front Exterior

Unique House Plan 124-1266 - Main Floor Plan Unique House Plan House Plan 124-1266 - Main Floor Plan

Unique House Plan House Plan 124-1266 - Lower Floor Plan Unique House Plan House Plan 124-1266 - Lower Floor Plan

This hexagon house plan presents two levels of living with a main level and a basement level. On the main level, note the cool three-sided fireplace, the two vaulted-ceiling suites, and the impressive deck, part of which is screened.

Meanwhile, the lower level offers its own kitchen, a theater, a rec room, a game room, a safe room, and a covered patio. This extra space could be used to house in-laws, a college student (or two), or it could be rented out to help cover the mortgage, depending on what's allowed in your area.

Explore the Unique House Plans Collection

Get Our Newsletter

Be the first to see new plans, special offers, and more.

By signing up for our newsletter, you agree to our Terms & Conditions and Privacy Policy, for an account

Blog Subscribe Icon