By Gabby Torrenti
Barndominium plans combine barn-inspired style with modern details that make these homes perfectly livable. (Although "barndominium" traditionally refers to a structure with metal framing and living space, most of the plans in our collection have wood framing, though the first plan in this article does feature metal framing). With three bedrooms, these plans are perfectly fit for a small family or those who love having visitors stay in their homes. This collection includes homes with open floor plans, farm-inspired elements like barn doors, and plenty of flexible storage
Metal-Framed Barndominium
 Metal-Framed Barndominium Plan 120-275 - Front Exterior
Metal-Framed Barndominium Plan 120-275 - Front Exterior
 Metal-Framed Barndominium Plan 120-275 - Main Floor Plan
Metal-Framed Barndominium Plan 120-275 - Main Floor Plan
 Metal-Framed Barndominium Plan 120-275 - Upper Floor Plan
Metal-Framed Barndominium Plan 120-275 - Upper Floor Plan
This modern farmhouse perfectly combines barn-inspired details with modern flair to create a truly unique home. And it features bolt-up metal framing! Beyond the large front porch, the foyer is surrounded by a study and the formal dining room, creating spaces to host guests or work from home. Straight ahead, the kitchen and family room blend together seamlessly, with a center island to create a hub for entertaining. At the rear of the home, the back porch makes relaxing outdoors a breeze, too.
Back inside, the right side of the home houses the primary suite, which comes equipped with a large bedroom, a bathroom with two sinks and a central tub, and a walk-in closet that can easily hold all of your favorite clothes, shoes, and bags. Connected to this space is a safe room. On the opposite side of the home, a walk-in pantry, powder room, and utility closet make this plan as convenient as possible.
Upstairs, two more bedrooms sit to the left of the stairs. A shared bathroom with two sinks makes getting ready for the day easy and an open balcony to below makes the space feel open and airy. On the opposite side of this level, a game room provides the perfect place to host guests or relax with family.
Modern Farmhouse with Lots of Natural Light
 Modern Farmhouse with Lots of Natural Light 888-13 - Front Exterior
Modern Farmhouse with Lots of Natural Light 888-13 - Front Exterior
  Modern Farmhouse with Lots of Natural Light 888-13 - Main Floor Plan
Modern Farmhouse with Lots of Natural Light 888-13 - Main Floor Plan
 Modern Farmhouse with Lots of Natural Light 888-13 - Upper Floor Plan
Modern Farmhouse with Lots of Natural Light 888-13 - Upper Floor Plan
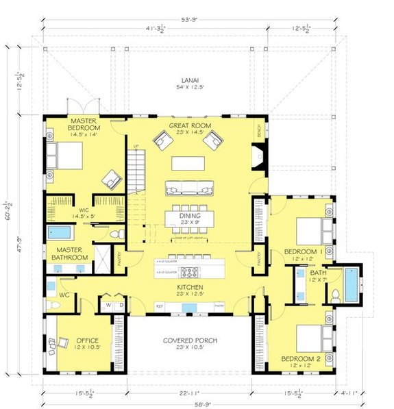
This simple 2,720-square-foot modern farmhouse plan features a convenient open floor plan and many windows to let lots of natural light into your space. Beyond the home’s covered porch, a kitchen opens the main living area, with a large center island that overlooks the open dining area. Toward the rear of the home, a great room with easy access to the lanai creates a relaxing space to entertain or spend time with family, with a fireplace to warm up cold nights.
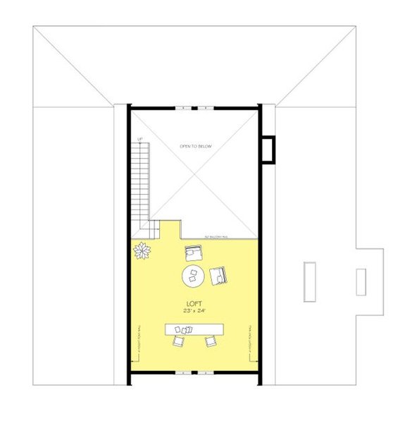
On the left side of the home, enjoy your own private suite with a bedroom that opens out to the lanai, two walk-in closets, and a five-piece bathroom. Near the front, a home office makes working from home simple with a close-by powder room for freshening up between Zoom meetings. Back through the kitchen, two more bedrooms are ideal for hosting visitors or giving kids space to relax with a shared bathroom connecting the two rooms. Double sinks make getting ready for the day effortless, too. An upstairs loft completes the space and gives you additional space for hobbies or homework.
Spacious Country Barndominium
Spacious Country Barndominium 923-97 - Front Exterior
 Spacious Country Barndominium 923-97 - Main Floor Plan
Spacious Country Barndominium 923-97 - Main Floor Plan
 Spacious Country Barndominium 923-97 - Upper Floor Plan
Spacious Country Barndominium 923-97 - Upper Floor Plan
With a spacious open floor plan and 4,072 square feet of living space, this unique barn-inspired home provides plenty of space spread across two easy-to-navigate levels. Off the covered porch, the home’s foyer leads into the great room, which features tons of open space bordered by an office that’s perfect for working from home, a walk-in pantry, a powder room, and a breakfast nook. The kitchen sits to the left of this nook and includes a center island to make meal prep easy, while also supplying space to gather with family or friends.
Through a set of double doors, a convenient mudroom helps keep your home neat and leads in from the screened porch. From here, it's also easy to access the relaxing primary suite. The bedroom features a gas fireplace to warm you up on chilly nights and access to the covered porch for relaxing and taking in the view of your property. On warm nights, enjoy a relaxing rinse in the optional outdoor shower, too. If indoor bathing is more your preference, this suite comes equipped with a bathroom with double sinks. This suite is made complete with a large walk-in closet.
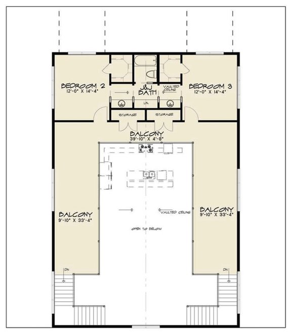
Upstairs, two more bedrooms are perfect for children or out-of-town guests. Walk-in closets equip each bedroom with lots of storage space. Balconies nearly encircle the great room below and make the space feel airy and open, while two storage closets complete this level and help keep your home tidy.
Modern Craftsman Barndominium
 Modern Craftsman Barndominium 1064-110 - Front Exterior
Modern Craftsman Barndominium 1064-110 - Front Exterior
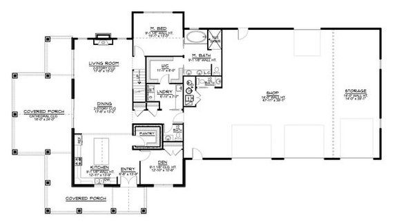
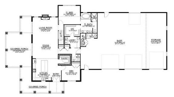
 Modern Craftsman Barndominium 1064-110 - Main Floor Plan
Modern Craftsman Barndominium 1064-110 - Main Floor Plan
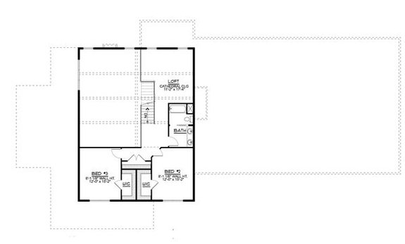
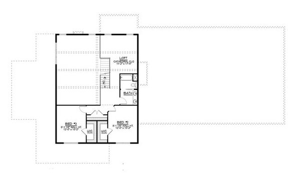
 Modern Craftsman Barndominium 1064-110 - Upper Floor Plan
Modern Craftsman Barndominium 1064-110 - Upper Floor Plan
Craftsman-style trusses and a covered front porch welcome guests into this modern barndominium. Through the entryway, the kitchen is located directly to the left, with a cozy den space and walk-in pantry to the right. The kitchen effortlessly connects to the main living area, which includes a combined living and dining space, plus simple access to the covered porch. Across this level, the primary bedroom gives homeowners a secluded escape that features a large bedroom, a walk-in closet, and a bathroom with two sinks, a luxe bathtub, and a separate shower. The closet opens directly to the laundry room for extra convenience.
Up a flight of stairs, the second floor opens with a loft, which creates free space to read or relax as a family. Two more bedrooms sit on the opposite side of the space, each including its own walk-in closet. A full bathroom with dual sinks lets second-floor guests prepare for the day or unwind with ease, too.