Blog Home > 4 Bedroom Barndominium Floor Plans

The Houseplans Blog

4 Bedroom Barndominium Floor Plans

Explore our favorite four-bedroom barndominium house plans.

Hero Image

July 7, 2023

Livabl Brand

Can't find what you're looking for?

Give us a call below or reach out and we’ll make sure to be in contact!

Send Us a Message

By Devin Uriarte

Four-bedroom house plans offer homeowners flexibility above everything else. Whether you’re looking for a multi-generational home or are simply just needing additional space for living, having four bedrooms is beneficial. The barndominium style has grown in popularity and for good reasons: open floor plans, simple layouts, and farmhouse charm. These are some of our favorite four-bedroom barndominium floor plans that have lots of space for entertaining.

See the full collection of barndominium house plans.

Four Bedroom Barndominium Four Bedroom Barndominium Four Bedroom Barndominium - Front Exterior

Four Bedroom Barndominium Four Bedroom Barndominium - Main Floor

Four Bedroom Barndominium Four Bedroom Barndominium - Upper Floor

Owners will be impressed with the primary suite in this four-bedroom barndominium plan. The private full bathroom comes equipped with everything one would need to unwind and relax after a long day. The primary suite is directly next to the laundry room for easy chores. Attached to the convenient mudroom is an additional room that can be utilized as an office space. Upstairs there are three guest bedrooms, each with its own walk-in closet and bathroom. A cozy loft elevates the second floor and gives guests a space to relax.

Charming Four Bedroom Farmhouse Charming Four Bedroom Farmhouse Charming Four Bedroom Farmhouse - Front Exterior

Charming Four Bedroom Farmhouse Charming Four Bedroom Farmhouse - Main Floor

Charming Four Bedroom Farmhouse Charming Four Bedroom Farmhouse - Upper Floor

Welcoming curb appeal adds to the overall charm of this modern farmhouse plan. The large sliding glass doors in the living room lead out to the covered porch and create indoor-outdoor flow that is great for hosting guests. An impressive kitchen island connects the rooms effortlessly and provides a space for owners to prepare meals. After hosting, owners can unwind in their luxurious suite, which features a full bathroom, an elegant ceiling treatment, and a walk-in closet. The first guest bedroom sits on the main floor while the other two are upstairs. The two guest bedrooms upstairs have access to the cozy loft and have their own private bathrooms and walk-in closets.

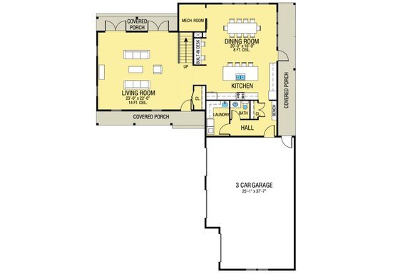
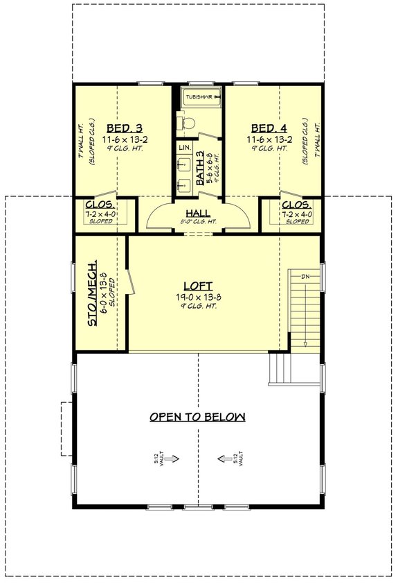
L-Shaped Barndominium Floor Plan L-Shaped Barndominium Floor Plan L-Shaped Barndominium Floor Plan - Front Exterior

L-Shaped Barndominium Floor Plan L-Shaped Barndominium Floor Plan - Main Floor

L-Shaped Barndominium Floor Plan L-Shaped Barndominium Floor Plan - Upper Floor

This L-shaped barndominium is a great option for those who are wanting to build on a corner lot. The courtyard has a charming front porch and entrances to the three-car garage. Since this plan is L-shaped, there are two covered porches to enjoy the views and warm weather. Stunning French doors in the living room open to one of the porches and lets in lots of sunlight. All three guest bedrooms are located upstairs, along with the primary suite and an intimate reading nook.

Barndo Style Floor Plan Barndo Style Floor Plan Barndo Style Floor Plan - Front Exterior

Barndo Style Floor Plan Barndo Style Floor Plan - Main Floor

Barndo Style Floor Plan Barndo Style Floor Plan - Upper Floor

The unique layout of this barndominium style plan gives it an overall modern vibe. A large kitchen island looks out to the dining and living room, making it easier for owners to entertain guests while meal prepping. The primary suite has luxurious amenities including skylights and a private entrance to a porch. Additionally, owners can enjoy the expansive private bathroom with a tub and a walk-in closet with a sun tunnel. Upstairs is the third guest bedroom and a loft that looks down to the living room below.

Rustic Barndominium Rustic Barndominium Rustic Barndominium - Front Exterior

Rustic Barndominium Rustic Barndominium - Main Floor

Rustic Barndominium Rustic Barndominium - Upper Floor

This barndominium plan has a simple layout and rustic exterior. The two-story hearth room and kitchen help the space feel more open. The open layout is great for hosting guests and the large kitchen island looks out on the living room. For additional storage, there’s a pantry accessed via pull-down stairs. Two guest bedrooms sit on the main floor with a shared bathroom. Upstairs there’s a similar layout with two guest bedrooms and a cozy loft that looks down to the main floor.

Farmhouse Plan with Wraparound Porch Farmhouse Plan with Wraparound Porch Farmhouse Plan with Wraparound Porch - Front Exterior

Farmhouse Plan with Wraparound Porch Farmhouse Plan with Wraparound Porch - Main Floor

Farmhouse Plan with Wraparound Porch Farmhouse Plan with Wraparound Porch - Upper Floor Plan

The wraparound porch of this farmhouse plan adds charming curb appeal. Take a glass of wine out on the porch and soak in the warm summer weather. A vaulted ceiling in the living room brightens up the overall space. The primary suite and a guest bedroom are on the main floor, along with a convenient walk-in laundry room. Both guest bedrooms upstairs share access to a bathroom and each has its own walk-in closet. There’s a sizeable loft that is open to below where guests can relax without disturbing those downstairs.

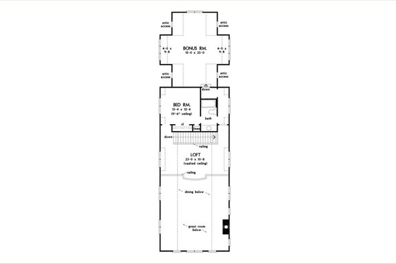
Modern Farmhouse Plan Modern Farmhouse Plan Modern Farmhouse Plan - Front Exterior

Modern Farmhouse Plan Modern Farmhouse Plan - Main Floor

Modern Farmhouse Plan Modern Farmhouse Plan - Upper Floor Plan

Not all barndominium plans feel super rustic. Some plans like this one feature a more modern design. The modern features continue indoors with the open layout, vaulted ceiling, and multiple windows. During those warm summer days, owners can open the sliding glass door to the wraparound porch to let in the nice breeze and even take meals outdoors. The open floor plan makes for a great place to host friends and family. Upstairs there are three guest rooms including a bonus room that can be transformed into an entertainment room. Downstairs owners can enjoy their privacy in the primary suite and a full bathroom with a walk-in closet.

Barndominium Style Cabin Plan Barndominium Style Cabin Plan Barndominium Style Cabin Plan - Front Exterior

Barndominium Style Cabin Plan Barndominium Style Cabin Plan - Main Floor

This single-story barndominium plan features rustic curb appeal that makes for a great vacation home. The vaulted ceiling throughout the main living space creates an open and modern environment. In the kitchen, owners can prepare meals at the impressive island while guests sit at the built-in bar top. There are three guest bedrooms on one side of this plan with the primary suite sitting at the opposite end. Luxurious features like a freestanding tub, a large walk-in closet, and a vaulted ceiling completely elevate this suite.

See the full collection of barndominium house plans.

Get Our Newsletter

Be the first to see new plans, special offers, and more.

By signing up for our newsletter, you agree to our Terms & Conditions and Privacy Policy, for an account

Blog Subscribe Icon