Blog Home > Barndominium and Farmhouse Duplex Plans

The Houseplans Blog

Barndominium and Farmhouse Duplex Plans

These duplex plans show off the hottest styles.

Hero Image

May 23, 2023

Livabl Brand

Can't find what you're looking for?

Give us a call below or reach out and we’ll make sure to be in contact!

Send Us a Message

By Aurora Zeledon

It's two trends in one. Duplex plans have been gaining in popularity. Meanwhile, rustic styles like barndominium and modern farmhouse continue to capture attention. Put them together and you've got these stylish barndominium and farmhouse duplex plans!

Whether you're thinking about renting out the extra unit or using it to house extended family, a duplex plan provides versatility.

Explore Duplex House Plans Here.

Popular 1 Story Farmhouse Duplex Design Popular 1 Story Farmhouse Duplex Design Popular 1 Story Farmhouse Duplex Design - Front Exterior

Popular 1 Story Farmhouse Duplex Design Popular 1 Story Farmhouse Duplex Design - Main Floor Plan

This farmhouse duplex plan has taken off, and it's easy to see why. The simple single-story design makes it easy to get around (if you've got elderly relatives who would rather not have to navigate a lot of stairs, they'll appreciate this layout) and gives a garage for each side.

Inside, each unit prioritizes relaxed living with an open plan. Three bedrooms sit on each side (including the primary suite with its private bathroom and walk-in closet). A large pantry and lockers near the entry add practical storage, along with dedicated space in the garage. Check out the back porches.

Barndominium Duplex Plan Barndominium Duplex Plan Barndominium Duplex Plan - Front Exterior

Barndominium Duplex Plan Barndominium Duplex Plan - Main Floor Plan

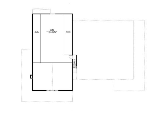
Barndominium Duplex Plan Barndominium Duplex Plan - Upper Floor Plan

Would you ever guess this is a duplex? Gorgeous rustic style fits in with the barndominium trend, especially with a spacious garage in the middle. Each side gets its own wraparound porch for watching the sunset.

The units aren't the same size, which makes this a great choice for a family with a live-in relative who doesn't need an equally large space but would still like privacy and independence.

On the left side, the three-bedroom unit includes lots of storage that families will love. Don't miss the main suite's luxurious bathroom. Meanwhile, the right unit includes two bedrooms and an open living space. Each side gets its own laundry room.

Check out the optional bonus room/loft upstairs.

Modern Farmhouse Duplex Plan Modern Farmhouse Duplex Plan Modern Farmhouse Duplex Plan - Front Exterior

Modern Farmhouse Duplex Plan Modern Farmhouse Duplex Plan - Main Floor Plan

Modern Farmhouse Duplex Plan Modern Farmhouse Duplex Plan - Upper Floor Plan

Today's best duplex plans feature open layouts and modern amenities. Here's a great example, with fresh modern farmhouse styling and a relaxed floor plan. Each unit gets a front and back porch for outdoor relaxation. And for working from home, the third bedroom provides a versatile quiet space on the main floor.

Upstairs, the primary suite on each side gives you a streamlined modern bathroom with a big shower and two sinks. Walk-in closets (yes, even the secondary bedroom gets one) add extra storage.

Barndominium Duplex Plan with a Huge Garage Barndominium Duplex Plan with a Huge Garage Barndominium Duplex Plan with a Huge Garage - Front Exterior

Barndominium Duplex Plan with a Huge Garage Barndominium Duplex Plan with a Huge Garage - Garage Level Floor Plan

Barndominium Duplex Plan with a Huge Garage Barndominium Duplex Plan with a Huge Garage - Upper Floor Plan

Need a LOT of garage storage? This is your plan. The first level shows off a lift-friendly space for up to five cars. There's also a heated office back here, so you can get some work done after tending to your vehicles.

On the main living floor upstairs, you'll find mirrored units with three bedrooms and two bathrooms each. Highlights of these apartments include covered patios, walk-in closets (lots of them), and generously sized bedrooms.

Modern Farmhouse Duplex with Big Garages Modern Farmhouse Duplex with Big Garages Modern Farmhouse Duplex with Big Garages - Front Exterior

Modern Farmhouse Duplex with Big Garages Modern Farmhouse Duplex with Big Garages - Main Floor Plan

Modern Farmhouse Duplex with Big Garages Modern Farmhouse Duplex with Big Garages - Upper Floor Plan

Maybe that previous plan was too much garage for you. Here's a duplex home design with a narrow but deep garage for each unit. Each side also gets its own back patio, part of it covered.

Inside, the living zone on each side feels open and relaxed. A fireplace adds ambiance in the living room. Three bedrooms upstairs on each side provide space for family or visitors.

Farmhouse Duplex with a Porch and Deck Farmhouse Duplex with a Porch and Deck Farmhouse Duplex with a Porch and Deck - Front Exterior

Farmhouse Duplex with a Porch and Deck Farmhouse Duplex with a Porch and Deck - Main Floor Plan

Farmhouse Duplex with a Porch and Deck Farmhouse Duplex with a Porch and Deck - Upper Floor Plan

Love outdoor living? This farmhouse duplex could be the one for you. In front, the front porch adds charming curb appeal and gives you a spot to enjoy a lemonade on a summer day. In back, the deck can become your grilling zone.

Thoughtful details abound inside. For example, take a look at the optional window seat in each unit's family room. Imagine relaxing here in the winter with a cup of cocoa and a cozy fire going.

Upstairs, the main suite in each unit boasts a walk-in shower and a walk-in closet. Even the secondary bedrooms feature ceiling treatments.

A Duplex That Doesn't Look Like a Duplex A Duplex That Doesn't Look Like a Duplex A Duplex That Doesn't Look Like a Duplex - Front Exterior

A Duplex That Doesn't Look Like a Duplex A Duplex That Doesn't Look Like a Duplex - Main Floor Plan

A Duplex That Doesn't Look Like a Duplex A Duplex That Doesn't Look Like a Duplex - Upper Floor Plan

You wouldn't know it from the curb, but this sweet cottage is actually a duplex. One of the units is entered from the front, and the other from the side. While the layouts are similar, they're not exactly the same, but each includes three bedrooms, an open living room, and a den upstairs.

We especially admire the discreet two-car garages in back (yes, each unit gets space for two cars), the main suite's convenient location on the first floor, and the walk-in closets throughout the home.

One-Story Duplex with Relaxed Layout One-Story Duplex with Relaxed Layout One-Story Duplex with Relaxed Layout - Front Exterior

One-Story Duplex with Relaxed Layout One-Story Duplex with Relaxed Layout - Main Floor Plan

Let's end with this one-story duplex plan, which presents a good option for those who don't want to navigate a lot of stairs. The kitchen overlooks the casual dining area and the family room for an open feeling. Each unit provides three bedrooms (including the main suite), a two-car garage, and even a back porch.

Explore Duplex House Plans Here.

Get Our Newsletter

Be the first to see new plans, special offers, and more.

By signing up for our newsletter, you agree to our Terms & Conditions and Privacy Policy, for an account

Blog Subscribe Icon