By Courtney Pitman
Looking for a summer getaway? Take a look at these lake house plans. Modern layouts, stylish curb appeal, and easy access to the outdoors make them great choices for vacation homes – or even a primary residence. Here are ten of our favorites.
Want to see more? Check out our lake house plans collection here.
Bright Lake House Plan
Bright Lake House Plan - Exterior
Bright Lake House Plan - Main Floor Plan
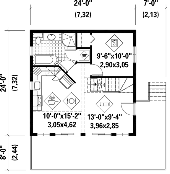
Clean and cool, this lake house plan impresses with a modern exterior. We love the nice wraparound deck. A vaulted ceiling and lots of windows create a light-filled interior (check out these tips on decorating rooms with tall ceilings from The Spruce).
The layout is simple and modern with an open kitchen, living room, and eating area. A bedroom and a full bath sit near the back of the plan.
Vacation Lake House Plan
Vacation Lake House Plan - Exterior
Vacation Lake House Plan - Main Floor Plan
Vacation Lake House Plan - Upper Floor Plan
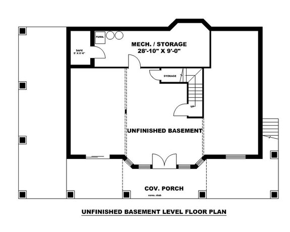
Vacation Lake House Plan - Lower Floor Plan
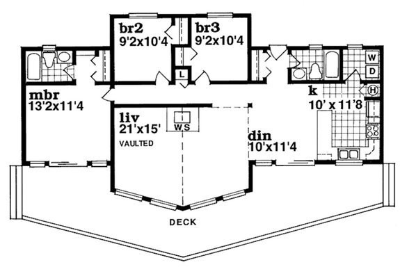
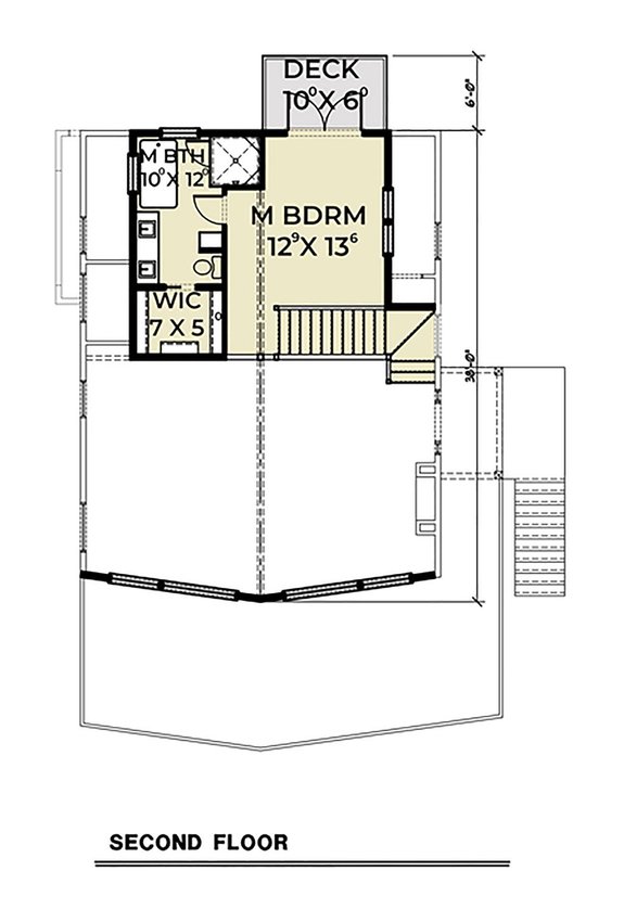
An inviting exterior combines a gable roof, board-and-batten siding, and a wraparound deck to create stylish curb appeal. Take in the view with floor-to-ceiling windows in the great room and dining area.
Enjoy casual meals at the kitchen island. Two bedrooms share a bathroom at the back of the main floor plan. Upstairs, the primary suite impresses with a big walk-in closet and access to a private deck.
A-Frame Lake House Plan
A-Frame Lake House Plan - Exterior
A-Frame Lake House Plan - Main Floor Plan
A-Frame Lake House Plan - Upper Floor Plan
Here’s a compact A-frame design that lets the sunshine in with tall windows. Enjoy a relaxed vibe in the main living areas. A sleeping space rests quietly on the second level.
A sundeck extends the living space to create indoor/outdoor living.
Contemporary Lake House Plan
Contemporary Lake House - Exterior
Contemporary Lake House Plan - Main Floor Plan
Contemporary Lake House Plan - Upper Floor Plan
This sleek lake house plan feels contemporary and cool with clean lines and an efficient layout. Check out the wraparound deck. The vaulted kitchen opens to the family room and features a roomy pantry and a casual snack bar.
Two bedrooms sit on the left side of the floor plan. Relax in the artist loft upstairs (take a look at these lofts from Homedit). The spacious storage closet is a welcome touch downstairs.
Lake House Plan with Outdoor Living
Lake House Plan with Outdoor Living - Exterior
Lake House Plan with Outdoor Living - Main Floor Plan
Lake House Plan with Living - Upper Floor Plan
Lake House Plan with Outdoor Living - Lower Floor Plan
Here’s a fun three-level lake house plan. A huge porch/deck wraps around the entire exterior for easy outdoor living. The main floor gives you a bright great room with generous windows and a vaulted ceiling.
Serve relaxed meals at the open kitchen island (which features a raised eating bar). The primary suite enjoys privacy on the second level and gives you a spa-like bathroom. Don’t miss the versatile loft.
Luxury Lake House Plan
Luxury Lake House Plan - Exterior
Luxury Lake House Plan - Main Floor Plan
Luxury Lake House Plan - Upper Floor Plan
Luxury Lake House Plan - Lower Floor Plan
Hello gorgeous! This beautiful luxury lake house plan invites you to relax. The main floor holds the primary suite and the great room, along with the kitchen and the dining area.
Downstairs, an unfinished basement gives you room to expand. The second floor hosts a loft space that opens to the balcony. Don’t miss the office/den and the handy mudroom.
Lake House Plan with Loft
Lake House Plan with Loft - Exterior
Lake House Plan with Loft - Main Floor Plan
Lake House Plan with Loft - Upper Floor Plan
Lake House Plan with Loft - Lower Floor Plan
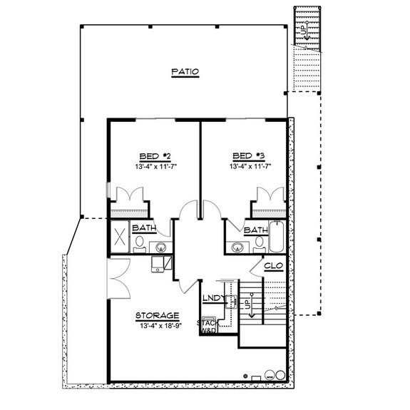
Here’s a lake house plan with a relaxed vibe. Thoughtful details include a flexible loft, a big storage room, and lots of outdoor living space. The primary suite, complete with a shower and a walk-in closet, rests on the main floor.
Two more bedroom suites occupy the lower level and have easy access to the laundry room. The island kitchen opens directly to the living room and the dining area with ease.
Small Lake House Plan
Small Lake House Plan - Exterior
Small Lake House Plan - Main Floor Plan
Small Lake House Plan - Upper Floor Plan
This small lake house plan wastes no space. Creating a modern flow, the kitchen conveniently opens to the main living area. A bedroom and a full bath sit on the first level, while another sleeping area occupies the second floor. Outdoor living maximizes a scenic lot.
Cabin Lake House Plan
Cabin Lake House Plan - Exterior
Cabin Lake House Plan - Main Floor Plan
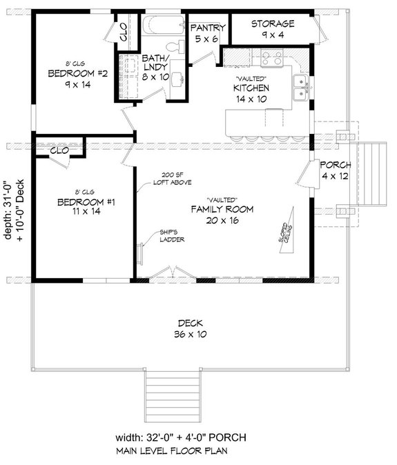
Ideal for capturing views, this house plan features a vaulted ceiling in the living room and windows that overlook the expansive deck. One side of the floor plan holds the primary suite, while two secondary bedrooms rest closer to the middle.
Additional highlights include sliding glass doors to the deck and private access to the deck from the primary suite.
Lake House Plan with Large Great Room
Lake House Plan with Large Great Room - Exterior
Lake House Plan with Large Great Room - Main Floor Plan

Lake House Plan with Large Great Room - Upper Floor Plan
A big porch sets the stage for outdoor living with this two-bedroom lake cabin house plan. Inside, the great room opens to the kitchen and dining nook. The split-bedroom layout places a bedroom suite on each side of the floor plan.
The options are endless with the versatile sleeping loft on the second level. Extra storage in the dining room is a nice detail.