Blog Home > New House Plans Under 2,000 Sq. Ft.

The Houseplans Blog

New House Plans Under 2,000 Sq. Ft.

Fall in love with these new house plans.

Hero Image

August 22, 2022

Livabl Brand

Can't find what you're looking for?

Give us a call below or reach out and we’ll make sure to be in contact!

Send Us a Message

By Courtney Pittman

Freshen up! It’s hard to beat the appeal of these shiny new house plans. Just under 2,000 square feet, these sweet designs feel anything but cramped (thanks to their efficient layouts and well-thought-out amenities). Whether you’re looking for a starter home or you're ready to downsize, we’ve got you covered with our newest roundup of plans.

Want to discover more? Explore our new house plans collection here.

New House Plan with Country Curb Appeal New House Plan with Country Curb Appeal New House Plan with Country Curb Appeal - Front Exterior

New House Plan with Country Curb Appeal New House Plan with Country Curb Appeal - Main Floor Plan

New House Plan with Country Curb Appeal New House Plan with Country Curb Appeal - Upper Floor Plan

When it comes to curb appeal, this new house plan seals the deal. Mixed siding, a gable roof, and a cute front porch deliver country style. The living area flows into the dining room and the U-shaped kitchen. Everything has a place in the mudroom.

Aging in place is made easy thanks to the first-floor primary suite. Two extra bedrooms wait on the second level, along with a full bath.

Two-Story New House Plan Two-Story New House Plan Two-Story New House Plan - Front Exterior

Two-Story New House Plan Two-Story New House Plan - Main Floor Plan

Two-Story New House Plan Two-Story New House Plan - Upper Floor Plan

Here’s a two-story house plan with a welcoming front porch. Inside, the first level gives you an open floor plan between the main living areas, along with a private pocket office. The upper floor offers two secondary bedrooms and the spacious primary suite.

Don’t miss the breezy balcony or the drop zone (with a bench) on the way in from the two-car garage. The best part? You can extend the space with an optional deck/patio.

Charming New House Plan Charming New House Plan Charming New House Plan – Front Exterior

Charming New House Plan Charming New House Plan – Main Floor Plan

Country style meets modern living with this new farmhouse plan. The open layout revolves around the island kitchen and the vaulted living/dining area, where decorative beams add style. Near the front, the primary suite features a big custom shower.

Steps away, the efficient laundry room could also function as a mudroom. Two more bedrooms and a hall bath rest at the back of the plan. Outdoor living is made easy on the rear porch.

One-Story New House Plan One-Story New House Plan One-Story New House Plan - Front Exterior

One-Story New House Plan One-Story New House Plan - Main Floor Plan

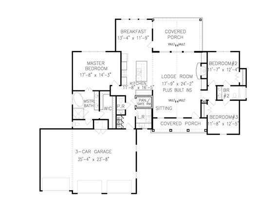
Clocking in at just 1,946 square feet, this ranch home lives large with a spacious lodge room at the center of the plan. Plus, front and rear porches add even more living space. The open kitchen offers an island with an eating bar and a breakfast nook.

Don’t miss the generous walk-in closet in the primary suite. A Jack-and-Jill bathroom separates two secondary bedrooms on the right side of the plan. Storage options include handy lockers on the way in from the three-car garage.

New House Plan with Ranch Style New House Plan with Ranch Style New House Plan with Ranch Style - Front Exterior

New House Plan with Ranch Style New House Plan with Ranch Style - Main Floor Plan

Here’s a ranch style house plan that brings everyone together in the open great room and island kitchen. In the dining area, a back patio is accessed via sliding glass doors. The big shower in the primary suite is a luxurious touch.

Lockers store items near the three-car garage. Note the built-in desk – perfect for getting work done.

Contemporary New House Plan Contemporary New House Plan - Front Exterior

Contemporary New House Plan Contemporary New House Plan - Main Floor Plan

Clean, sleek lines give this new contemporary house plan loads of style. An open layout provides easy movement throughout the main living areas. Enjoy relaxed outdoor living on the covered front patio and the back patio.

Check out the show-stopping primary suite, which boasts a spacious shower, a relaxing tub, and direct access to the laundry room.

New House Plan with Big Pantry New House Plan with Big Pantry New House Plan with Big Pantry - Front Exterior

New House Plan with Big Pantry New House Plan with Big Pantry - Main Floor Plan

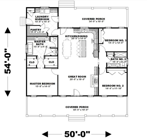
Outside, this country house plan’s exterior showcases a big front porch, a metal roof, and stylish dormer windows. Inside, the great room is open to the kitchen/dining area and its relaxed island. Enjoy nice weather on the big covered porch out back.

The primary suite feels like an elegant retreat on the left side of the plan and includes two walk-in closets. On the opposite side, a hall bath buffers the two secondary bedrooms.

Flexible New House Plan Flexible New House Plan Flexible New House Plan - Front Exterior

Flexible New House Plan Flexible New House Plan - Main Floor Plan

Here’s a versatile ranch home that gives you two bedroom suites (one in each wing of the plan). Near the front, a flex room can become a third bedroom or a home office – the options are endless! The impressive great room flows into both the island kitchen and the dining area.

Don’t miss the handy drop zone (with a bench) and the covered back porch.

Timeless New House Plan Timeless New House Plan Timeless New House Plan - Front Exterior

Timeless New House Plan Timeless New House Plan - Main Floor Plan

This timeless farmhouse design lives bigger than its modest square footage with an open layout and tall ceilings. Front and rear porches deliver shaded comfort. We love the cool bunk room (much like these bunk rooms from HGTV).

See more new house plans here.

Get Our Newsletter

Be the first to see new plans, special offers, and more.

By signing up for our newsletter, you agree to our Terms & Conditions and Privacy Policy, for an account

Blog Subscribe Icon